Wohnen in Schiffscontainern: Drivelines Studios von Lot-ek
Foto: Dave Southwood
Im südafrikanischen Johannesburg sind auch heute noch die Nachwirkungen der Apartheid spürbar. Große Teile der Innenstadt sind verlassen, die Kriminalitätsrate hoch. Eine junge Gegenbewegung findet sich im Hippie-Viertel Maboneng, das für Kunst, Straßenmusik und Lebensfreude steht. Die alten Industriegebäude füllen sich allmählich mit Cafés, Boutiquen und Galerien und ziehen viele Touristen an.
Das 2017 vollendete Containerprojekt von Lot-ek passt in vielerlei Hinsicht zur visionären Haltung des Viertels. Die Fassade blitzt hinter den teilweise noch verlassenen Häusern hervor und setzt einen lauten Farbakzent, der gesehen werden will. Das Ziel ist, hier günstigen Wohnraum für junge, kreative Leute anzubieten, um die Entwicklung von Maboneng weiterhin zu fördern.
Für die Drivelines Studios kamen ausgewählte grüne und blaue Schiffscontainer zum Einsatz. In dreieckigen und trapezförmigen Wandausschnitten sitzen jeweils die Fenster. Zusammen mit den leuchtenden Farbtönen und überdimensionierten Schriftzügen entsteht eine dynamische und dramatische Fassadengestaltung.
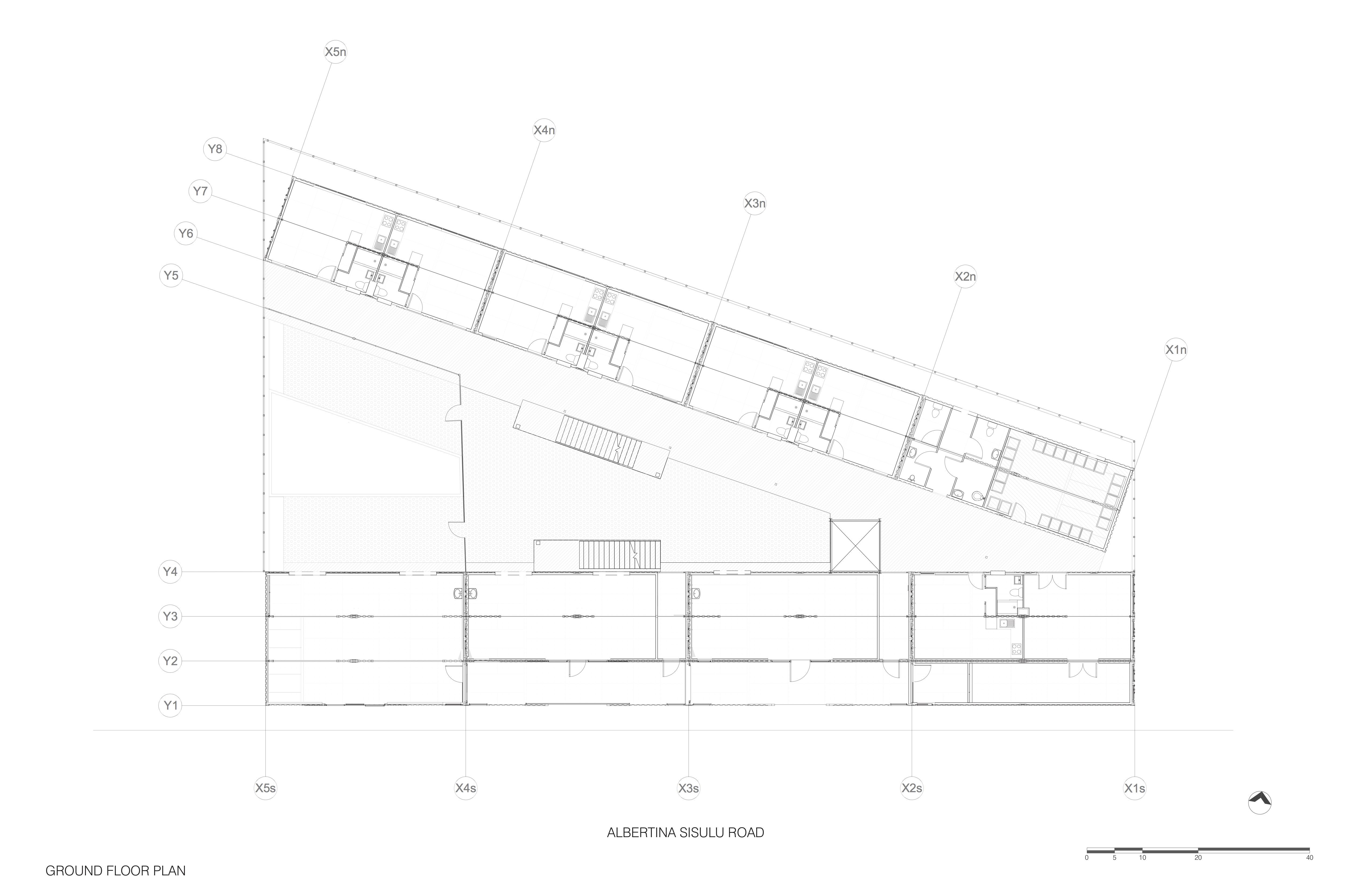
Die Wohnungen bestehen jeweils aus zwei bis drei ehemaligen Containern. Die Module ergeben aufeinandergestapelt zwei siebenstöckige Zeilenbauten, die V-förmig angeordnet sind. In dem Zwischenraum entsteht so ein gemeinsamer Innenhof mit kleinen Grünbereichen und Pool. Die Laubengänge zur Erschließung der Wohnungen sind ebenfalls nach innen orientiert. Die Nachbarn haben somit die Möglichkeit, außen vor ihren Wohnungen ins Gespräch zu kommen oder unten im Hof miteinander zu feiern. Das Viertel Maboneng ist somit um einen weiteren Ort der Begegnung reicher geworden.
Ein weiteres Wohnbauprojekt von Lot-ek ist das New Yorker Carroll House, das hier nachzulesen ist.










