Life in Shipping Containers: Drivelines Studios by Lot-ek
Foto: Dave Southwood
In Johannesburg, the aftereffects of apartheid are still apparent even today. Large areas of the inner city have been abandoned; the crime rate is high. However, a young countermovement promoting art, street music and joie de vivre has arisen in the hippie district of Maboneng. The old industrial buildings are gradually filling up with cafés, boutiques and galleries, attracting scores of tourists.
This container project by Lot-ek, which was completed in 2017, is in many ways a good match for the visionary attitude of the neighbourhood. The façade flashes out from behind the other buildings, some of which still stand empty, and sets a vivid colour accent that cries out to be seen. The aim is to offer inexpensive living space for young, creative people in order to continue promoting development in Maboneng.
Selected green and blue shipping containers have been used for Driveline Studios. The windows sit in triangular or trapezoidal cut-outs in the walls. Along with the gleaming colours and larger-than-life lettering, the overall façade design is dynamic and dramatic.
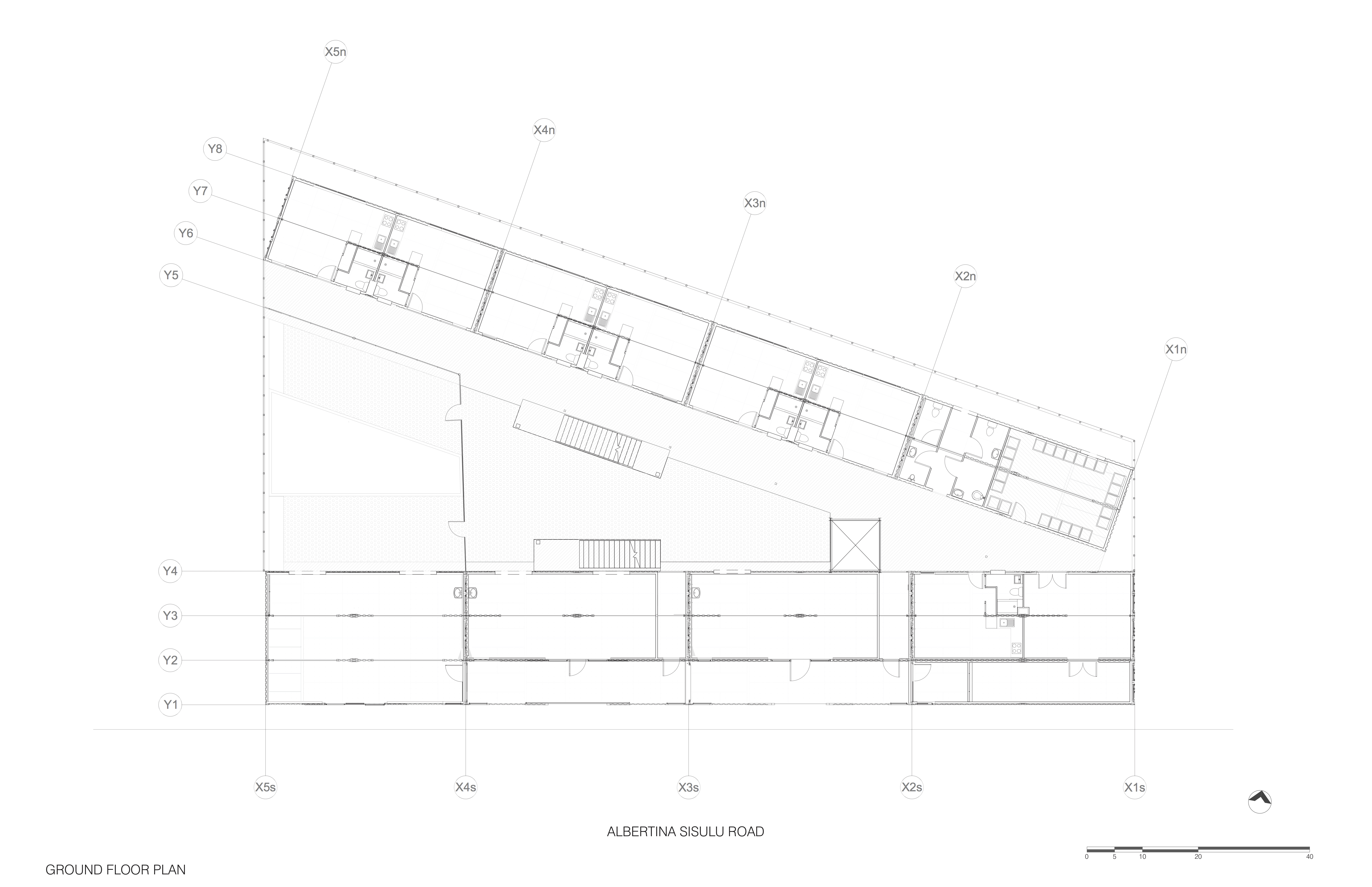
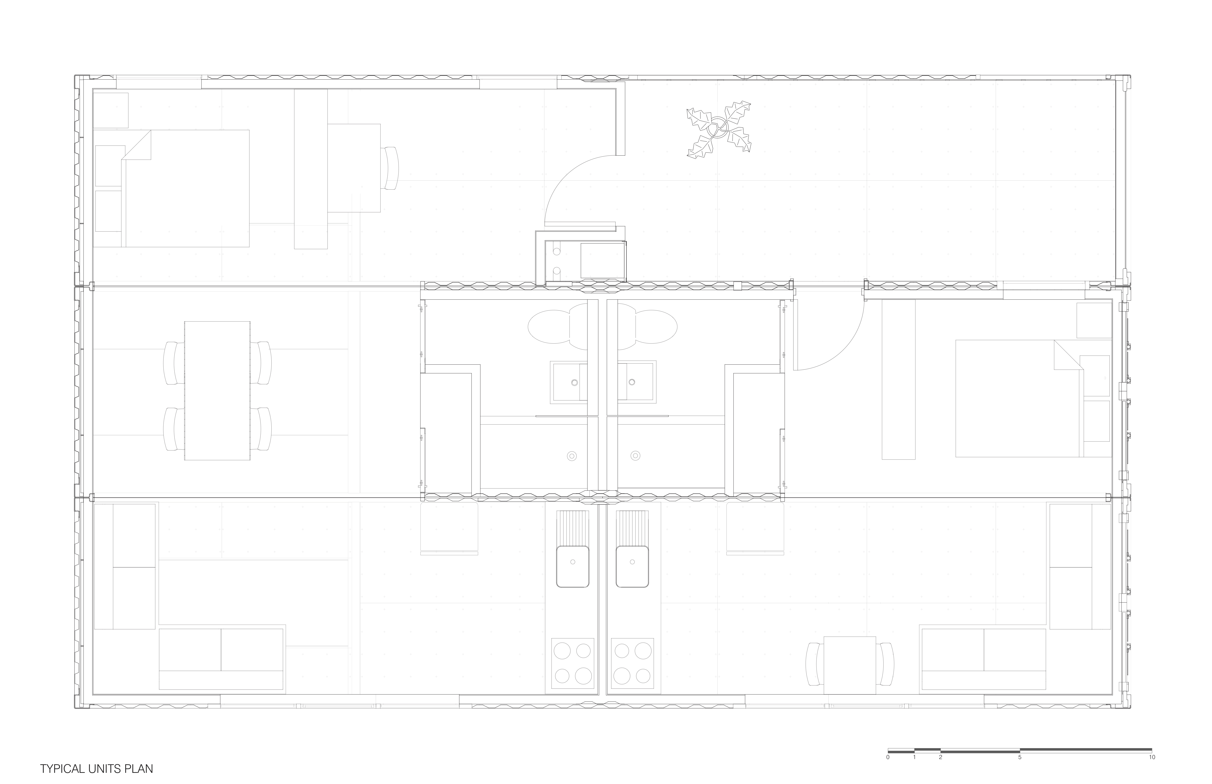
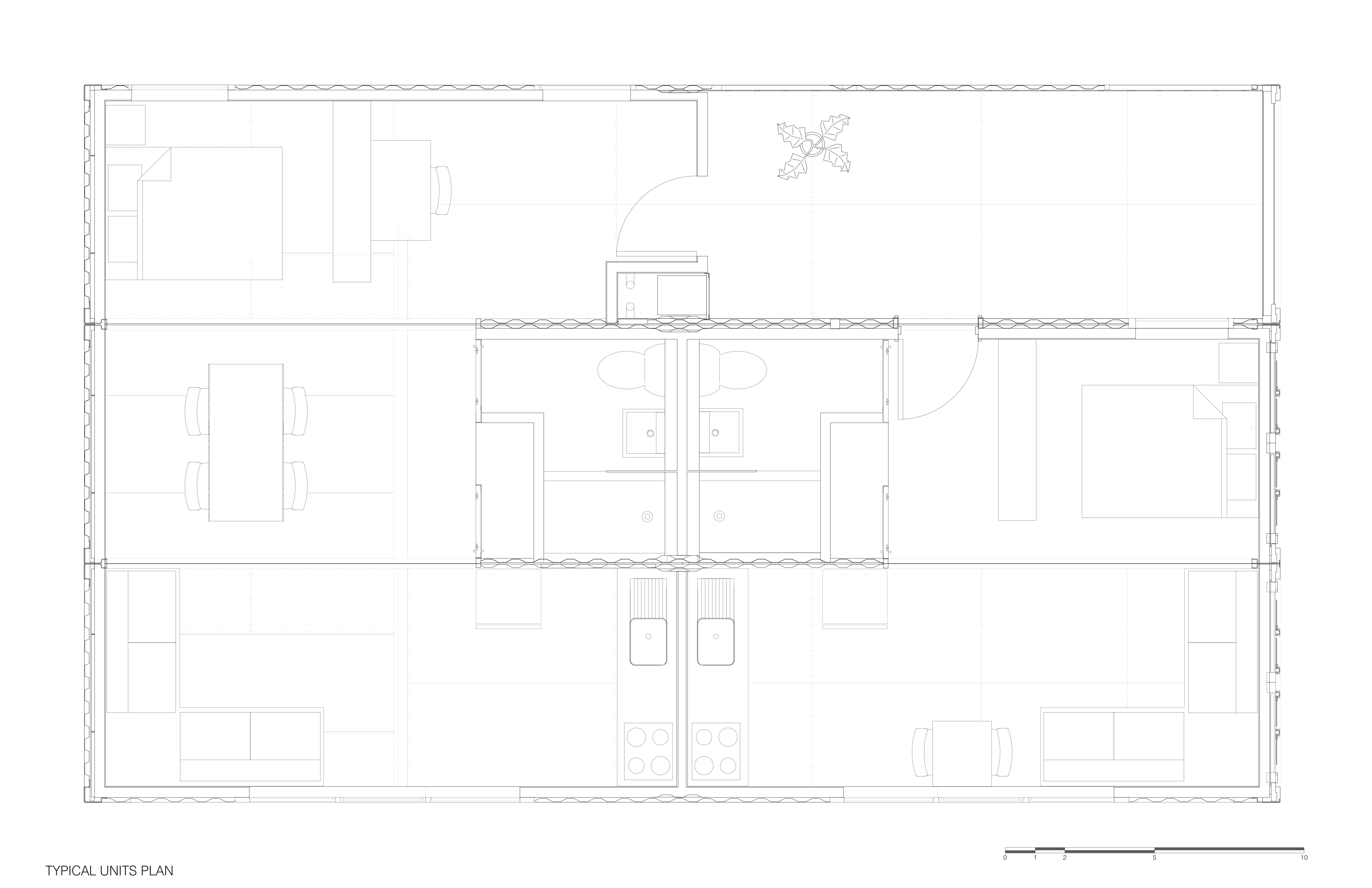
Each apartment consists of two to three decommissioned containers. Stacked, the modules create two seven-storey structures arranged in a V shape. The space in between has become a shared courtyard with small green spaces and a pool. The exterior walkways also face inward, giving neighbours the opportunity to chat outside in front of their apartments or to party together downstairs in the yard. The Maboneng district has thus been enriched by a further meeting place.
Another residential building project by Lot-ek is New York’s Carroll House, described here.










