Lichte Aufstockung
Wohnen unter dem Mansarddach
Die Aufstockung eines 1960er-Jahre-Gebäudes in Lausanne durch Localarchitecture schafft Raum für zehn neue Wohnungen, darunter eine Maisonette. © Kasia Jackowska/Velux
Ein Ende der 1960er-Jahre entstandener Geschosswohnungsbau in der Innenstadt von Lausanne ist durch eine Aufstockung um zwei Geschosse angewachsen. Mit der neuen Höhe und dem Mansarddach, das das Büro Localarchitecture für den oberen Abschluss des Bauwerks wählte, fügt sich das Gebäude besser als zuvor in die Umgebung ein. Dabei hatte sich die Aufstockung erst auf Anregung des Architekturbüros ergeben – zunächst war nur eine Fassadensanierung geplant gewesen.


Jede Wohnung verfügt über eine rundum verglaste Loggia. Darüber hinaus sorgen großformatige elektrisch betriebene Dachfenster von Velux für viel natürliches Licht im Inneren. © Michel Bonvin/Velux
Leichte Konstruktion
Über dem Bestandsgebäude mit L-förmigem Grundriss entstand ein neuer Dachstuhl, der komplett aus Holzgefertigt wurde. Da das Gebäude kaum tragende Innenwände hat und die Bewohnenden der unteren Geschosse möglichst unbehelligt bleiben sollten, trägt das Holzskelett die Lasten auf die bestehenden Außenwände ab. Das Gewicht der neuen Konstruktion entspricht dabei ziemlich genau jenem einer überschüssigen 12-cm-Betonschicht, die während der Aufstockung entfernt wurde.
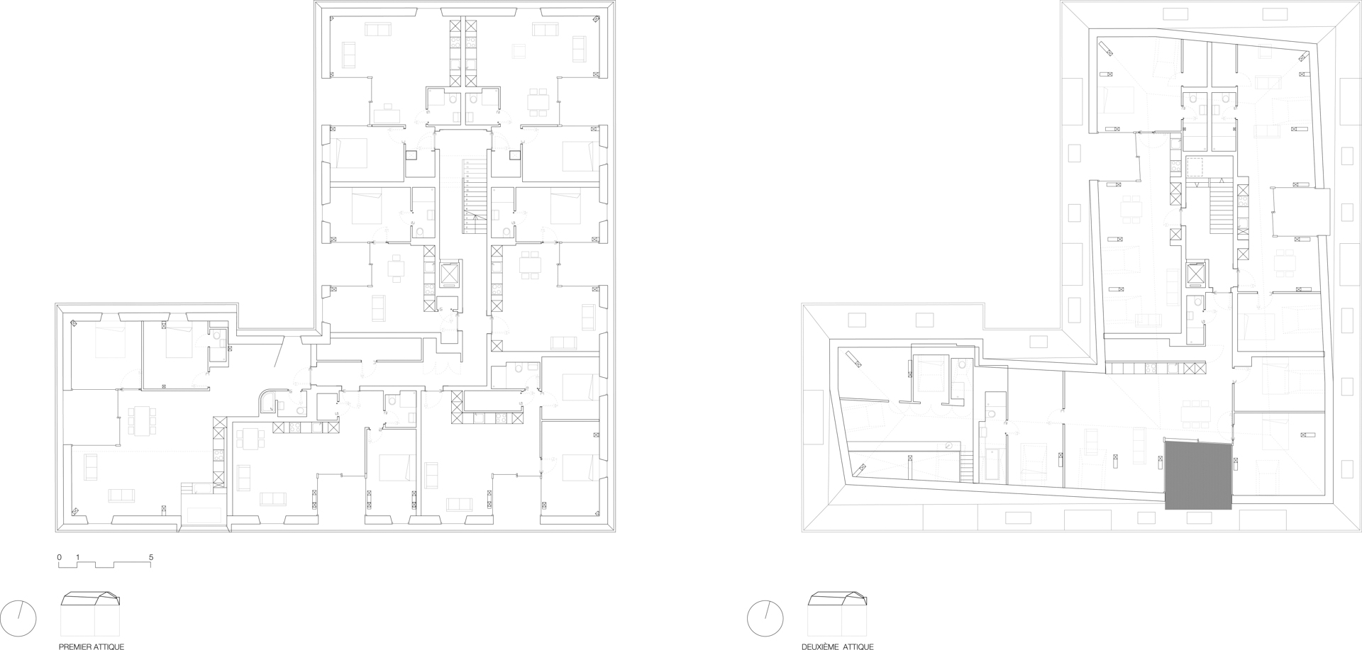
Viel Licht im Inneren
In dem zweigeschossigen, leicht asymmetrischen Dachaufbau ist Raum für zehn neue Wohnungen entstanden. Ein traditionelles Mansarddach zeichnet sich meist durch wenig Öffnungen aus – oder die Geometrie des Daches wird durch Gauben empfindlich gestört. Die Architektinnen und Architekten wählten großformatige Dachfenster von Velux für die natürliche Belichtung. Gleichzeitig sollte jede Wohnung über einen direkten Zugang ins Freie verfügen. Erreicht wurde dies dadurch, dass jeder Wohnung eine verglaste Loggia zugeordnet wurde. CHI
Hier geht’s zum Unternehmensporträt von Velux.
Architektur: Localarchitecture
Bauherr: Privat
Standort: Lausanne (CH)
Kategorie: Gebäudehülle
Hersteller: Velux
Produkt: Elektro-Klapp-Schwing-Fenster

















