Unten Ziegel, oben Holz und Kork
Wohnhaus bei Barcelona von Àgora Arquitectura
Oben leicht und offen, unten schwer und geschlossen – diese Dualität prägt das Haus in Sant Vicenç dels Horts innen wie außen. © José Hevia
Ein ruhiges Wohngebiet in Hanglage, das Grundstück dreiseitig von Nachbarhäusern gefasst und nach Norden zur Straße geöffnet: So gestaltete sich die Ausgangslage für das Wohnhaus in Sant Vicenç dels Horts 20 km nordwestlich von Barcelona. Ein Geräteschuppen und ein zweites, schon verfallenes Gebäude wiesen auf die einstige landwirtschaftliche Nutzung des Geländes hin.
Der Entwurf von Àgora Arquitectura greift die vorhandene terrassierte Topografie auf: Eine Ziegelwand umschließt den höher gelegenen Teil des Grundstücks und das halb eingegrabene Erdgeschoss gleichermaßen. Eine T-förmige Innenwand, ebenfalls aus Ziegeln, steift die Konstruktion aus. Auf diesen Sockel platzierten die Architekten ein Obergeschoss aus vorgefertigten Brettsperrholzelementen, das sie außen mit weiß gekalkten Korkplatten verkleideten. Nach Süden öffnet es sich mit einer großen, durch außen liegende Holzrollos verkleideten Glasfront.


Eine Wendeltreppe aus Stahl verbindet die beiden Wohnebenen. Das Bad im Obergeschoss erhält Tageslicht von oben. © José Hevia
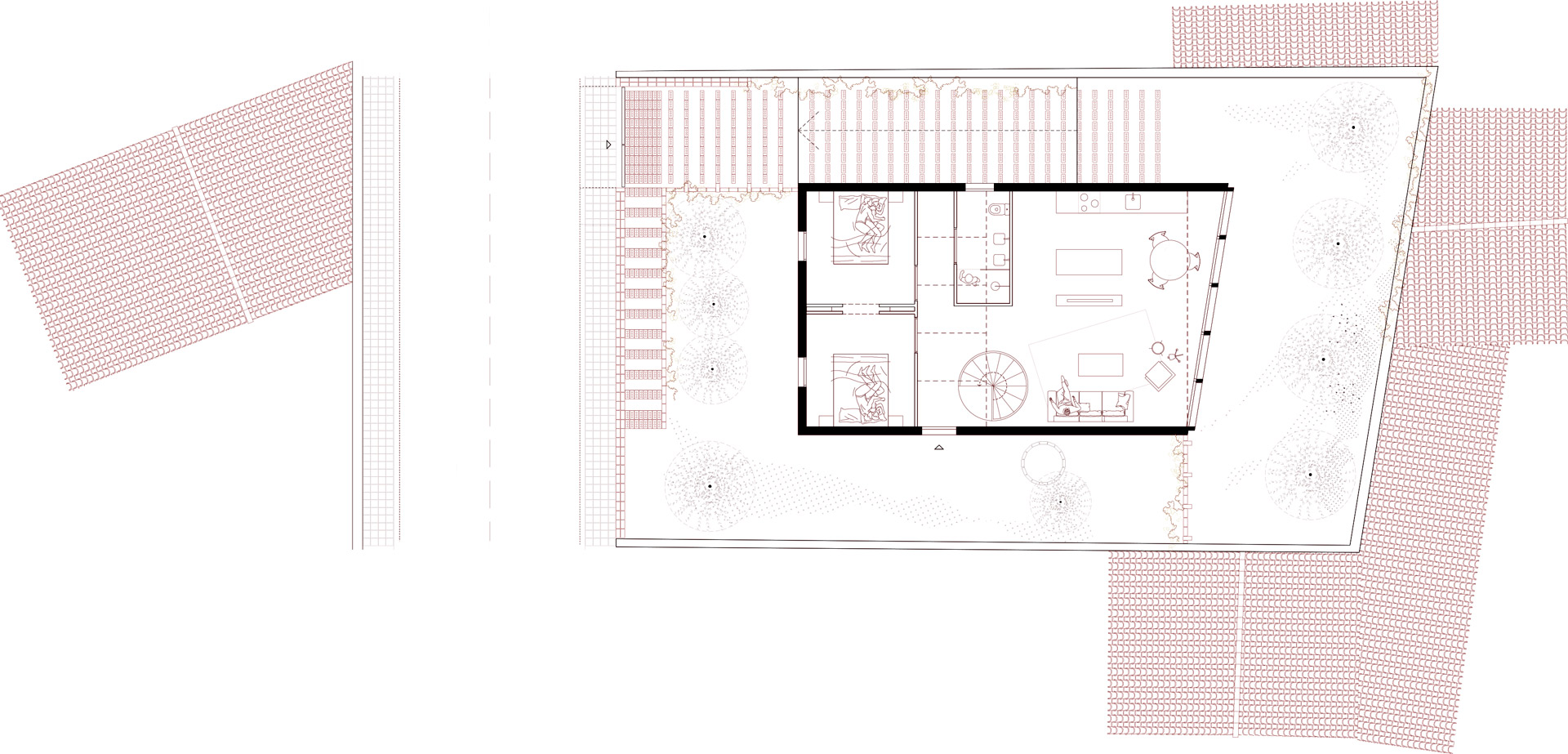
So unterschiedlich die beiden Baukörper von außen wirken, so verschieden sind sie auch im Inneren. Das Erdgeschoss mit kleinem Wohnzimmer, Bad, Schlafzimmer sowie Hauswirtschaftsraum ist weitgehend geschlossen, um im Sommer kühl zu bleiben. Das Mauerwerk wurde im Inneren sichtbar belassen. Ganz anders dagegen die Winterwohnung auf der oberen Ebene: Küche, Wohn- und Essbereich bilden hier ein Raumkontinuum, das lediglich von zwei eingestellten, weiß lackierten Sperrholzkuben unterbrochen wird. Einer davon beherbergt ein Bad, das nur von oben belichtet wird – durch das gleiche Oberlicht, das auch den Flur vor den beiden Schlafzimmern erhellt.


Zur Straße im Norden schirmen sich Haus und Grundstück mit einer perforierten Ziegelwand ab. © José Hevia
Zur Straße hin ist das Grundstück mit einer perforierten Ziegelwand geschlossen. Hinter dem Zugangstor führen zwei getrennte Wege in die beiden Geschosse: geradeaus eine Rampe hinunter ins Erdgeschoss und rechter Hand eine Treppe hinauf in den höheren Teil des Gartens mit Brunnen und Olivenbaum. Von dort aus führt eine Eingangstür direkt ins Obergeschoss. Innen verbindet eine Wendeltreppe aus Stahl die beiden Etagen. Durch ihre Deckenöffnung fällt Tageslicht tief ins Innere des massiven Sockelbaus.
Architektur: Ágora arquitectura
Bauherr: privat
Standort: St. Vicenç dels Horts, Barcelona (ES)













