Brick below, wood and cork above
Residential Building near Barcelona by Àgora Arquitectura
Light and open at the top, heavy and closed at the bottom - this duality characterises the interior and exterior of the house in Sant Vicenç dels Horts. © José Hevia
A quiet residential area on a slope, the plot bordered on three sides by neighbouring houses and open to the road to the north: this was the starting point for the house in Sant Vicenç dels Horts, 20 km northwest of Barcelona. A tool shed and a second, already dilapidated building were evidence of the site's former agricultural use.
Àgora Arquitectura's design takes advantage of the existing terraced topography: A brick wall encloses both the upper part of the property and the semi-subterranean ground floor. A T-shaped internal wall, also in brick, reinforces the structure. On this base, the architects placed an upper floor of prefabricated cross-laminated timber elements, clad on the outside with whitewashed cork panels. It opens to the south with a large glass façade clad with external wooden blinds.


A steel spiral staircase connects the two levels. The upstairs bathroom receives daylight from above. © José Hevia
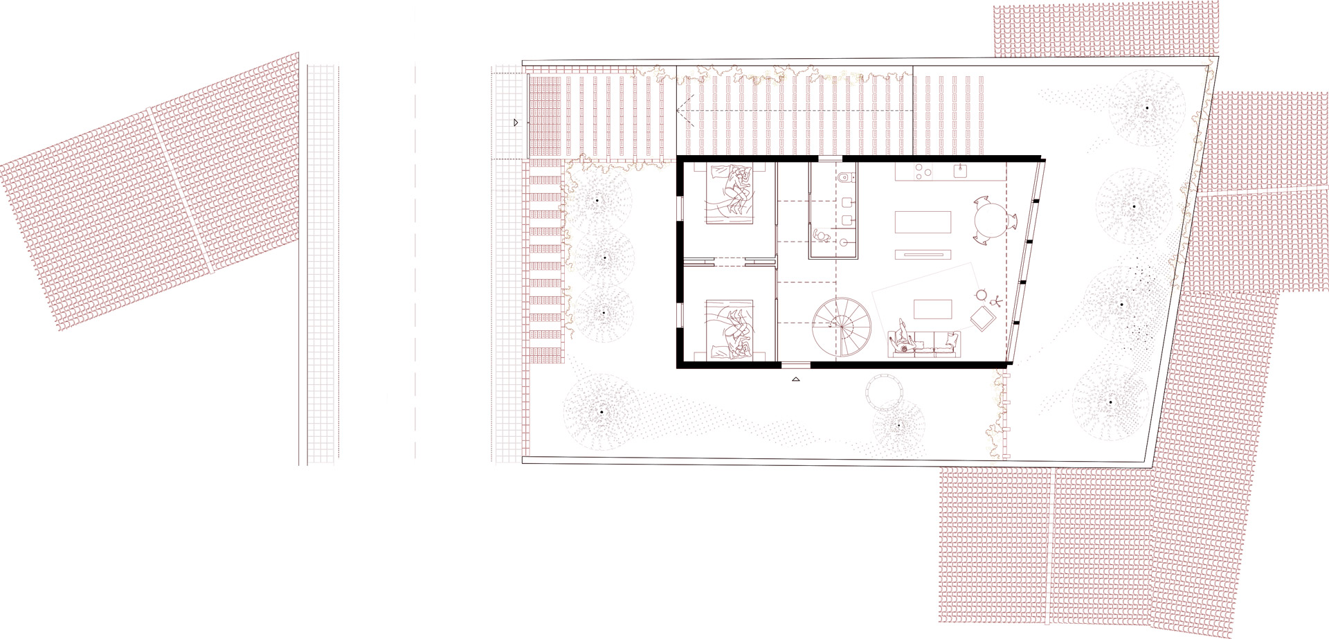
The two buildings look very different from the outside, and this is reflected in the interior as well. The ground floor, with its small living room, bathroom, bedroom and utility room, is largely enclosed to keep it cool in the summer. The brickwork has been left visible on the inside. The winter apartment on the upper floor is completely different: the kitchen, living and dining areas form a spatial continuum, interrupted only by two white-painted plywood cubes. One of these contains a bathroom that is lit from above by the same skylight that illuminates the corridor in front of the two bedrooms.


The house and plot are screened from the road to the north by a perforated brick wall. © José Hevia
The property is separated from the road by a perforated brick wall. Behind the gate, two separate paths lead to the two floors: straight ahead a ramp down to the ground floor, and to the right a flight of steps up to the higher part of the garden with fountain and olive tree. From there, a front door leads directly to the upper floor. Inside, a steel spiral staircase connects the two floors. Daylight falls deep into the interior of the solid plinth building through the opening in the ceiling.
Architecture: Ágora arquitectura
Client: private
Location: St. Vicenç dels Horts, Barcelona (ES)













