Holzbau mit Strohballendämmung
Wohnhaus bei Prag von Studio Circle Growth
Äußerlich orientiert sich die Casa de Mi Luna in Karlštejn an tradierten Bauformen. Nur die Fassadenverkleidung aus Kalkputz und Lärchenholz suggeriert Modernität. © Fredrik Frendin
Die Casa De Mi Luna liegt in Karlštejn rund 30 km südwestlich von Prag, mit Blick auf das Tal des Flusses Berounka und die alte Burg. Das Wohnhaus wurde für eine argentinisch-tschechische Familie entworfen, die sich von der Hektik der Hauptstadt erholen wollte. Die äußere Form und das äußere Erscheinungsbild mussten den örtlichen Vorschriften entsprechen, da das Haus am Rande des Naturschutzgebietes Český kras liegt. Dort soll auch das bauliche Erbe der Region erhalten werden.


Das Einfamilienhaus besteht weitgehend aus lokalen und natürlichen Baumaterialien. © Fredrik Frendin


Hinter dem Fassadenputz verbirgt sich eine mit Strohballen gedämmte Holzrahmenkonstruktion. © Fredrik Frendin
Tradition trifft Naturbaustoffe
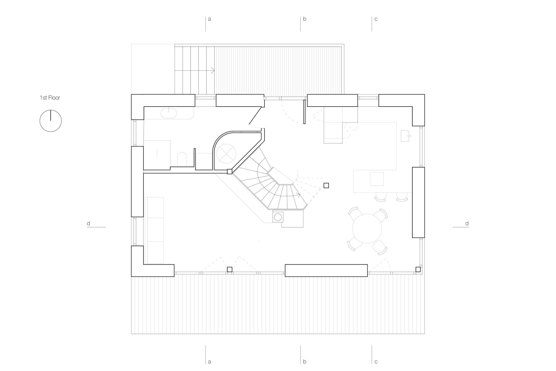
Das Haus entspricht daher örtlichen Bautraditionen: ein einfaches, symmetrisches Satteldach, zu den Traufen ausgerundete Außenwände, eine Dachdeckung aus Biberschwanzziegeln und Fassadenverkleidungen aus Kalkputz und Lärchenholz. Das Innere der Casa de Mi Luna ist dagegen offener gestaltet als traditionell üblich – vor allem im Erdgeschoss. Das zentrale Element bildet eine segmentierte Holztreppe im einzigen zweigeschossigen Raum des Hauses. Sie zoniert das Erdgeschoss in mehrere halboffene Bereiche und teilt das Obergeschoss in zwei nahezu spiegelsymmetrische Hälften.


Die segmentierte Treppe aus Holz bildet das zentrale Element im Erdgeschoss. © Fredrik Frendin


Die Treppe zoniert das Erdgeschoss in mehrere Bereiche. © Fredrik Frendin
Wandkonstruktion aus Holz und Strohballen
In den Innenräumen dominieren Holz und Lehm, mit Akzenten aus traditionellen blauen, grünen und terrakottafarbenen Fliesen. Generell achteten die Architekten darauf, so viele lokale und natürliche Materialien wie möglich zu verwenden. Die Außenwände bestehen aus vorgefertigten Stroh- und Holzelementen, die sich vor Ort schnell zusammensetzen ließen. Auf der Innenseite sind diese mit drei Zentimetern Lehmputz verputzt, um die Feuchtigkeit zu speichern und zu regulieren. Die oberste Schicht bilden innen ein feiner weißer Lehmputz. Die Innenwände sind mit Kiefernsperrholz verkleidet.


Holz, Lehmputz und Terrakottafliesen dominieren die Innenräume. © Fredrik Frendin


Der zentrale Treppenraum ist der einzige zweigeschossige Bereich des Hauses. © Fredrik Frendin
Kehlbalkendach der ungewöhnlichen Art
Die gewölbten Decken des zentralen Treppenhauses sind mit einem feinen weißen Kaolin-Lehmputz beschichtet. Er wurde auf vorgefertigte Lehmplatten aufgetragen, die auf Holzlatten befestigt sind. Die gewölbte Decke entstand aus der Notwendigkeit heraus, die Dachsparren mit einem Kehlbalken zu verbinden. Anstatt dies mit geraden Hölzern zu tun, ließen die Architekten gewölbte Kehlbalken aus Sperrholz anfertigen.
Architektur: Studio Circle Growth
Bauherr: privat
Standort: Karlštejn (CZ)
Bauunternehmen: Terra Sylva


























