Holzbau mit Strohballendämmung
Wohnhaus bei Vicenza von Jimmi Pianezzola
Perfekte Symmetrie prägt das Einfamilienhaus nördlich von Vicenza. Für Gebäudeform und Grundriss stand eine Renaissance-Villa Pate. © Alberto Sinigaglia
Für das Einfamilienhaus in Dueville stand eine Renaissance-Villa Pate – nur nicht bei der Konstruktion aus Holz und Strohballendämmung. Die knapp 15 000 Einwohner zählende Kleinstadt liegt etwas nördlich von Vicenza in der zersiedelten Landschaft des Veneto. Auch von Palladio ist hier eine Villa erhalten; ein weiteres herrschaftliches Wohnhaus entstand im 18. Jahrhundert im palladianischen Stil.


Auf der Südseite zieht sich ein verglaster Wintergarten quer über die ganze Gebäudefront. © Alberto Sinigaglia
Für sein – bezeichnenderweise Villa No. 3 getauftes – Einfamilienhaus wählte der Vicenzaner Architekt Jimmi Piazzola indes einen anderen Renaissancebau zum Vorbild: die Villa Vescovi des Architekten Giovanni Maria Falconetto in den Hügeln von Padua.
Wintergarten unter dem Pyramidendach
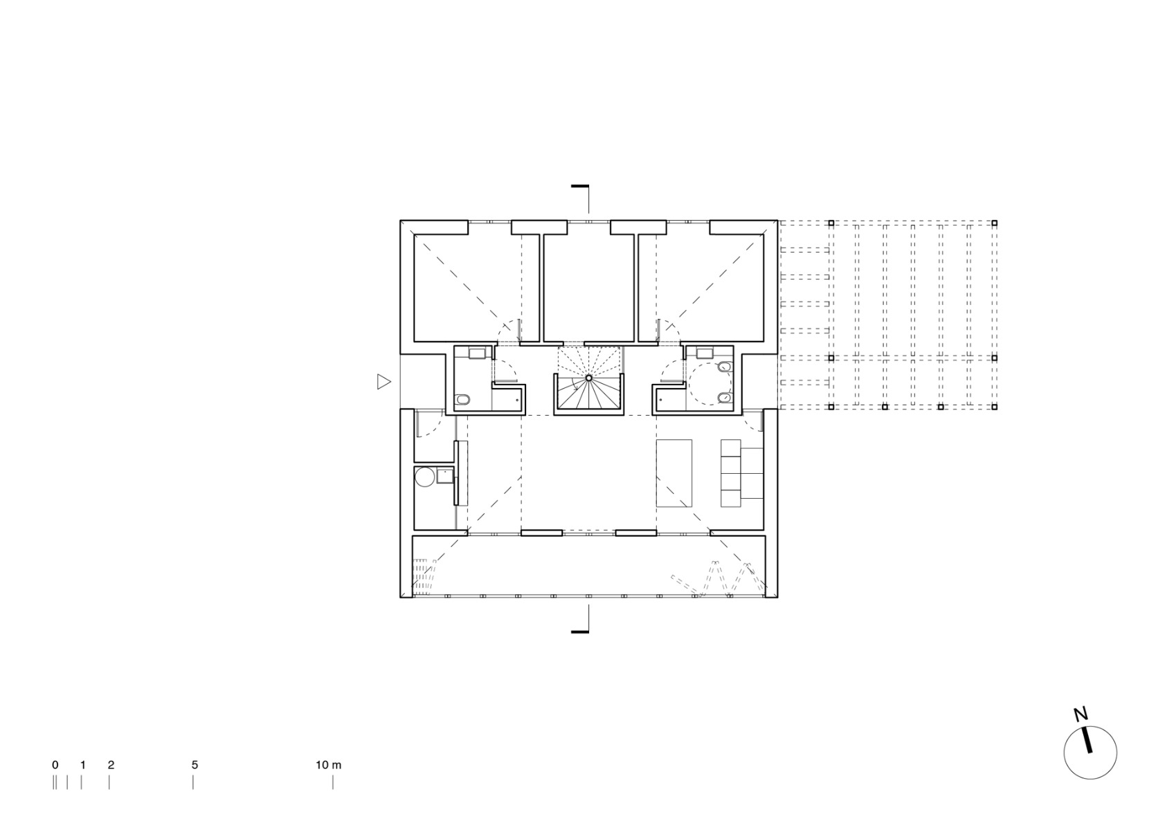
Sowohl der Quadratgrundriss als auch das Pyramidendach des Neubaus leiten sich von dieser Referenz ab. Den Portikus, der das historische Vorbild im Süden flankiert, ersetzte Piazzola durch einen unbeheizten Wintergarten. Dahinter erstreckt sich ein Wohnraum mit offener Küche fast über die ganze Breite des Hauses, flankiert lediglich von einer Waschküche und einem Windfang.


Im Norden gibt sich das Haus geschlossener, mit Putzfassaden und einem schlichten Wellblechdach. © Alberto Sinigaglia
Einfache Details, symmetrische Form
Bläulich-weiße Putzfassaden, bodentiefe Aluminiumfenster und ein Wellblechdach ohne Rinnen bestimmen das schmucklose Äußere des Hauses. Auf der Nordseite liegen zwei Schlafzimmer und ein Arbeitsraum. Die beiden Eingänge führen, etwas zurückgesetzt ins Gebäudevolumen, von Westen und Osten herein.


Der Wintergarten im Süden funktioniert als Klimapuffer. © Alberto Sinigaglia


Die Schlafräume liegen auf der Nordseite. © Alberto Sinigaglia
Klimakonzept nach traditionellem Vorbild
Konstruktion, Raum- und Klimakonzept gehen bei dem Haus Hand in Hand. Die Trennwand zwischen Wohnraum und Wintergarten besteht aus ungedämmtem Massivholz und bildet im Winter einen wirksamen Wärmespeicher. Im Sommer schützt das tief herabgezogene Dach vor zu viel Sonneneinstrahlung. Für die Lüftung adaptierte Piazzola gleich drei Konzepte aus der Renaissancevilla: eine Querlüftung von Süd nach Nord, eine Kaminlüftung mit thermischem Auftrieb durch ein Dachfenster sowie die Zuluftführung durch Erdkanäle, die in der Schaumglasschotter-Dämmung unter der Bodenplatte verlegt sind.


Holz und Stroh sind die beiden wesentlichen Baumaterialien für Fassaden und Dach. © Jimmi Pianezzola


Die Dachflächen liegen am höchsten Punkt auf einer Wandscheibe aus Massivholz auf. © Jimmi Pianezzola
Holz und Stroh
Außenwände und Dach des Hauses bestehen aus vorgefertigten Holzelementen mit Strohballendämmung. Die Dachflächen liegen am höchsten Punkt auf einer Wandscheibe aus Massivholz auf, die Piazzola mit einem Totempfahl vergleicht. Eine Wendeltreppe in der Gebäudemitte führt hinauf ins Mezzaningeschoss, das als allseits offene Ebene ohne Trennwände konzipiert ist.
Architektur: Jimmi Pianezzola
Bauherr: privat
Standort: Dueville (IT)
Tragwerksplanung: Costante Bonacina, Arpostudio
Bauunternehmen: Casalogica



















