Nachverdichtung unter der Burgruine
Wohnhäuser am Badener Schlossberg bei Zürich
Die beiden je 125 m² großen Wohnhäuser stehen am steil aufragenden Hang des Badener Schlossbergs. © Beat Bühler
Seit mehr als 1000 Jahren überragt die Burg Stein das Stadtzentrum von Baden bei Zürich. Daran änderte auch die Tatsache nichts, dass sie bereits 1712 zerstört wurde und große Teile davon als Baumaterial für eine Kirche verwendet wurden. Am Südhang des Schlossbergs errichtete der Badener Architekt Hans Loesche 1923 eine herrschaftliche Villa im historisierenden Stil, mit streng symmetrisch gegliederten Fassaden und Walmdach.


Die Villa von 1923 wurde saniert und zu zwei Mietwohnungen umgebaut. © Beat Bühler
Behutsame Nachverdichtung im Bestand
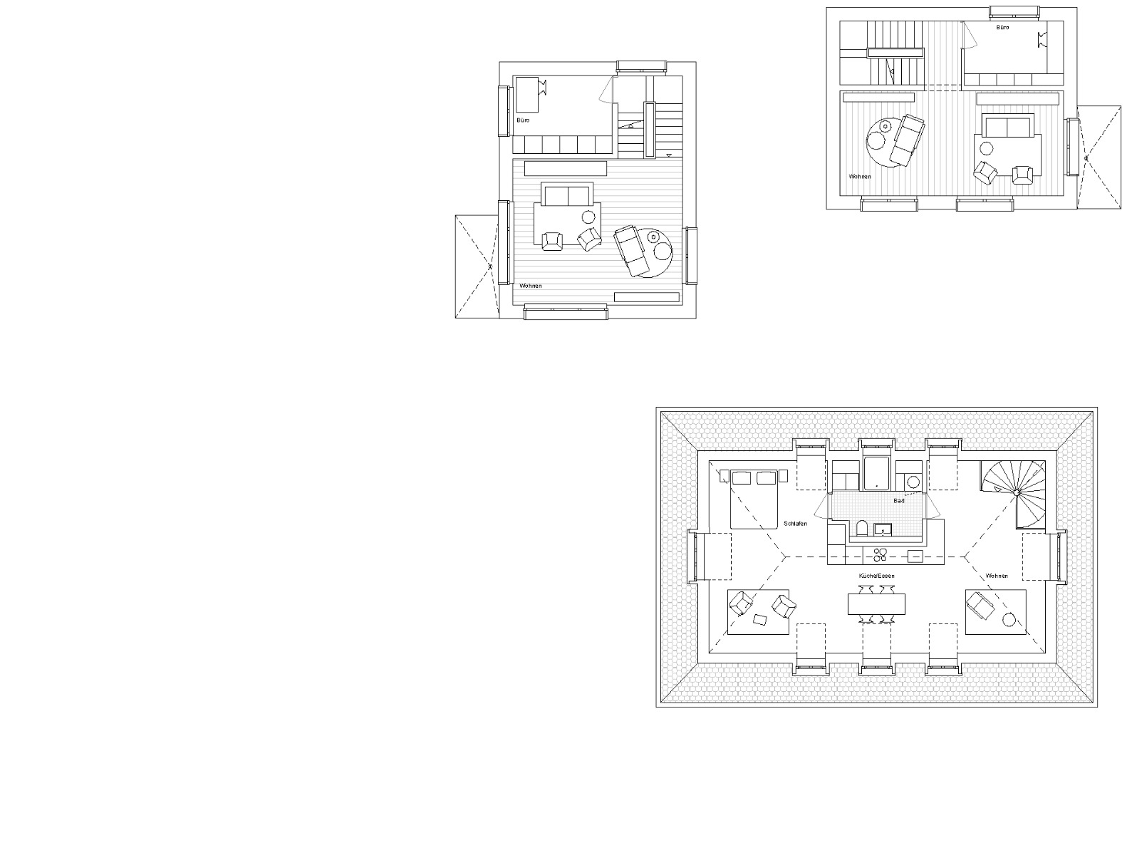
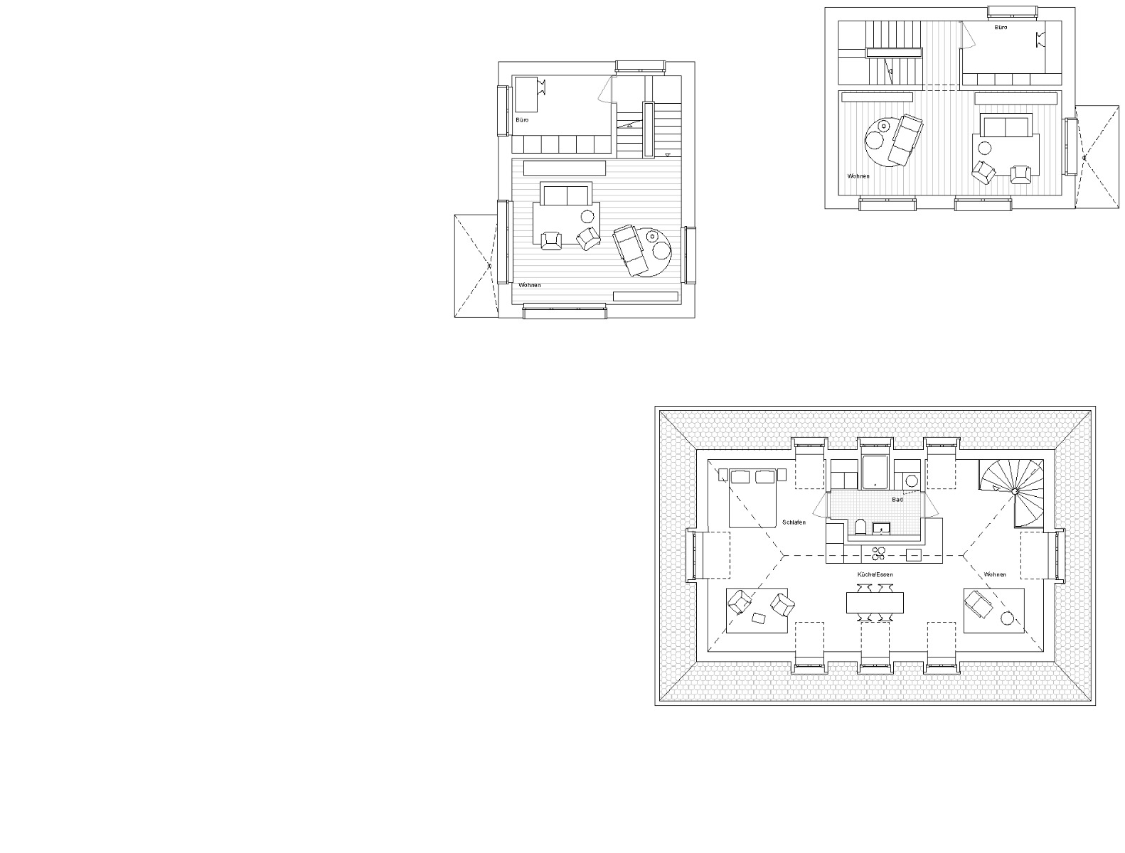
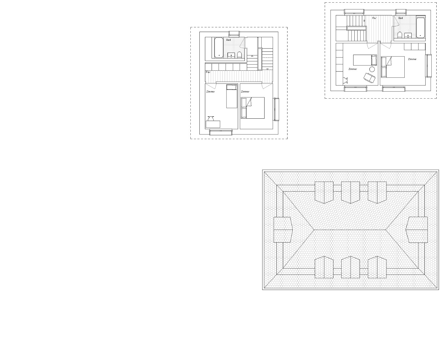
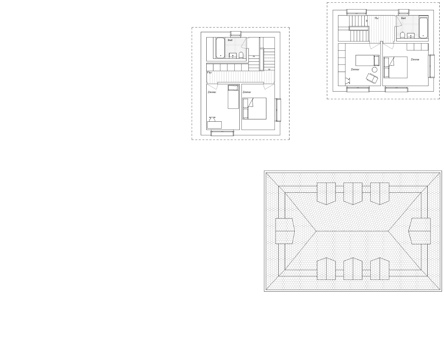
Nun beauftragten die drei Erben der Villa und ihres 2000 m² großen Grundstücks das Züricher Architekturbüro Menzi Bürgler Kuithan mit der Sanierung der Villa und dem Bau zweier großer Einfamilienhäuser am Schlosshang. Die Idee dahinter: Die Mieteinnahmen aus den Neubauten sollten helfen, die Sanierung langfristig zu finanzieren. Mit je 125 m² Wohnfläche sind die beiden Häuser für heutige Verhältnisse eher klein. Mehr erlaubte der örtliche Bebauungsplan nicht, um den Charakter des Villengebiets nicht zu zerstören.
Die Villa ist zwar im örtlichen Denkmalinventar eingetragen, aber nicht geschützt. In ihrem Inneren legten die Architekten die unteren beiden Geschosse zu einer großzügigen 5,5-Zimmer-Wohnung zusammen und schufen eine zusätzliche Einliegerwohnung im Dachgeschoss. Die beiden Einfamilienhäuser liegen wenige Schritte hangaufwärts, sind jedoch so positioniert, dass zwischen ihnen und den Privaträumen der Villa kein direkter Sichtkontakt möglich ist.


Die Fachwerkfassaden mit Ausmauerung aus Hanfkalksteinen wurden innenseitig mit Holz verschalt. © Beat Bühler / © Menzi Bürgler Kuithan Architekten


Die Fachwerkfassaden mit Ausmauerung aus Hanfkalksteinen wurden innenseitig mit Holz verschalt. © Beat Bühler / © Menzi Bürgler Kuithan Architekten
Holzkonstruktion hinter Besenstrichputz
Sichtbetonsockel und ein grauer Besenstrichputz bilden einen neutralen Fassadenhintergrund. Davor heben sich die hellen Holzrahmen der Fenster und die – in Anlehnung an die Altbaufassaden – rosa gestrichenen Dachuntersichten wirkungsvoll ab. Für eine subtile Irritation bei der Betrachtung der Fassaden sorgen die horizontal auskragenden Eingangsüberdachungen aus massivem Sichtbeton. Hinter der Putzschicht verbirgt sich eine Holzkonstruktion, die mit 20 cm starken Hanfkalksteinen ausgefacht ist. Davor bilden weitere 20 cm Hanfkalk eine Kombination aus Trag- und Dämmschicht.


Sichtbar belassene Holzbalkendecken mit Auflage aus Kalksandsteinplatten prägen die Wohnräume. © Beat Bühler
Behutsam integrierte Photovoltaik
Auch bei den Decken legten die Architekten Wert auf eine ressourcenschonende, CO2-optimierte Bauweise. Sie bestehen aus 160 mm hohen Holzbalken mit eingelegten Kalksandsteinplatten im Format 250 x 65 mm. Indach-Photovoltaikanlagen auf den beiden Neubauten versorgen die drei Wohnhäuser mit Strom. Er fließt unter anderem in eine Sole-Wasser-Wärmepumpe im Altbau sowie zwei Luft-Wasser-Wärmepumpen in den Neubauten, die Häuser mit Wärme versorgen.
Architektur: Menzi Bürgler Kuithan Architekten
Bauherr: privat
Standort: Schlossbergweg 6, 5400 Baden (CH)
Tragwerksplanung: Zehnder & Partner
Elektroplanung: Schäfer Partner
HLKS-Planung: Synplan
Bauphysik: Kuster + Partner



















