Redensification beneath the castle ruins
Residential Buildings on Baden's Schlossberg Hill near Zurich
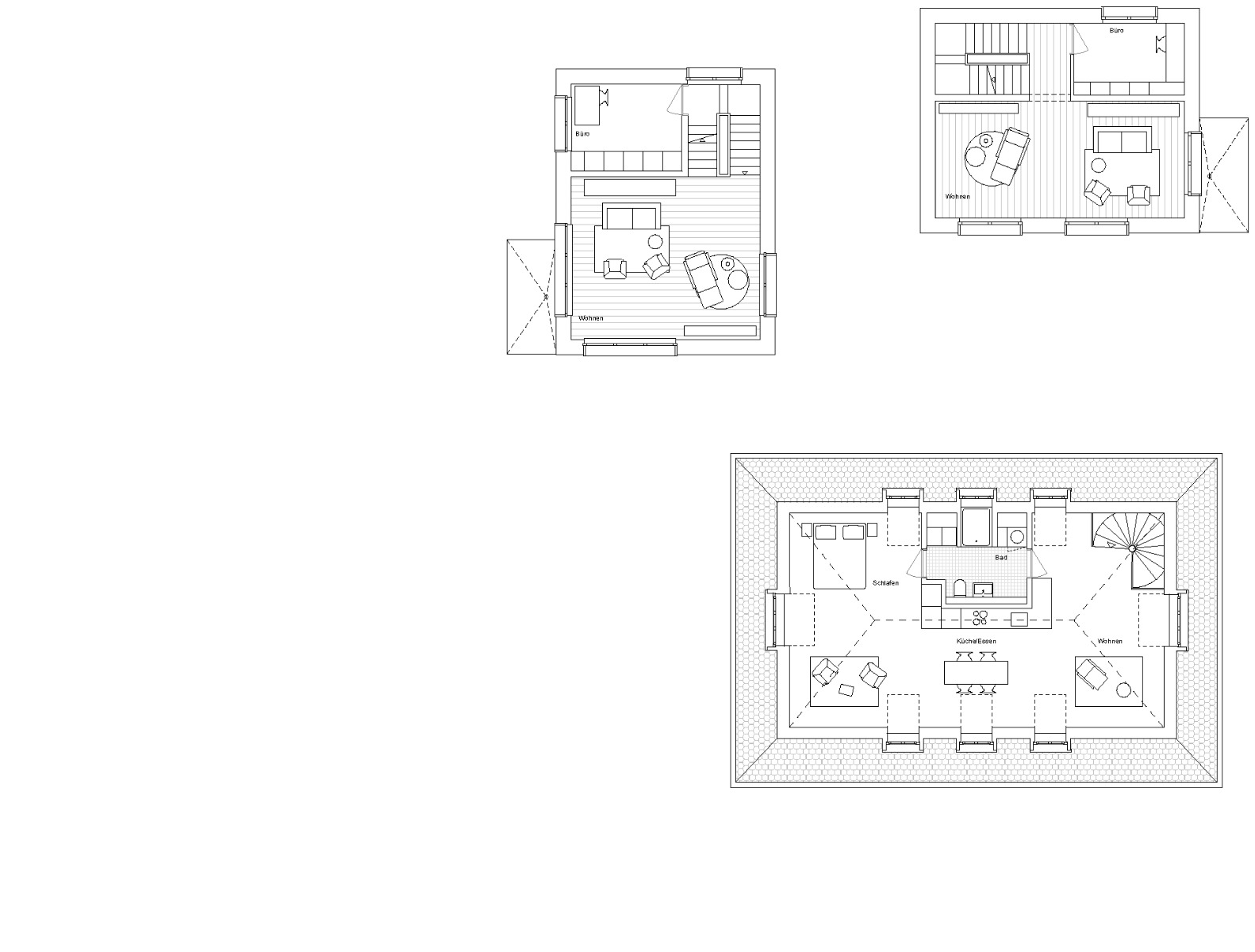
The two 125 m² residential buildings are located on the steep slope of the Badener Schlossberg. © Beat Bühler
Stein Castle has towered over the town centre of Baden for more than 1,000 years. This remained unchanged even after it was destroyed in 1712, with large parts of the castle being used as building materials for a church. On the southern slope of the Schlossberg, architect Hans Loesche built a stately villa in 1923 in a historicist style with strictly symmetrical facades and a hipped roof.


The villa, which was built in 1923, has been renovated and converted into two rental apartments. © Beat Bühler
Careful densification of existing buildings
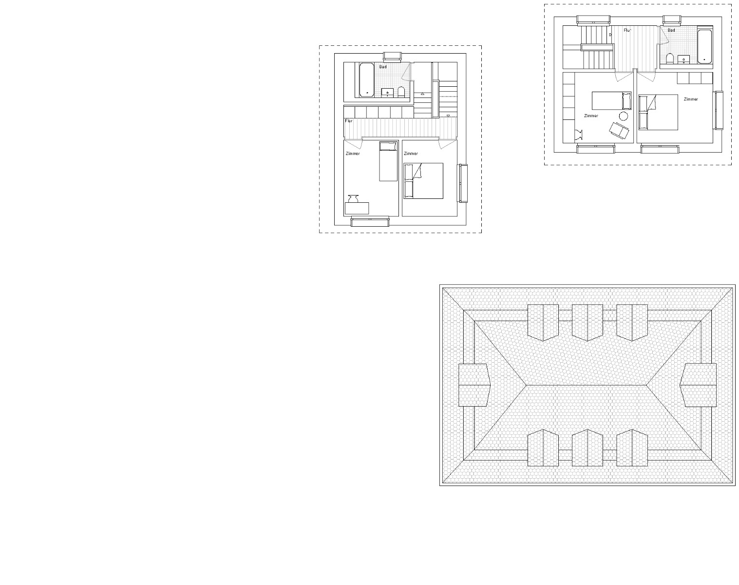
The three heirs to the villa and its 2,000 m² plot of land have now commissioned the Zurich-based architectural practice Menzi Bürgler Kuithan to renovate the villa and construct two large single-family homes on the Schlossberg. The idea is that the rental income from the new buildings will help finance the renovation in the long term. At 125 m² each, the two houses are rather small by today's standards. The local development plan did not permit more in order to preserve the character of the villa district.
Although the villa is listed in the local inventory of historic buildings, it is not protected. Inside, the architects have combined the lower two floors to create a spacious five-and-a-half-room apartment, and have created an additional granny flat in the attic. The two detached houses are located a few steps uphill and are positioned so that there is no direct visual contact between them and the villa's private rooms.


Die Fachwerkfassaden mit Ausmauerung aus Hanfkalksteinen wurden innenseitig mit Holz verschalt. © Beat Bühler / © Menzi Bürgler Kuithan Architekten


© Beat Bühler / © Menzi Bürgler Kuithan Architekten
Wooden construction behind broom finish plaster
Exposed concrete bases and grey plaster with a broom finish form a neutral backdrop to the facade. The light wooden window frames and pink-painted soffits, reminiscent of old building facades, stand out effectively against this backdrop. Horizontally projecting entrance canopies made of solid exposed concrete create a subtle visual disturbance. Behind the plaster layer is a wooden structure filled with 20 cm-thick hemp-lime bricks. In front of this is another 20 cm layer of hemp lime, which acts as both a load-bearing and an insulating layer.


Exposed wooden beam ceilings with sand-lime brick slabs characterise the living spaces. © Beat Bühler
Carefully integrated photovoltaics
The architects also prioritised a resource-saving, CO2-optimised construction method for the ceilings. These consist of 160 mm-high wooden beams with 250 x 65 mm sand-lime bricks inserted into them. In-roof photovoltaic systems on the two new buildings supply the three residential buildings with electricity. This electricity flows into a brine-water heat pump in the old building and two air-water heat pumps in the new buildings, which supply the houses with heat.
Architektur: Menzi Bürgler Kuithan Architekten
Bauherr: privat
Standort: Schlossbergweg 6, 5400 Baden (CH)
Tragwerksplanung: Zehnder & Partner
Elektroplanung: Schäfer Partner
HLKS-Planung: Synplan
Bauphysik: Kuster + Partner



















