Bestand halbiert, Fläche gewonnen
Wohnhauserweiterung bei Paris von Hemaa Architectes
L-förmig umgibt der Erweiterungsbau seinen historischen, halbierten Nachbarn. Der Wohnraum im Gartengeschoss ist halb ins Gelände eingegraben. © Sergio Grazia
Ein schlankes, nur an einer Seite an das Nachbargebäude angebautes Wohnhaus mit Bruchsteinmauerwerk und flachem Satteldach: Dieses Bild bot sich Passanten in dem ruhigen Wohngebiet südwestlich von Paris bis vor einigen Jahren. Hemaa Architectes halbierten das bestehende Bauvolumen, indem sie den etwas verwinkelten Eingangstrakt abreißen und lediglich den repräsentativeren Teil stehen ließen.


Bescheidener tritt das Haus an der Straße auf. Beigefarbenes Mauerwerk und weiße Fensterumrahmungen lassen Alt und Neu trotz aller Unterschiede als Einheit erscheinen. © Sergio Grazia
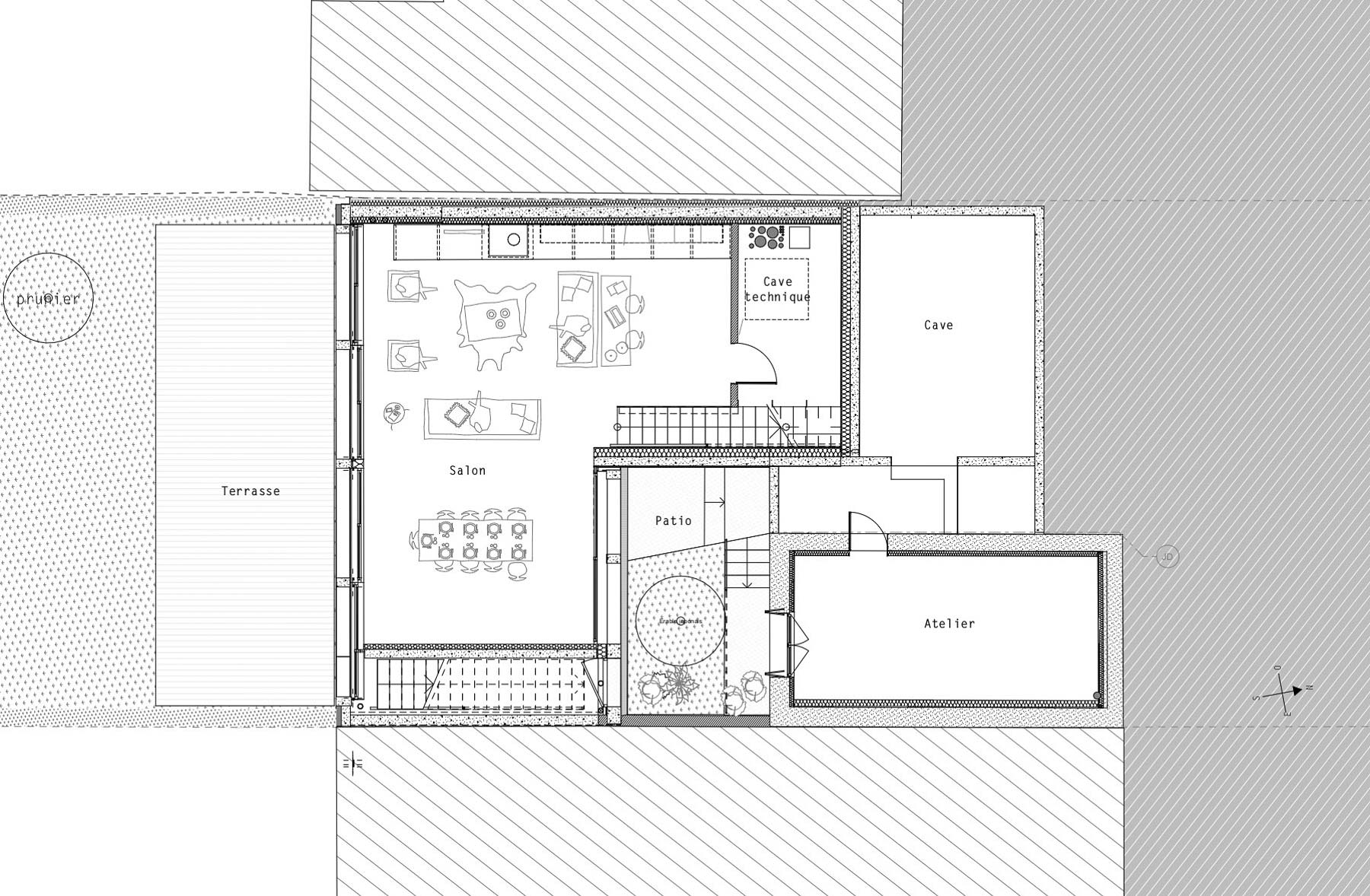
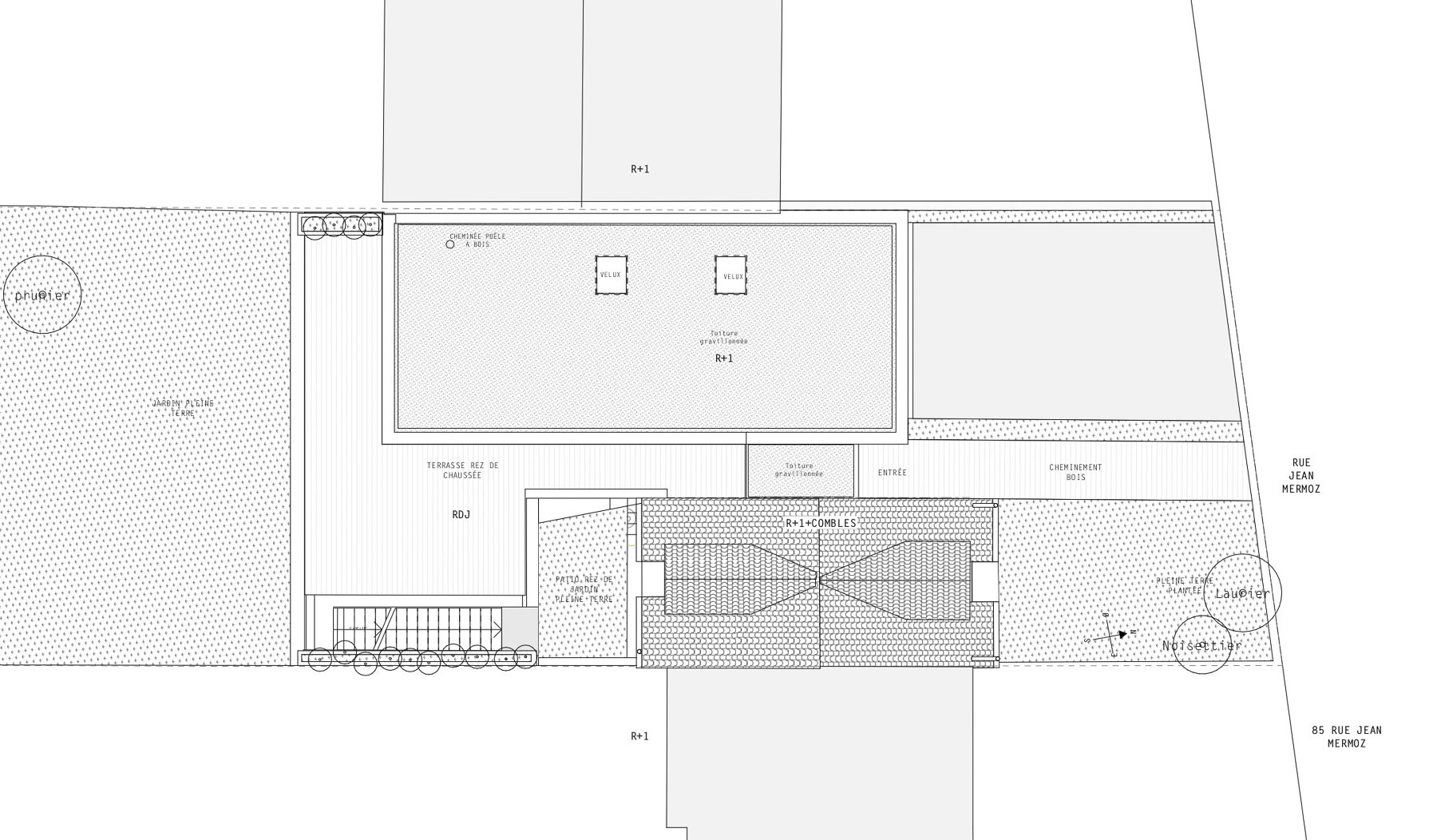
Das zum Garten hin deutlich abfallende Grundstück füllten sie mit einem L-förmigen Erweiterungsbau, der sich im Gartengeschoss über seine ganze Breite ins Grüne öffnet. Hier ist das Wohnzimmer der Bauherren untergebracht. Die zurückgesetzten beiden Obergeschosse nehmen die Gebäudeflucht des Nachbarhauses zur Linken auf.
Bruchstein trifft Ziegelmauerwerk
Eine gläserne Fuge verbindet nun Alt und Neu und dient zugleich als Verteilerraum und Windfang. Die Steine aus dem Abbruchhaus nutzten die Architekten, um die Stirnseite des Altbaus mit dem gleichen Material zu schließen. Der Neubau hüllt sich hingegen in beigefarbenes Ziegelmauerwerk. Richtung Straße tritt er hinter seinen historischen Nachbarn zurück und wirkt mit zwei Geschossen deutlich bescheidener.


Nur eine Glasfuge verbindet die beiden Gebäudeteile. Ansonsten sind sie auf allen Ebenen getrennt – auch um genug Tageslicht hereinzulassen. © Sergio Grazia
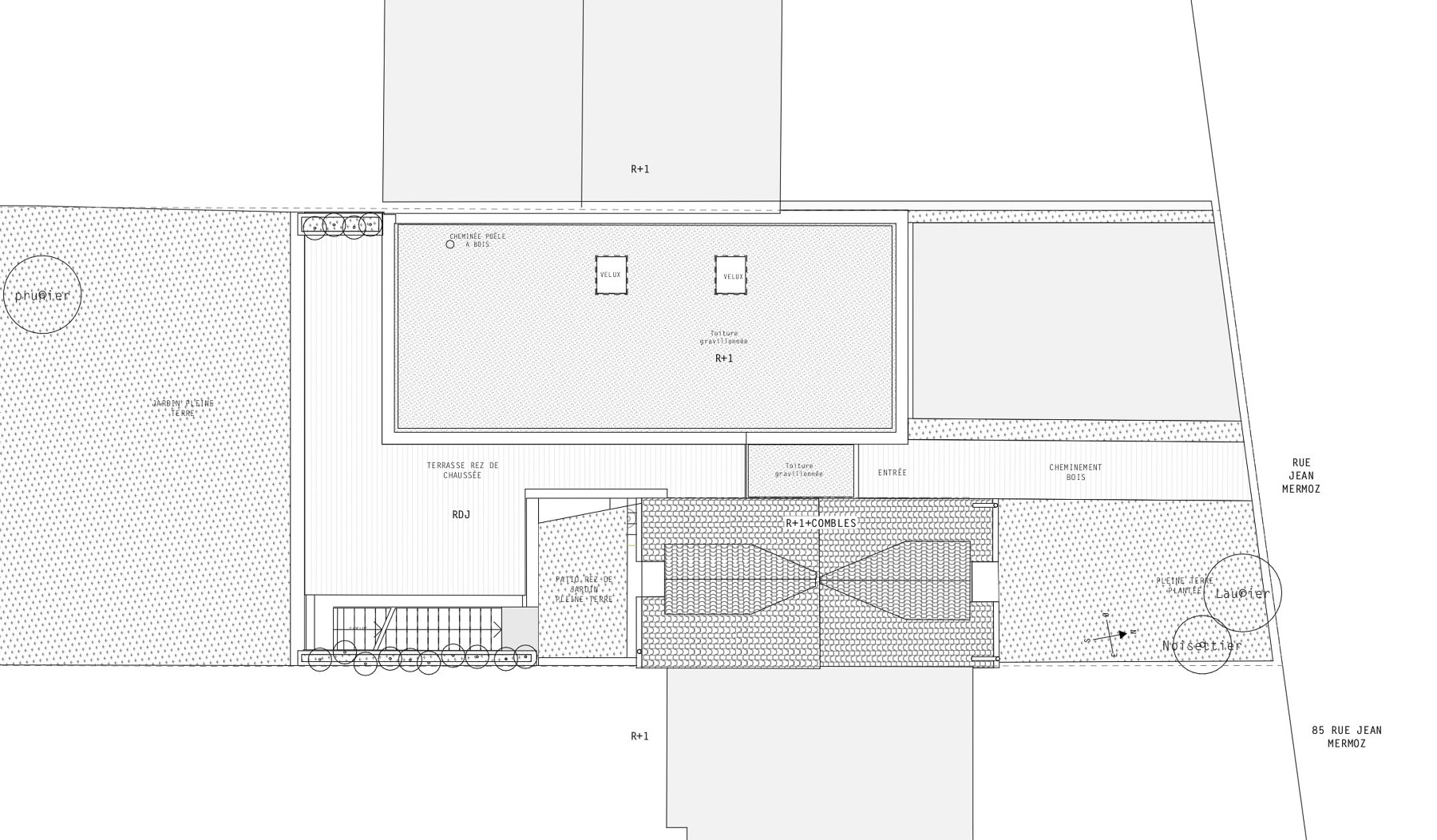
Mit Ausnahme des gläsernen Verbindungstrakts sind Alt- und Neubau klar voneinander getrennt. Ein kleiner Lichthof bringt Tageslicht bis ins Untergeschoss des Bestandsgebäudes, wo ein Atelier eingerichtet ist. Eine Etage höher, auf Straßenniveau, haben die Architekten eine Terrasse auf dem Dach des Wohnbereichs angelegt.


Die Küche erlaubt Durchblicke von der Straßen- zur Gartenseite. © Sergio Grazia
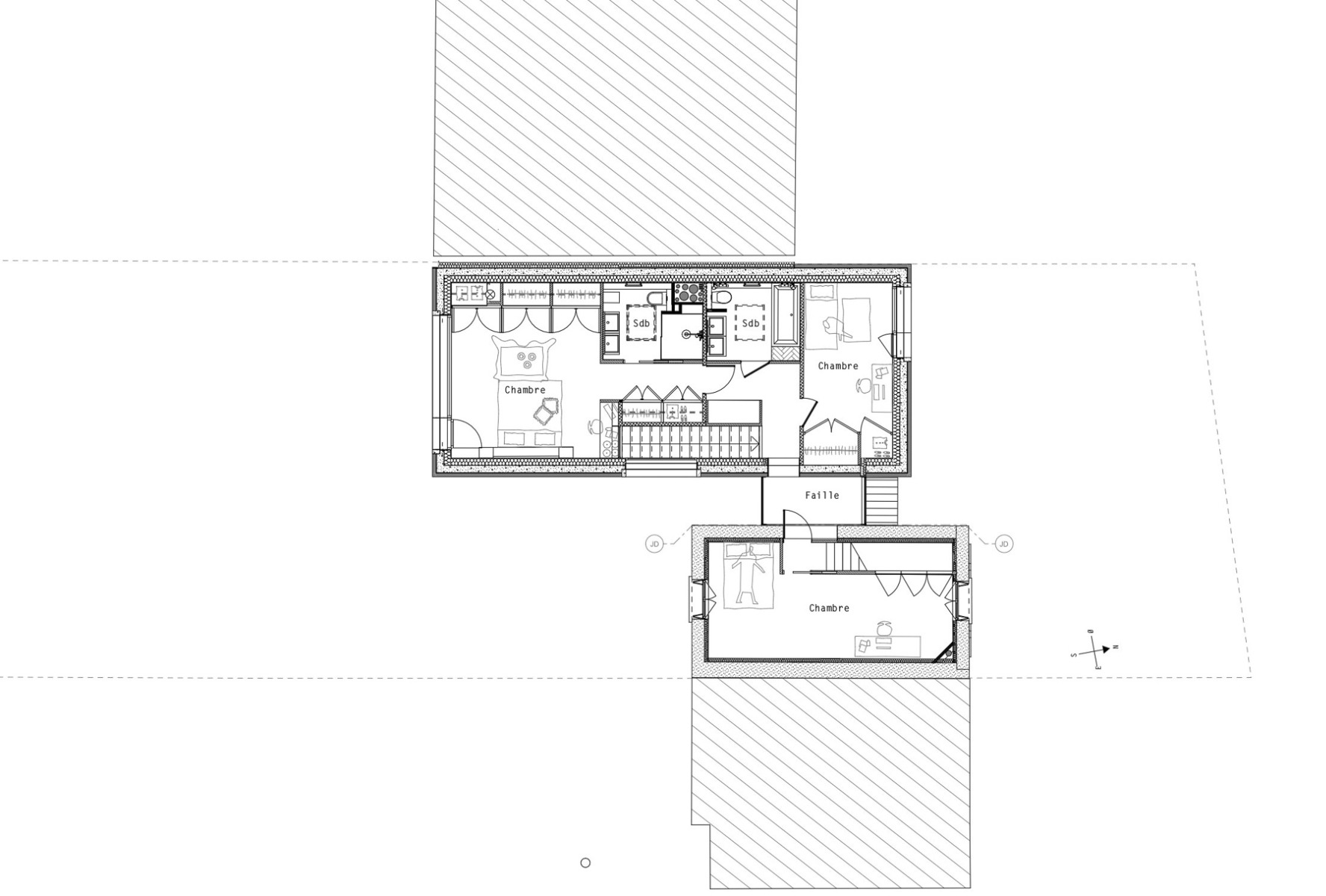
Die geräumige Küche liegt ebenerdig zur Straße und ist direkt vom Eingangsbereich aus erreichbar. Große Fensteröffnungen erlauben Durchblicke von der Straßen- zur Gartenseite. Einläufige Treppen verbinden die Geschosse miteinander.


Der Innenhof im Gartengeschoss bringt Licht und Luft ins Untergeschoss. © Sergio Grazia


Im Inneren zeigt sich der neue Gebäudeflügel offen und transparent. © Sergio Grazia
Terrassen und Höfe
Die Fenster des Erweiterungsbaus sind mit Weißbeton gerahmt, die Fensterrahmen bestehen aus Eichenholz. Große Schiebetüren öffnen den Wohnraum nach draußen. Der grüne Innenhof bietet die Möglichkeit zur Querlüftung des halb ins Gelände eingegrabenen Gartengeschosses.


Große Schiebetüren öffnen den Wohnraum nach draußen. © Sergio Grazia
Auf die obersten Geschosse von Alt- und Neubau verteilen sich vier Schlafzimmer, eine Dusche und ein Bad. Auch sie sind direkt über die Glasfuge miteinander verbunden. Während das historische Wohnhaus seinen introvertierten Charakter mit kleinen Fensteröffnungen beibehalten hat, sorgen im Neubau große Innen- und Außenfenster sowie der offene Treppenraum für vertikale und horizontale Durchblicke.
Architektur: Hemaa Architectes
Bauherr: privat
Standort: Rue Jean Mermoz, 92380 Garches (FR)
Generalunternehmen: ERC Nogalo




























