Komplexe Raumschachtelung
Wohnscheune bei Zürich von BE Architektur
Einfamilienhaus im Reppischtal bei Zürich, © Vito Stallone
Bei ihrem Wohnhaus im Reppischtal bei Zürich griffen Boris Egli und sein Büro Vorbilder aus der Landwirtschaft auf. Hinter der Fichtenholzfassade öffnet sich ein unerwartetes Raumkontinuum über drei Ebenen.


© Vito Stallone
Der Neubau steht in einem kleinen Weiler mit nur 15 Häusern. Entsprechend diskret und angepasst präsentiert es sich nach außen: Die Gebäudeform, Fassaden und viele Details zitieren die Scheunenarchitektur der Region. Das gilt nicht nur für die braun lasierte Fichtenholzschalung, die die Fensterrahmen verdeckt, sondern auch für das ortstypische Steildach mit Ziegeldeckung. Vor dem Öffnungsflügeln, aber auch vor der talseits gelegenen Veranda dienen große Holzschiebeläden als Sonnen- und Sichtschutz sowie als Verdunklung. Die Dachrinne bildet ein einfacher Stahlträger ohne Fallrohr – das Regenwasser fließt an seinem weit auskragenden Ende einfach hinab auf das Wiesengrundstück.
Raumprogramm
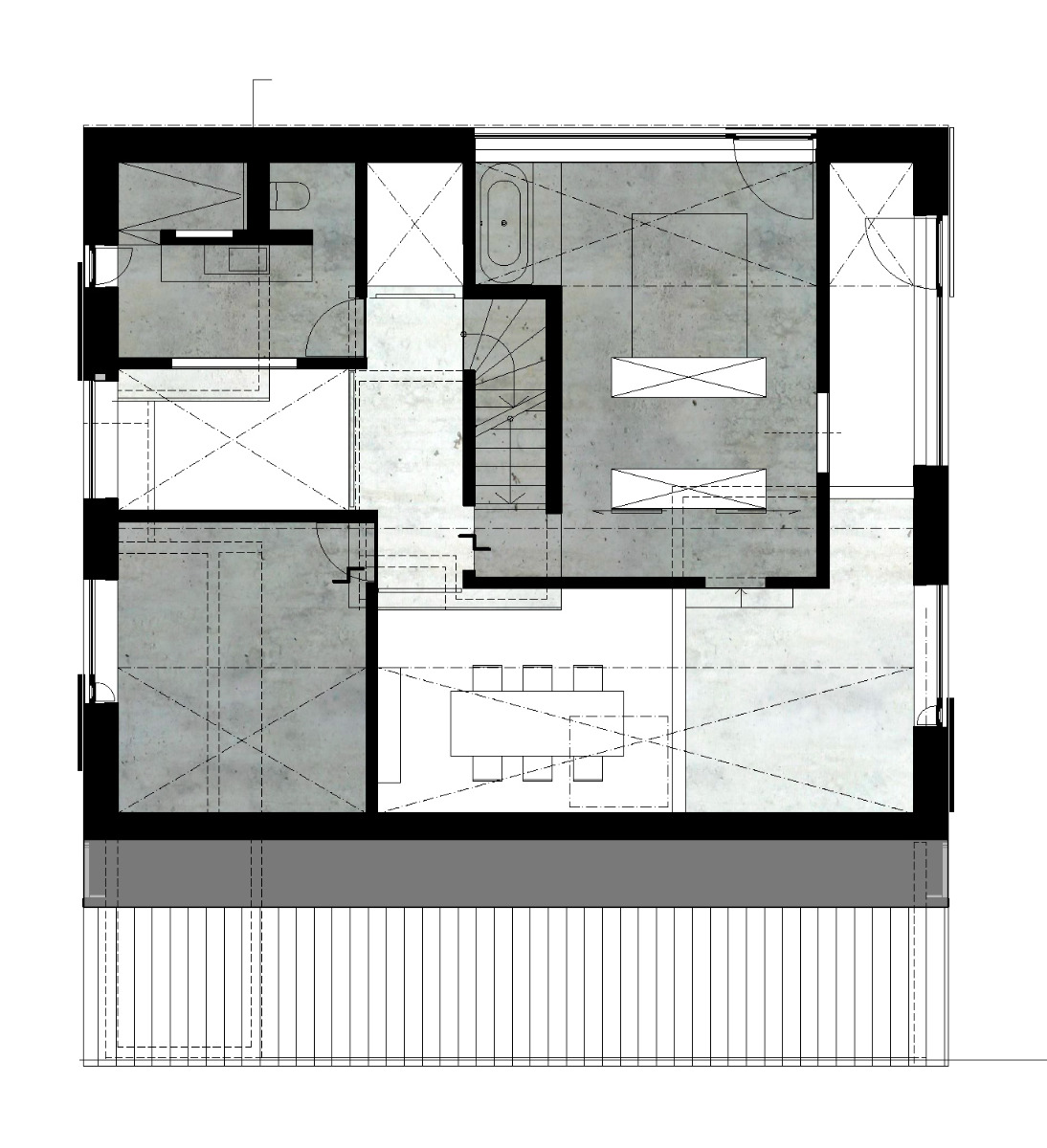
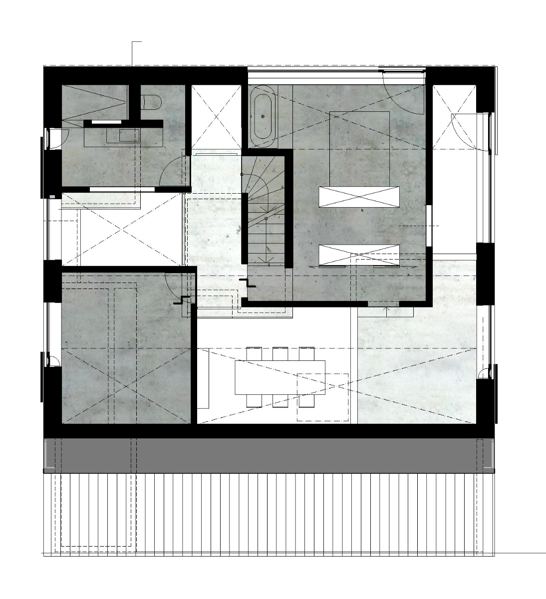
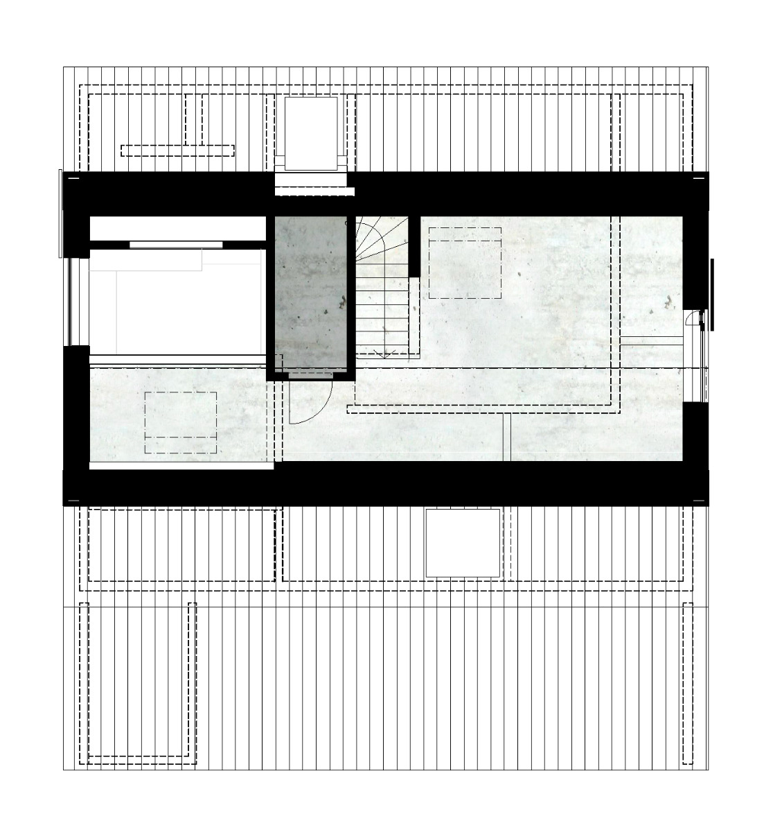
Angesichts des konventionellen Äußeren überrascht das Innenleben des Hauses – doch selbst dieses ist dem Typus „Scheune“ entlehnt: Innerhalb eines großen Raumkontinuums sind die Zimmer als geschlossene Kuben neben- und übereinander gestapelt. Der Luftraum dazwischen reicht vom Erdgeschoss bis unter das Steildach und erhält Tageslicht von allen Seiten – auch von oben durch das Dachfenster. Um größere Abgrabungen des Hanggrundstücks zu vermeiden, sind die Wohnebenen treppenartig parallel zum Hang gestaffelt.


Der Boden ist aus roh belassenen Betonbodenplatten und die Wände wurden mit einem speziellen Verputz gestaltet. © Vito Stallone
Putz, Holz und Sichtbeton
Der Materialdreiklang im Inneren unterstützt Raumaufteilung und Lichtregie gleichermaßen. Er besteht aus flächenbündigen Holzeinbauten, rohen Betonfußböden sowie einem hellgrauen Verputz Ton in Ton mit dem Beton. Nachdem handelsübliche Putzmischungen nicht das gewünschte Resultat brachten, entwickelten Architekt, Hersteller und Stuckateurbetrieb eine eigene Beschichtung aus Quarzsand, Kalk und Weißzement mit Einfärbung aus grauen mineralischen Pigmenten.


Offener, lichtdurchfluteter Wohnraum, © Vito Stallone


Holz und Beton im Einklang, © Vito Stallone
Diese wurde vom Gipser zweimal nass in nass aufgetragen und ähnlich einer Freskotechnik verarbeitet und geglättet. In die zweite Schicht arbeitete er von Hand unregelmäßig schwarze Pigmente ein, die der Putzoberfläche eine lebendige Struktur verleihen.
Architektur: BE Architektur, Boris Egli dipl. Arch. FH REG A SIA
Bauherr: privat
Standort: Reppischtal (CH)
Tragwerksplanung: Suisseplan Ingenieure
HLS-Planung: Elsner Klima
Elektroplanung: Eltop
Lichtplanung: Lichtblick Buchs
Bauphysik: Wichser Akustik & Bauphysik
































