In die Zange genommen
Wohnungsbau bei Barcelona von Near by Joaquin Anton
Wohnungsbau in Cerdanyola del Vallés, © Simon Garcia | arqfoto
Ähnlich aber doch nicht gleich sind die vier Fassaden des Wohnungsbaus in Cerdanyola del Vallés von Near by Joaquin Anton und Josep Esteve i Associats. Zwei davon umschließen einen Hof, der nicht nur private Freibereiche liefert, sondern auch noch Tageslicht in die Tiefgarage bringt.


Dunkel und geschlossen der Sockel, die Wohngeschosse darüber hell mit Balkon. © Simon Garcia | arqfoto
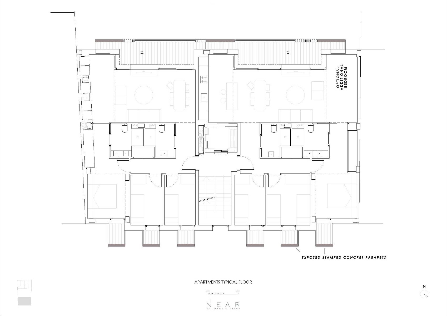
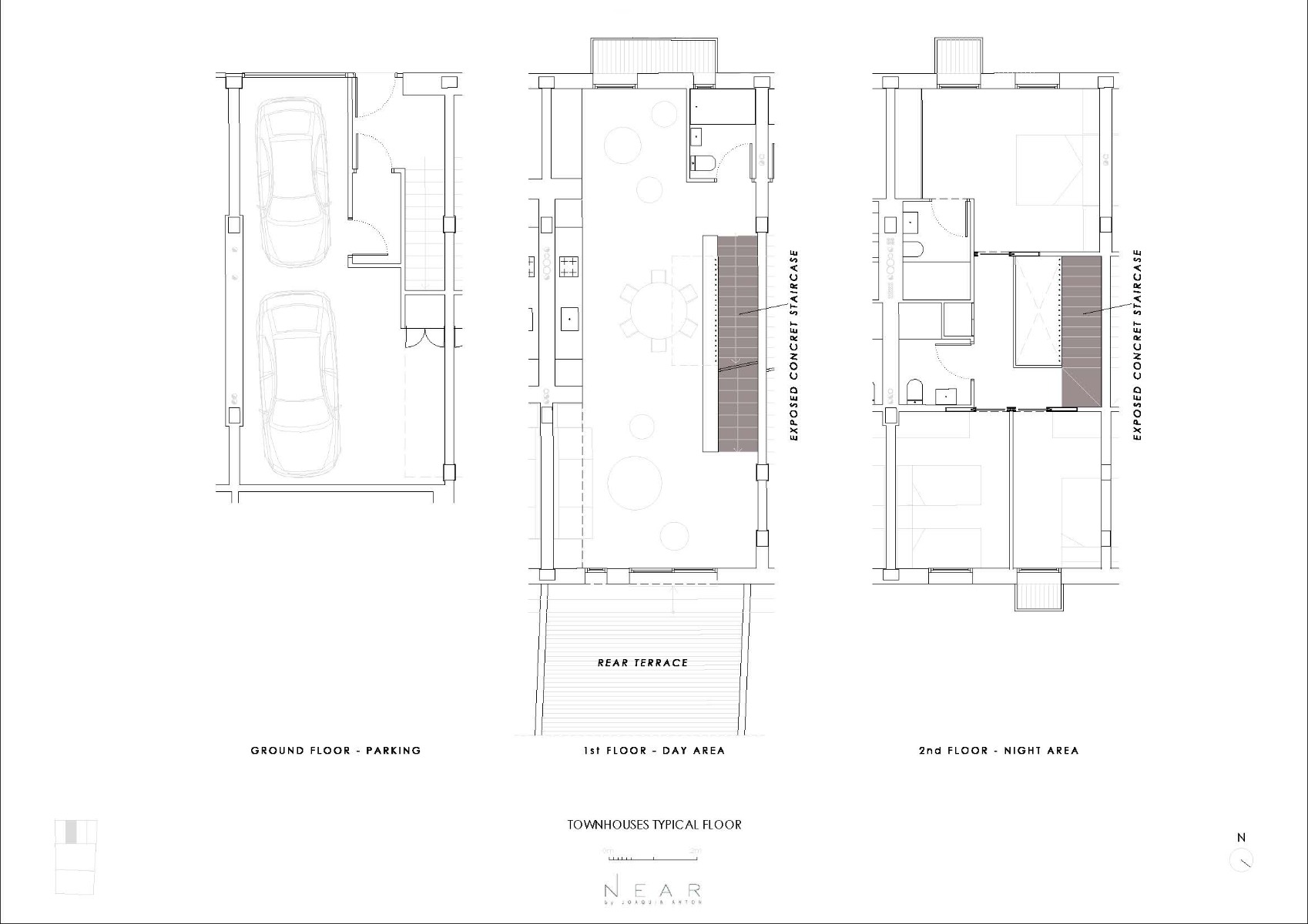
Drei und fünf Geschosse hoch sind die beiden Gebäudeteile, die den Hof umklammern. Nach Südwesten reihen sich vier Stadthäuser aneinander. Ihre Erdgeschosse sind für Garagen reserviert. Daneben befinden sich unauffällig in den anthrazitfarbenen Sockel gesetzte Eingangstüren, hinter denen eine einläufige Treppe in die Wohngeschosse führt.
Hof mit privaten Freibereichen
Weiße Mauern gliedern den Hof und bilden private Bereiche, die an Reihenhausgärten erinnern. Über die Mauern hinweg können die Bewohner einen Plausch mit den Nachbarn halten oder nach unten in die Tiefgarage blicken. Dort sind die Stellplätze für das gegenüberliegende Apartmenthaus untergebracht.


Die Wohngeschosse liegen über den Garagen auf Staßenniveau. © Simon Garcia | arqfoto
Treppe aus Sichtbeton im Innenraum
Filigrane Spannseile aus Edelstahl sind in einem scharfkantigen weißen Regal fixiert. Sie dienen als Absturzsicherung und räumliche Trennung zugleich. Außerdem gelangt so viel Tageslicht von oben in den offenen Wohnraum, der von der Straßen- zur Hofseite durchgesteckt ist.


Filigrane Spannseile aus Edelstahl sind in einem scharfkantigen weißen Regal fixiert. © Simon Garcia | arqfoto


Die Treppe aus Sichtbeton ist Erschließung und raumbildendes Element zugleich. © Simon Garcia | arqfoto


Die Wohnungen im Apartmenthaus öffnen sich mit großen Türen ins Freie. © Simon Garcia | arqfoto
Lichtdurchflutete Wohnungen
Neun Wohnungen unterschiedlicher Größe sind im Apartmenthaus untergebracht. Auch sie erhalten von der Hof- und der Straßenseite Tageslicht. So kann im Sommer quergelüftet werden und im Winter, bei tief stehender Sonne, ist es tagsüber schön hell.
Architektur: Joaquin Anton (NEAR) and Josep Esteve (Josep Esteve i Associats).
Bauherr: LOVHOMS
Standort: Carrer Anselm Clavé 10, Cerdanyola del Vallès - NOVA VISTA apartments, Passatge Codonyers 9, Cerdanyola del Vallès - CUATRE ENCANTS townhouses (ES)
Tragwerksplanung: Esteve & Natalio Arquitectes Associats SL
TGA-Planung: Carlo Argano Odriozola
Bauunternehmen: Voltes Connecta SLU
Projektsteuerung: Luis Cañizares Garcia – Taller 10 Arquitectura I GESTIO SLP














