Platz für Begegnungen
Wohnungsbau in New York von SO–IL
Über offene Betonstege gelangen Bewohner zu ihren Wohnungstüren. © Iwan Baan


Wohnhaus in Brooklyn, © Iwan Baan
Ein Wohngefühl fast wie im eigenen Haus und doch in Gemeinschaft mit anderen – das war das Ziel der Architekten SO–IL und des Startup-Projektentwicklers Tankhouse für den Neubau in der 450 Warren Street. Das auf einem Eckgrundstück gelegene Gebäude im früheren Industrieviertel Gowanus umfasst drei Gewerbeeinheiten im Erdgeschoss und 18 Eigentumswohnungen – darunter zwei Penthouses – in den vier oberen Etagen. Auch die Parkplätze sind im Erdgeschoss untergebracht, sodass eine teure Tiefgarage entbehrlich wurde.


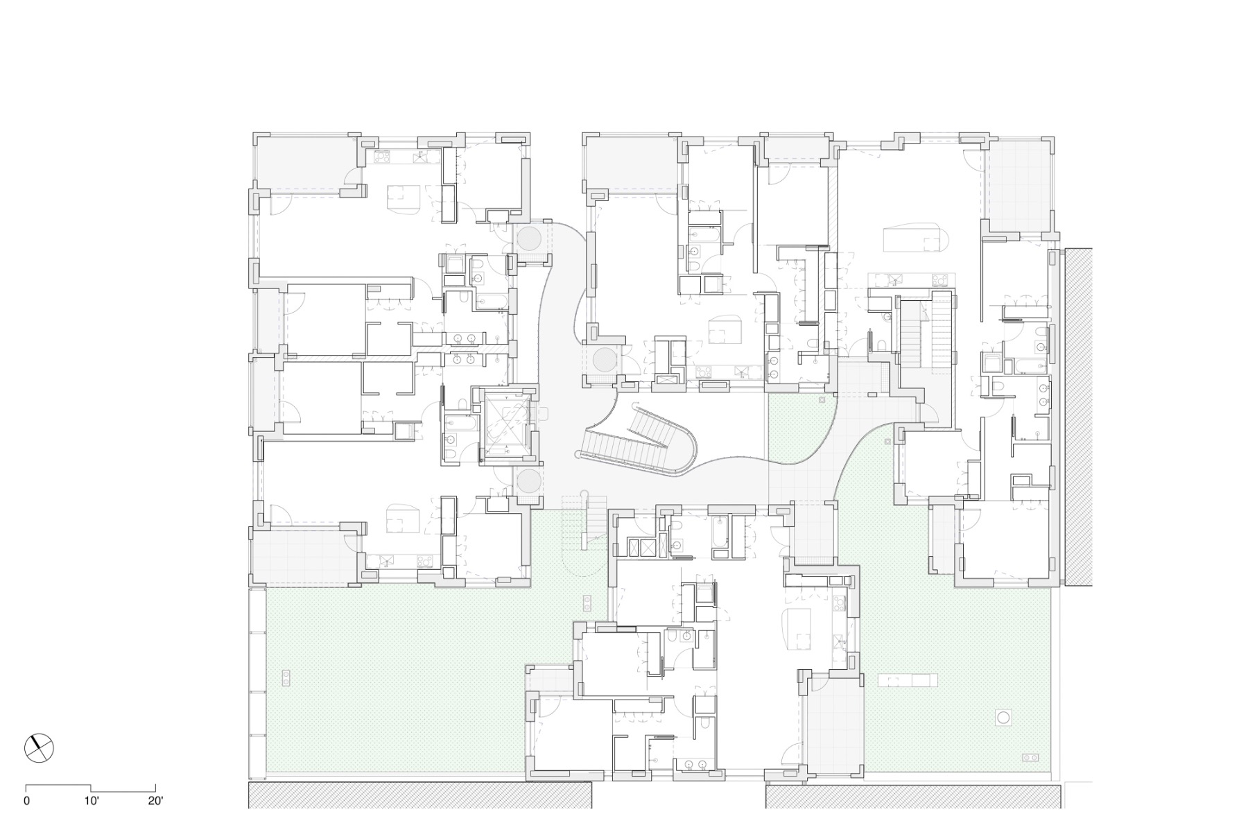
Erschließungshof mit mäandrierenden Laubengängen aus Sichtbeton, © Iwan Baan
Laubengänge aus Beton
Platz für Begegnungen schuf das Planungsteam auf allen Etagen, vor allem aber im ersten Obergeschoss: Dort sind auf den Dächern der Parkgarage und des Ladengeschosses zwei grüne Innenhöfe entstanden. Die Wohnungen verteilen sich auf drei getrennte Baukörper mit dazwischen liegendem Erschließungshof. An den mäandrierenden Laubengängen aus Sichtbeton dienen geschosshohe Seilnetze als Absturzsicherung. Auch einen Aufzug gibt es hier, vor allem aber sollen die offenen Treppen zum Durchwandern der Geschosse einladen.


© Iwan Baan
Verdrehtes Mauerwerk
Auch die Straßenansichten von 450 Warren kommen erfrischend vielgliedrig daher. Die zahlreichen Vor- und Rücksprünge, eingerückten Loggien und die Vormauerung aus leicht gegeneinander verdrehten Betonsteinen lassen trotz der relativ einheitlichen Fenstergrößen keinerlei Monotonie aufkommen.
Architektur: SO–IL, Kane AUD
Bauherr: Tankhouse
Standort: 450 Warren St, Brooklyn, NY 11217 (USA)
Tragwerksplanung: Silman
TGA-Planung: ABS
Fassadenplanung: Laufs Engineering Design
Landschaftsarchitektur: Brooklyn Grange, Gowanus Canal Conservancy




















