Nachhaltige Bauweise
Sozialwohnungsbau auf Mallorca
Sozialwohnungsbau auf Mallorca, © José Hevia
Bei ihrem Wohnblock im mallorquinischen Inca kombinieren die Architekten Alventosa Morell und Joan Fortuny natürliche Materialien und regionales Handwerk mit moderner Energietechnik. Die 54 Wohnungen stehen am Rand der 30 000-Einwohner-Stadt im Hinterland der Baleareninsel, fernab vom Touristentrubel an der Küste.


54 Wohnungen umfasst das Gebäude. © José Hevia
Bauherr ist das öffentliche balearische Wohnungsbauinstitut Ibavi, das schon in der jüngeren Vergangenheit mit ambitionierter Architektur auf sich aufmerksam gemacht hat. Südlich des Areals führt die Bahnlinie nach Palma vorbei, im Norden und Osten grenzt der Neubaukomplex an die bestehende Wohnbebauung.
Sozialer Wohnungsbau mit Bergpanorama
Mit zwei im Winkel zueinander positionierten, dreigeschossigen Gebäuderiegeln komplettierten die Architekten die Bestandsgebäude zu einem geschlossenen Wohnblock. Zwischen beiden erschließt eine zentrale Nord-Süd-Achse die Hauseingänge. Die Gestaltung der Außenflächen fällt mit großen, mit Recyclinggranulat gekiesten Flächen eher in die Kategorie pflegeleicht. Einige Bäume sollen hier, wenn sie größer werden, Schatten spenden.


Die Außenflächen sind mit großen, mit Recyclinggranulat gekiesten Flächen versehen. © José Hevia
Raumorganisation
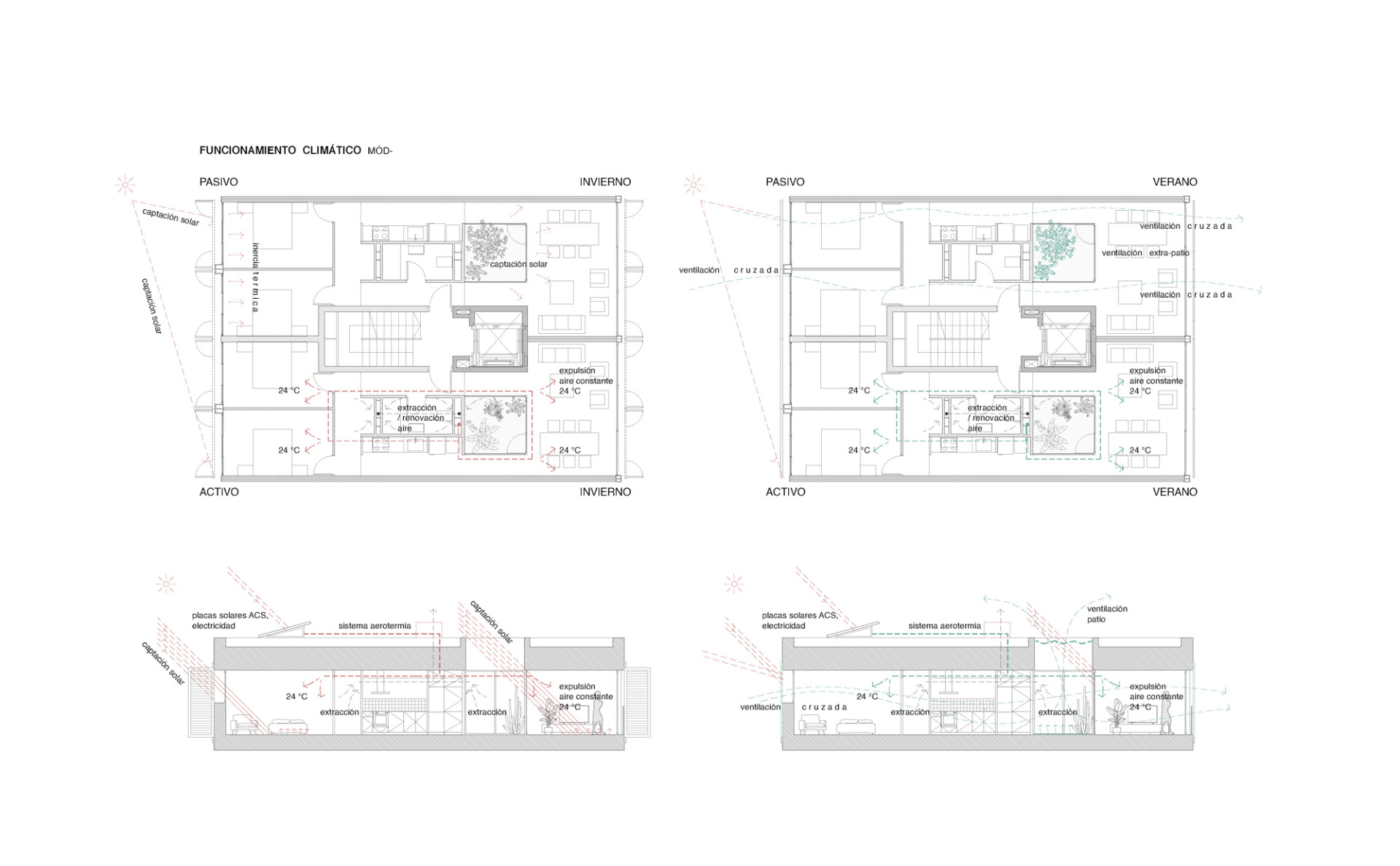
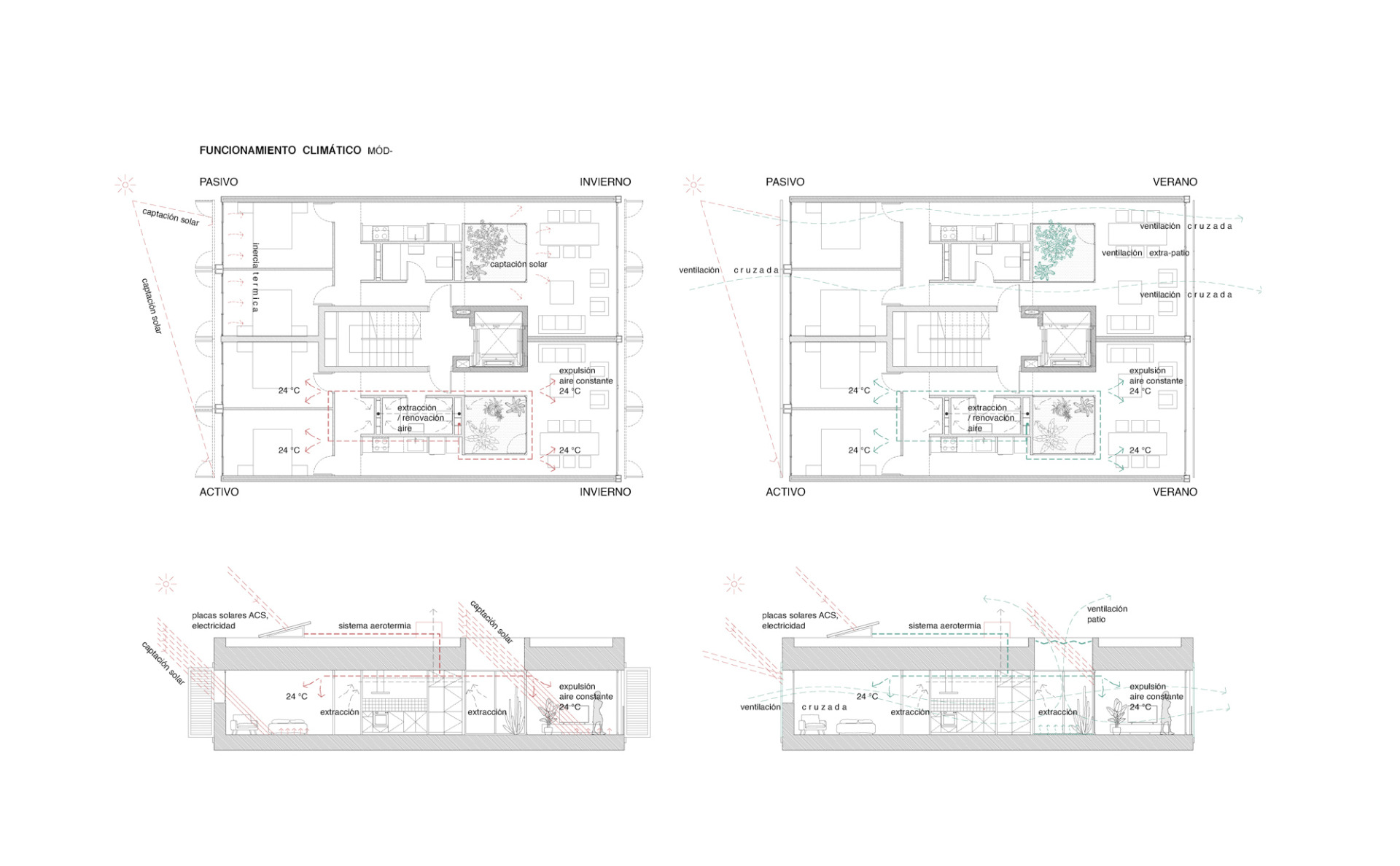
Die Wohnungen sind als Zweispänner um einen zentralen Treppenhaus- und Aufzugskern herum organisiert. Das Zentrum jeder Wohnung bildet ein Sanitärkern mit Küchenzeile und Bad. Auf der einen Seite schließt sich daran der Wohnraum an, auf der anderen zwei Schlafzimmer. Deren Ausrichtung variiert je nach Etage: Im Erdgeschoss liegen alle Wohnräume am Innenhof. Im ersten Obergeschoss sind sie bei dem nordwestlichen Gebäudeblock zur Straße – und damit zum Bergpanorama der Sierra de Tramuntana – hin orientiert. Im zweiten Obergeschoss liegen alle Wohnräume an der Straße und die Schlafzimmer am Innenhof. Die Wohnungen hier haben neben Außenbalkonen zusätzliche, innen liegende Patios.


© José Hevia


© José Hevia
Flexible Skelettbauweise
Das Tragwerk der Häuser basiert auf weit spannenden, 35 cm dicken Betondecken, die auf hellgrün lackierten Stahlstützen aufliegen. Die Außenwände bestehen aus zweischaligem Mauerwerk mit Kerndämmung, zusätzlicher Außendämmung aus Spritzkork und einem cremefarbenen Kalkputz. Faltläden aus Lärchenholz auf einer thermisch getrennten Aluminium-Unterkonstruktion spenden im Sommer Schatten.


Faltläden aus Lärchenholz spenden im Sommer Schatten. © José Hevia
Kostengünstig Bauen
Die Sockelverkleidung aus Keramik an den Straßenseiten setzt sich im Innenhof in Form unverputzter Gartenmauern aus Hochlochsteinen fort. Gartenzäune aus einfachen Baustahlmatten unterstreichen, dass hier kostengünstig gebaut werden musste. Die hellgrünen Fensterrahmen und Balkonbrüstungen – Ton in Ton mit den Fassadenstützen – bilden einen frischen Kontrast zu den Naturfarbtönen ringsum. Auch im Inneren setzten die Architekten auf Keramikfliesen, die mit Biomasse gebrannt wurden. Die Wohnungstrennwände aus Ziegeln sind lediglich gestrichen, die Raumdecken mit einem perlitehaltigen Putz beschichtet. Lediglich im Bad gibt es eine abgehängte Decke für die Installationsleitungen.


© José Hevia


© José Hevia
Zusätzlich zur normalen Fensterlüftung verfügen die Häuser über zentrale Lüftungsgeräte mit Wärmerückgewinnung, die ganzjährig 24 Grad warme oder kühle Frischluft in die Wohnungen leiten. Diese sind auf den Flachdächern positioniert; die vertikalen Lüftungsleitungen verlaufen in den zwei Installationsschächten beidseitig der Bäder.
Architektur: Alventosa Morell Arquitectes, Joan Josep Fortuny Giró
Bauherr: IBAVI
Standort: C/Canonge Sebastià Garcías Palou nº 54, Inca (ES)































