Wolkenkratzer in Plissee: BIG baut Shenzen Energy Mansion
Foto: Chao Zhang
Das Grundstück, auf dem der staatliche Energiekonzern in Shenzen seine Geschäftsstelle bauen ließ, verfügt über eine klare Ost-West-Orientierung. Die starke Mittagssonne trifft also auf die schmale Südseite. Es liegt zudem am Eingang zum neuen gesellschaftlichen Zentrum der Stadt, das eine beeindruckende Skyline hervorgebracht hat. Trotz der dichten Bebauung schlängeln sich üppige Grünflächen durch die Türme und Straßen.
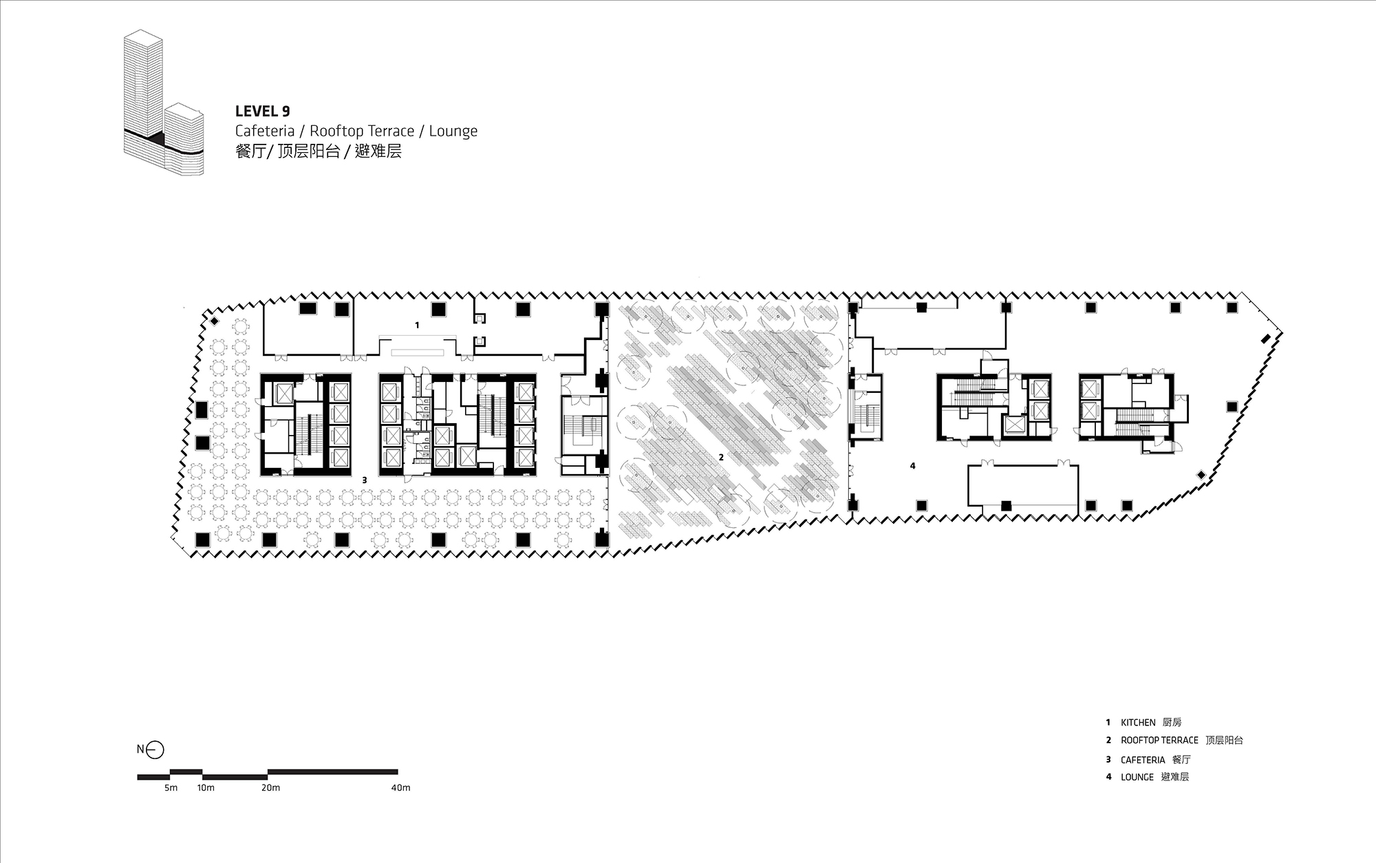
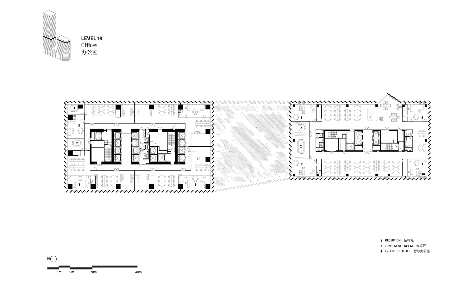
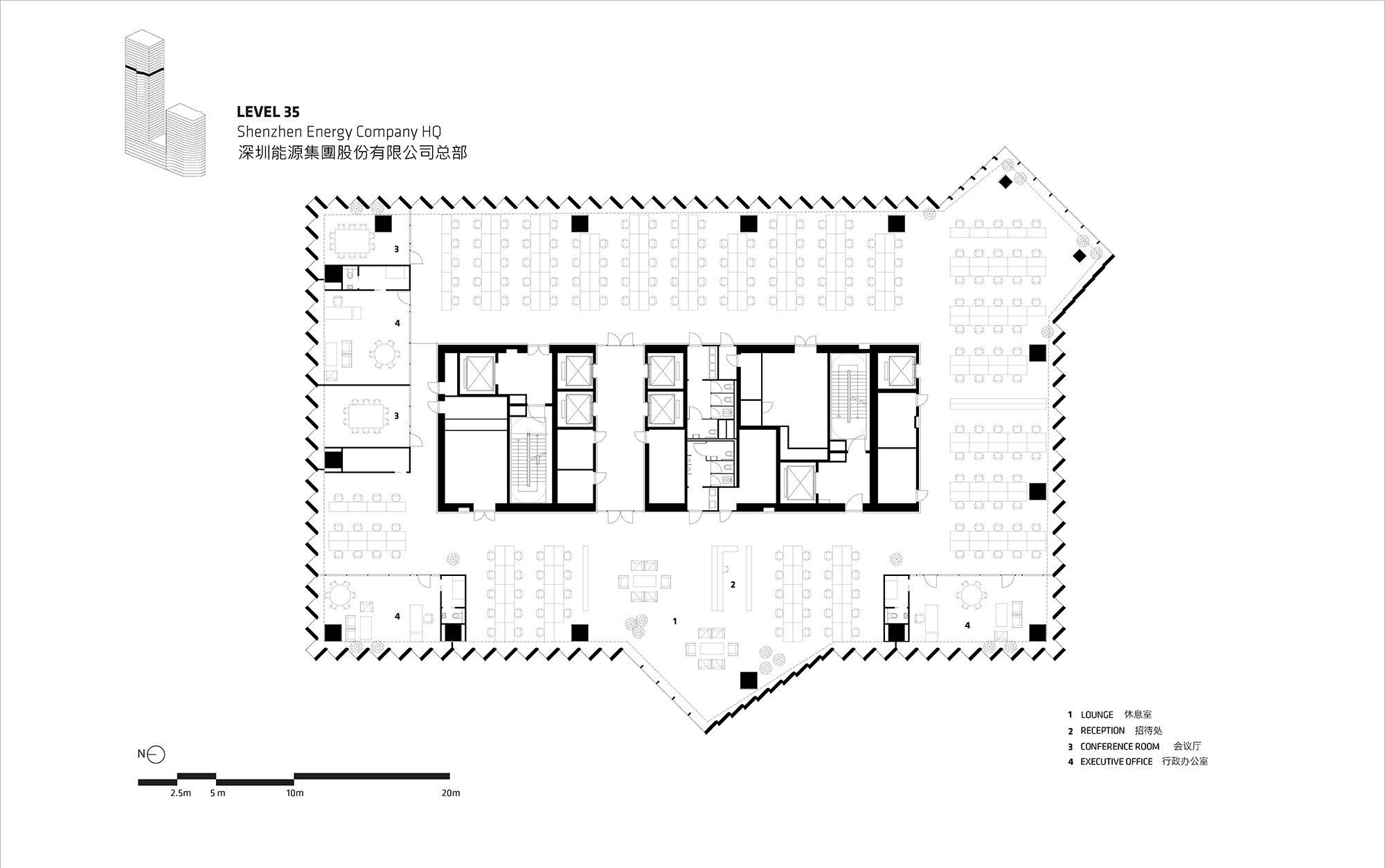
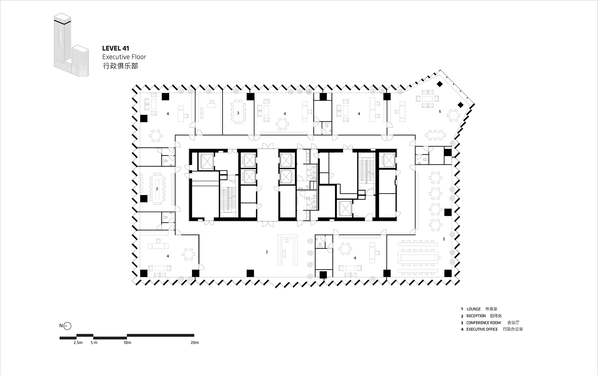
Die Architekten unterteilten das Bauvolumen in zwei Türme. Deren Höhe von 120 sowie 220 Metern Höhe orientiert sich am Bebauungsplan der Stadt und vermittelt zwischen Wolkenkratzern auf der einen und niedrigeren Wohntürmen auf der anderen Seite. Verbunden sind die Türme durch ein 34 Meter hohes Podest, welches im Erdgeschoss für Besucher der Geschäfte geöffnet ist und außerdem ein Kongresszentrum, die Kantine sowie Ausstellungsräume beherbergt. Die konzerneigenen Büros liegen allesamt in den oberen Geschossen, um vom Ausblick über die Stadt zu profitieren.
Um die nördlich orientierte Fläche des Gebäudes zu vergrößern und so den direkten Sonneneinfall zu verringern, ist die Fassade in feine Falten gelegt. Die nach Norden ausgerichteten Flächen sind verglast und streuen ein diffuses Licht im Innenraum, während die restlichen Flächen mit opaken Paneelen belegt sind. So wurde der Energiebedarf für die Klimatisierung ganz ohne beweglichen Sonnenschutz oder komplexe Technologie erheblich reduziert.
Die feinen Falten der Fassade erinnern an einen plissierten Stoff, der das Gebäude einhüllt. Dieser Eindruck wird verstärkt, durch die fließenden Schwünge, welche die geraden Konturen an einigen Stellen auflösen. Überall wo ein solcher Schwung eine Ausnahme im Grundriss hervorbringt, sind Räume mit besonderer Nutzung untergebracht wie Clubzimmer für den Vorstand, Besprechungszimmer oder Gemeinschaftseinrichtungen für die Angestellten.
Weitere Informationen:
Verantwortliche Partner: Bjarke Ingels, Andreas Klok Pedersen
Projektmanager: Martin Voelkle
Projektleiter: Song He, Andre Schmidt
Team: Alessio Zenaro, Alina Tamosiunaite, Alysen Hiller, Ana Merino, Andreas Geisler Johansen, Annette Jensen, Armor Rivas, Balaj IIulian, Brian Yang, Baptiste Blot, Buster Christiansen, Cecilia Ho, Christian Alvarez, Christin Svensson, Claudia Hertrich, Claudio Moretti, Cory Mattheis, Dave Brown, Dennis Rasmussen, Doug Stechschulte, Eskild Nordbud, Felicia Guldberg, Fred Zhou, Gaetan Brunet, Gül Ertekin, Henrik Kania, Iris Van der Heide, James Schrader, Jan Magasanik, Jan Borgstrøm, Jeppe Ecklon, Jelena Vucic, João Albuquerque, Jonas Mønster, Karsten Hansen, Malte Kloe, Mikkel Marcker Stubgaard, Michael Andersen, Michal Kristof, Min Ter Lim, Oana Simionescu, Nicklas A. Rasch, Philip Sima, Rasmus Pedersen, Rune Hansen, Rui Huang, Sofia Gaspar, Stanley Lung, Sun Ming Lee, Takuya Hosokai, Todd Bennett, Xi Chen, Xing Xiong, Xiao Lu, Xu Li, Yijie Dan, Zoltan Kalaszi
Projektleiter, Konzept: Cat Huang
Team, Konzept: Alex Cozma, Kuba Snopek, Fan Zhang, Flavien Menu































