Skyscrapers in pleats: Shenzhen Energy Mansion by BIG
Foto: Chao Zhang
The plot on which the state-owned energy company in Shenzhen has erected its office building is clearly aligned in an east-west direction, meaning that only the narrow southern side is exposed to the glare of the midday sun. The skyscrapers are also located at the gateway to the city's new social centre, where an impressive skyline has come about. Despite the area's densely-packed buildings, luxuriant vegetation snakes its way between the tower blocks and streets.
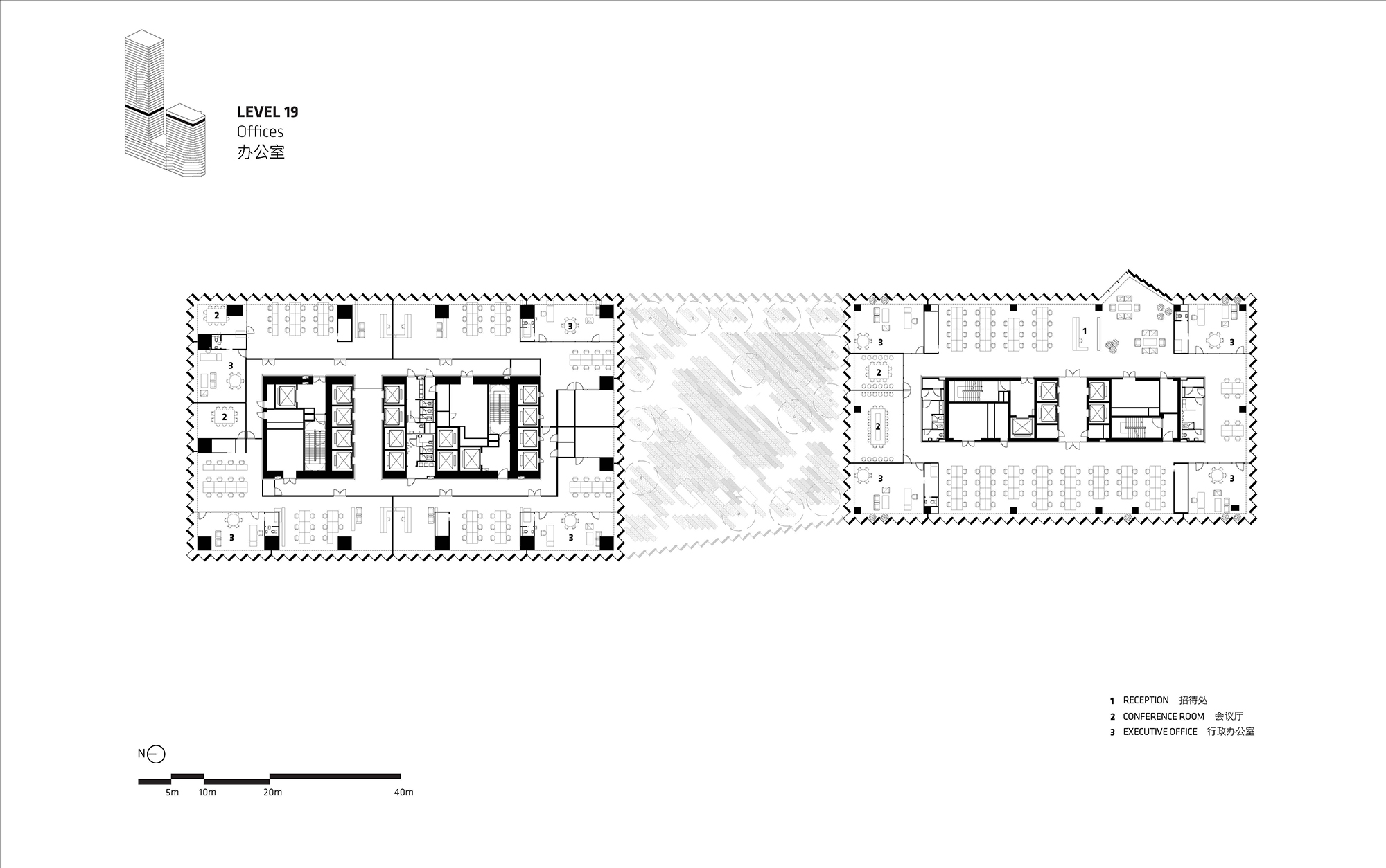
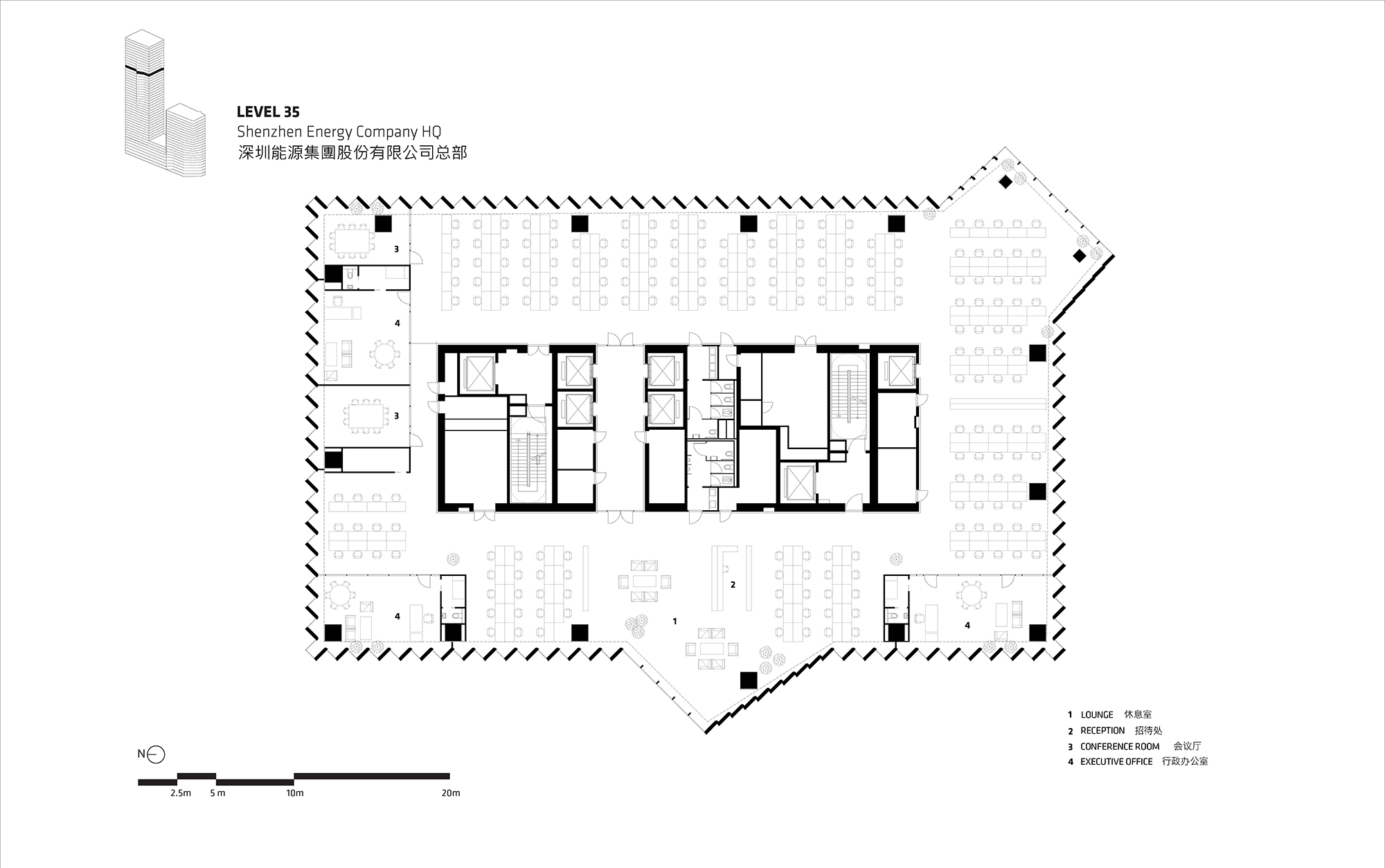
The architects divided the built volume into two towers 120 and 200 metres high respectively. The volumes are oriented to the city's urban masterplan and mediate between the skyscrapers to the one side and lower residential tower blocks on the other. At their base the skyscrapers are joined by a 34-metre high podium, which at ground level can be entered by visitors to commercial spaces, and which also houses a conference centre, a canteen and exhibition rooms. The company's own offices are all located on the higher floors in order to benefit from the views out over the city.
In order to enlarge the northward-facing surface of the buildings and reduce the incidence of direct sunlight, the respective facades are laid in fine folds. The outer walls aligned to the north are glazed and admit diffuse light into the interior, while the rest of the surfaces are covered in opaque panels. This reduces the energy consumption required for air conditioning without any need for movable shading devices or complex technology.
The fine folds of the facades give the buildings the appearance of being sheathed in pleated cloth, with the occasional twist and ripple in the contours reinforcing this impression still further. Everywhere where the floor plan has been affected by such deformations, the resulting spaces have been used to accommodate particular uses, such as a club room for the board of directors, meeting rooms and staff facilities.
Further information:
Responsible partner: Bjarke Ingels, Andreas Klok Pedersen
Project manager: Martin Voelkle
Project leader: Song He, Andre Schmidt
Team: Alessio Zenaro, Alina Tamosiunaite, Alysen Hiller, Ana Merino, Andreas Geisler Johansen, Annette Jensen, Armor Rivas, Balaj IIulian, Brian Yang, Baptiste Blot, Buster Christiansen, Cecilia Ho, Christian Alvarez, Christin Svensson, Claudia Hertrich, Claudio Moretti, Cory Mattheis, Dave Brown, Dennis Rasmussen, Doug Stechschulte, Eskild Nordbud, Felicia Guldberg, Fred Zhou, Gaetan Brunet, Gül Ertekin, Henrik Kania, Iris Van der Heide, James Schrader, Jan Magasanik, Jan Borgstrøm, Jeppe Ecklon, Jelena Vucic, João Albuquerque, Jonas Mønster, Karsten Hansen, Malte Kloe, Mikkel Marcker Stubgaard, Michael Andersen, Michal Kristof, Min Ter Lim, Oana Simionescu, Nicklas A. Rasch, Philip Sima, Rasmus Pedersen, Rune Hansen, Rui Huang, Sofia Gaspar, Stanley Lung, Sun Ming Lee, Takuya Hosokai, Todd Bennett, Xi Chen, Xing Xiong, Xiao Lu, Xu Li, Yijie Dan, Zoltan Kalaszi
Project leader, concept: Cat Huang
Team, concept: Alex Cozma, Kuba Snopek, Fan Zhang, Flavien Menu































