// Check if the article Layout ?>
Zeitalter des Sharing: Lernzentrum Cortex Park in Odense
Foto: Adam Mørk
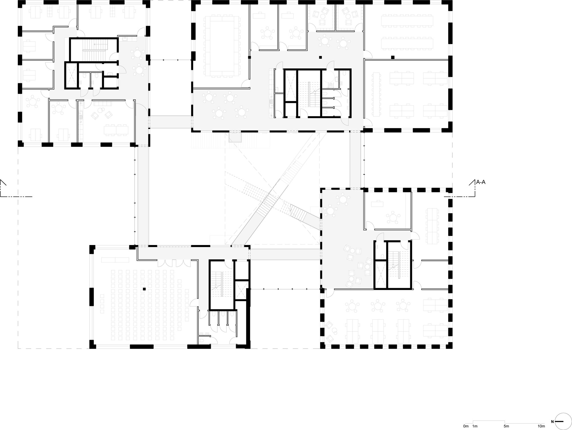
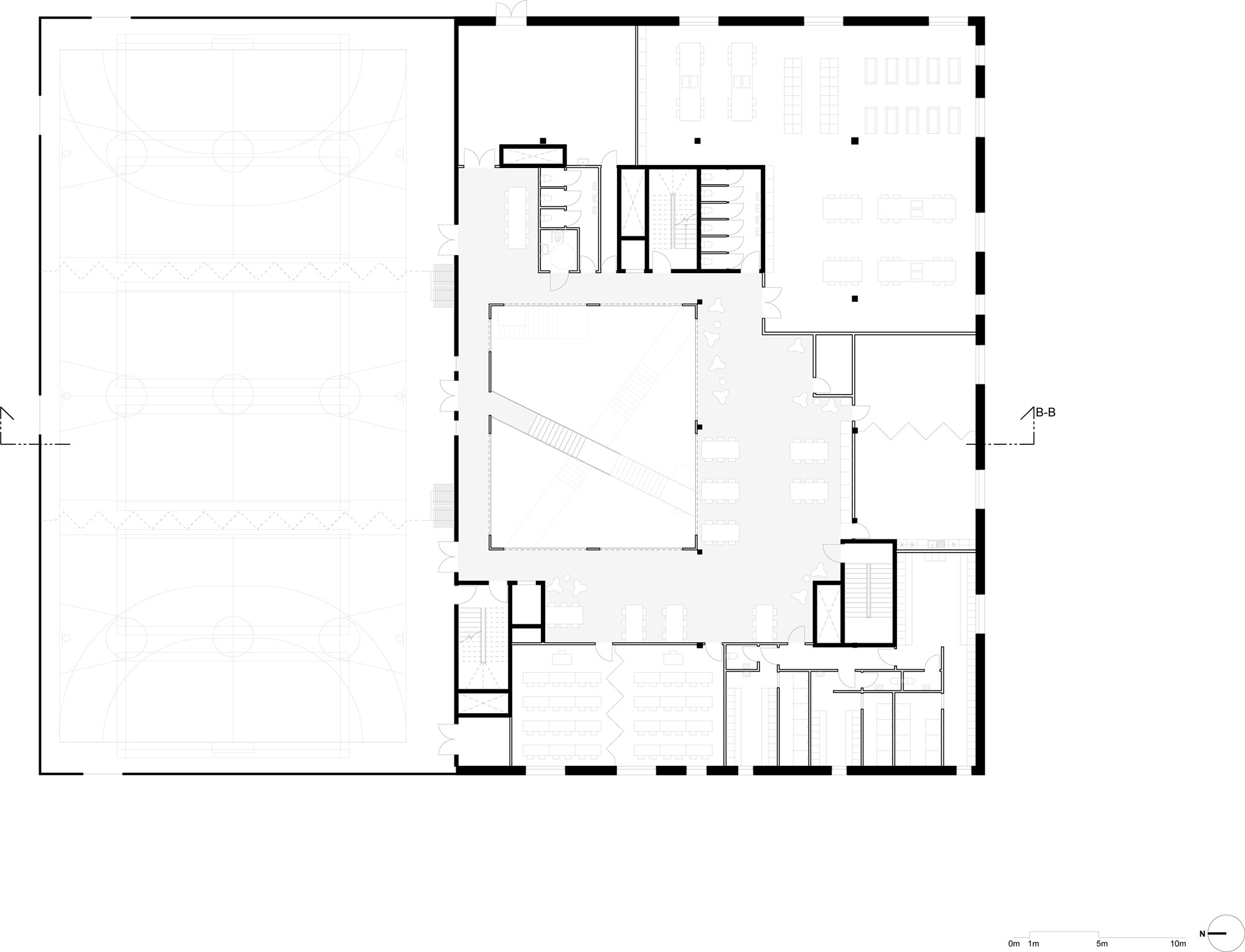
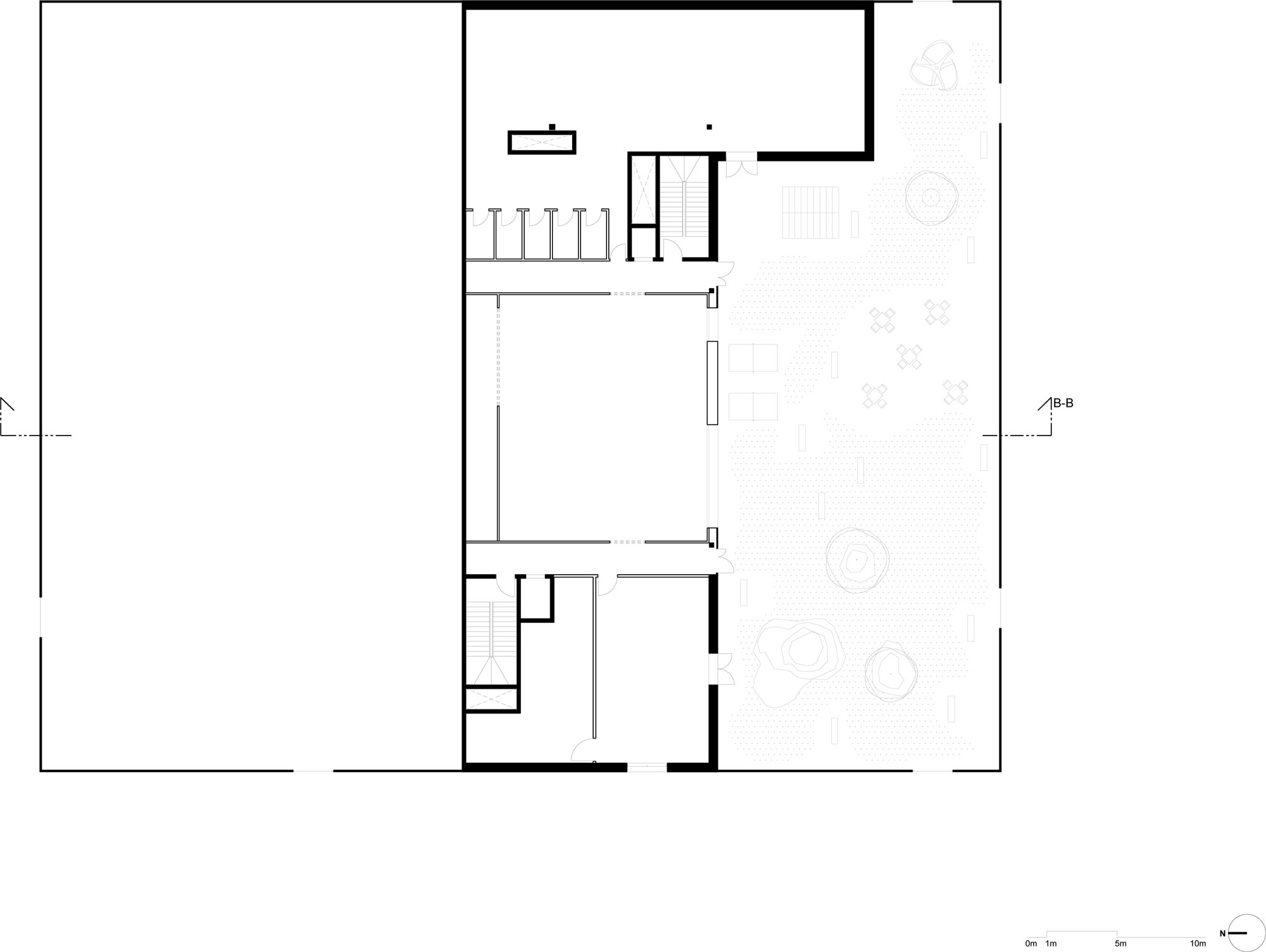
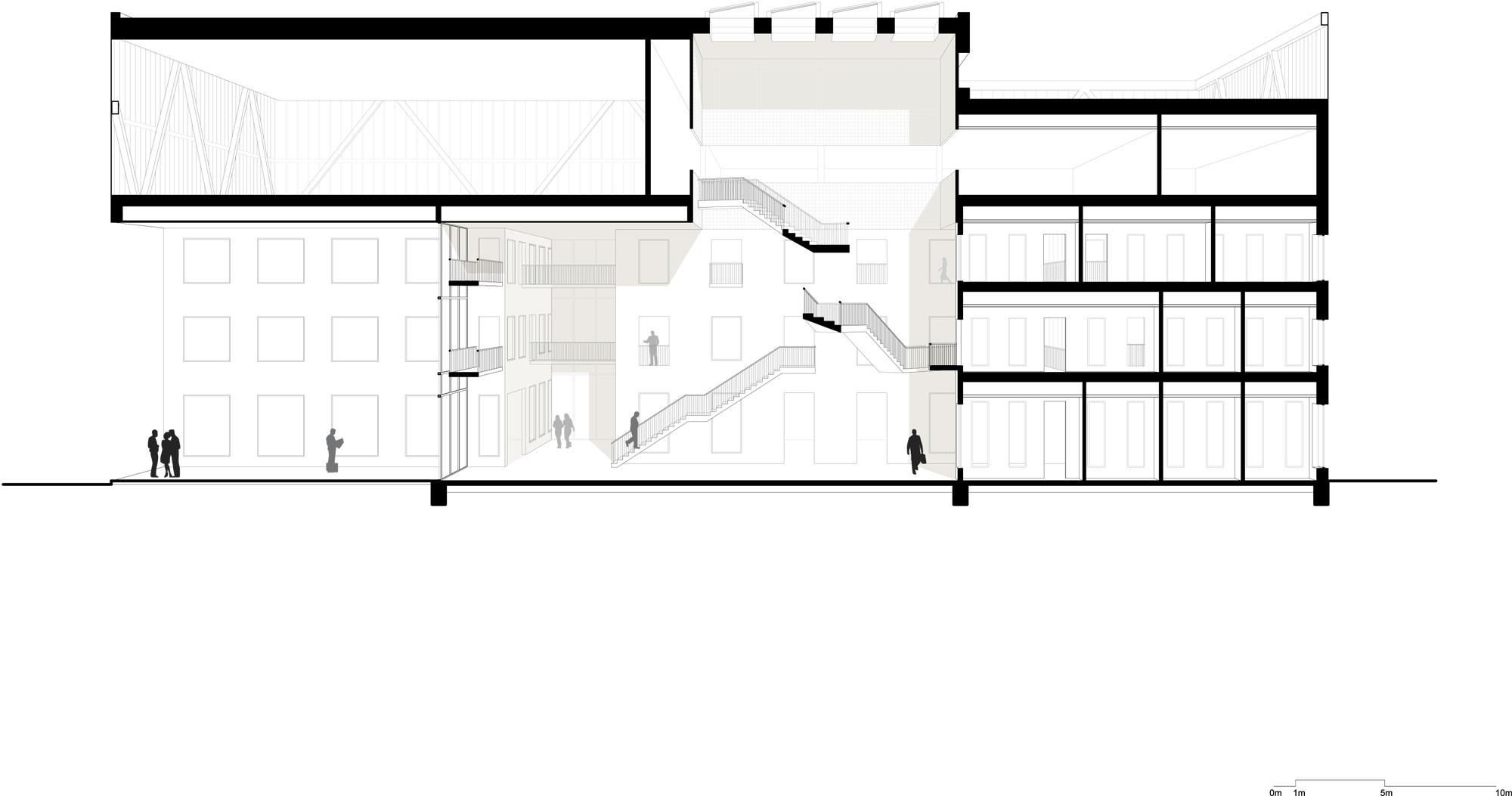
Der Aufbau des Forschungs- und Lernzentrums in Odense ist außergewöhnlich. Vier dreigeschossige Kuben stehen verteilt auf dem rechteckigen Grundstück. Sie unterscheiden sich jeweils in Größe und Rhythmus der Öffnungen sowie in der Musterung der Fassade. Zwischen ihnen entsteht ein urban anmutender Platz, der durch Gemeinschaftseinrichtungen und Stadtmobiliar im Erdgeschoss belebt wird.
So weit so klassisch. Doch auf den vier Gebäuden liegt eine zweigeschossige Scheibe auf, das Dach des Komplexes. Sie nimmt die Sporträume auf, die sich die Studenten mit den dort forschenden Wissenschaftlern und Angestellten genauso teilen, wie das eben beschriebene Atrium. Auch die anderen Gemeinschaftsräume und eine großzügige Dachterrasse finden in diesem oberen Gebäudeteil Platz. Wie in einem Hogwarts der Zukunft kreuzen sich im Atrium die Treppen, die beinahe unsichtbar an der Decke aufgehängt sind. Ein großes Oberlicht ist in die Deckenscheibe eingeschnitten und versorgt den Zwischenraum so mit reichlich Tageslicht.
Mit ihrem Entwurf möchten die Architekten einen Ort schaffen, an dem Geist und Körper angesprochen werden und Teilen erlebbar wird. Deswegen ist der Cortex Park in ihren Augen ein Hybrid aus Wissen und Bewegung, Forschung und Sport. Der fließende Übergang vom Außen- zum Innenraum sorgt außerdem für eine starke Verwebung mit der Umgebung.
Um die Fassaden der vier Kuben in unterschiedlichen Mustern zu gestalten, wurde beim Guss der Betonfertigteile eine spezielle Folie in die Schalung eingebracht. Darauf war das gewünschte Muster mit Abbindeverzögerer aufgedruckt. So erscheinen nun jeweils vertikale oder horizontale Streifen, einmal dichtere, einmal weitere Punktmuster in glatten und rauen Flächen auf den Betonfassaden. Bei Einbruch der Dunkelheit wird das Gebäude selbst zum Leuchtkörper. In den oberen beiden Geschossen liegen die Fachwerkträger aus Stahl hinter einer transluzenten Fassade und kommen so bei Nacht erst richtig zur Geltung. Das stets aktive Gebäude steht für eine aktive Lernumgebung, rund um die Uhr.
Weitere Informationen:
Bruttogrundfläche: 7500 m²
Projektbeteiligte: Rambøll Engineers, Schul Landskab
Fotos: Adam Mørk
Projektbeteiligte: Rambøll Engineers, Schul Landskab
Fotos: Adam Mørk




























