// Check if the article Layout ?>
The Age of Sharing: Cortex Park Learning Centre in Odense
Foto: Adam Mørk
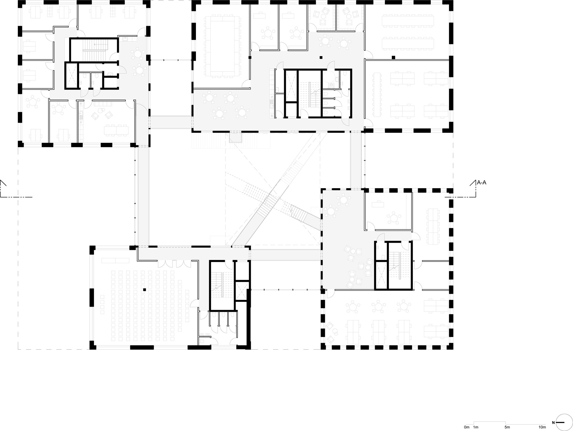
The structure of this research and learning centre in Odense is unconventional. Four three-storey cubes have been positioned on a rectangular lot. They differ in their size, the rhythm of their opening and the patterns on their respective façades. The space in between creates a plaza with an urban feel; this comes alive with the communal facilities and street furniture at ground level.
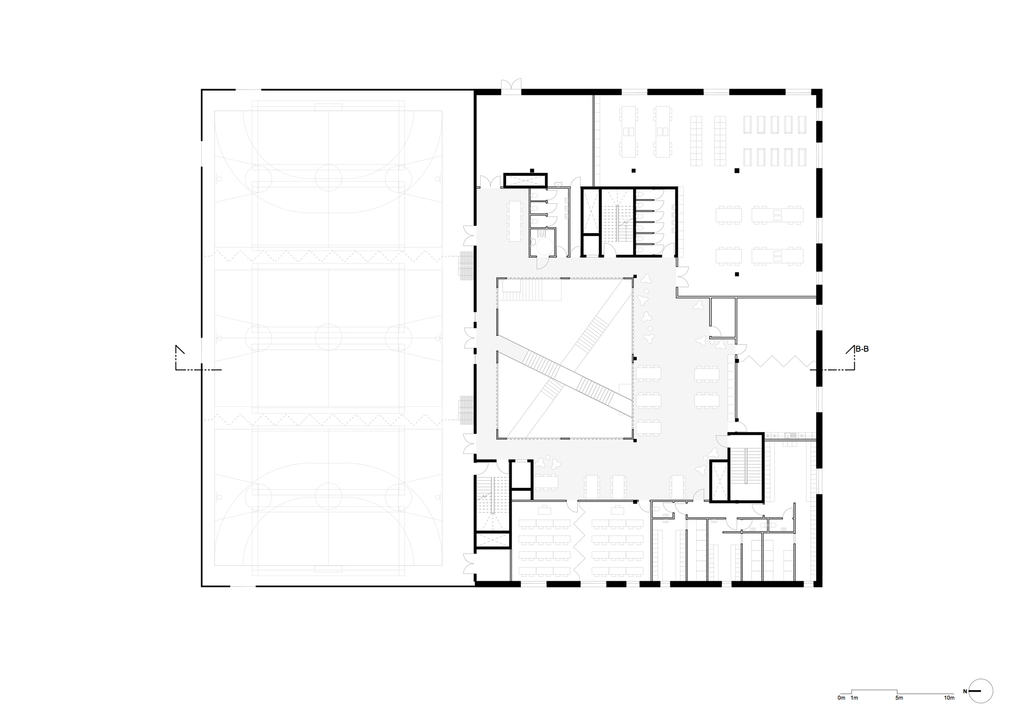
So far, so classic. However, a two-storey piece lies on top of the four buildings: the roof of the complex. This houses the sports areas, which are shared by students with the research scientists and employees. It also includes the abovementioned atrium. The other shared spaces and a generous terrace are located in this upper portion as well. The atrium is where the stairways cross; these have been hung practically invisibly from the ceiling. The effect is that of a Hogwarts of the future. A large skylight has been cut into the ceiling to provide extensive daylight for the interstitial space.
With this design, the architects wanted to create a place that speaks to both the mind and the body, a place where sharing can be experienced. In their eyes, Cortex Park is a hybrid of knowledge and movement, research and sports. Moreover, the fluid transition from the exterior to the interior interweaves the structure with its surroundings.
In order to form the different textures of the façades, a special foil was placed inside the moulds before the concrete was poured. Subsequently, the desired pattern was pressed into place with setting retardants. Now, vertical or horizontal stripes appear on the concrete façades, as do dense or loose polka-dot patterns on either smooth or rough surfaces. At dusk, the building itself becomes an illuminating body. In the two upper levels, the truss girders have been placed behind a translucent façade; they show their true face only at night. This constantly active building represents an active learning environment around the clock.
So far, so classic. However, a two-storey piece lies on top of the four buildings: the roof of the complex. This houses the sports areas, which are shared by students with the research scientists and employees. It also includes the abovementioned atrium. The other shared spaces and a generous terrace are located in this upper portion as well. The atrium is where the stairways cross; these have been hung practically invisibly from the ceiling. The effect is that of a Hogwarts of the future. A large skylight has been cut into the ceiling to provide extensive daylight for the interstitial space.
With this design, the architects wanted to create a place that speaks to both the mind and the body, a place where sharing can be experienced. In their eyes, Cortex Park is a hybrid of knowledge and movement, research and sports. Moreover, the fluid transition from the exterior to the interior interweaves the structure with its surroundings.
In order to form the different textures of the façades, a special foil was placed inside the moulds before the concrete was poured. Subsequently, the desired pattern was pressed into place with setting retardants. Now, vertical or horizontal stripes appear on the concrete façades, as do dense or loose polka-dot patterns on either smooth or rough surfaces. At dusk, the building itself becomes an illuminating body. In the two upper levels, the truss girders have been placed behind a translucent façade; they show their true face only at night. This constantly active building represents an active learning environment around the clock.
Further information:
Gross floor area: 7500 m²
Team: Rambøll Engineers, Schul Landskab
Photos: Adam Mørk
Team: Rambøll Engineers, Schul Landskab
Photos: Adam Mørk




























