// Check if the article Layout ?>
Zu neuem Leben erweckt: Revitalisierung von drei Pumpwerken
Foto: Jakub Skokan, Martin Tůma – BoysPlayNice
»The Mill« befindet sich am nördlichen Rande eines großen, brachliegenden Industrieareals. Das Gelände, das sich bis in die 90er-Jahre der Produktion von Betongütern widmete, verfiel nach seiner Privatisierung und dem stückweisen Verkauf immer weiter. GutGut Architekten hauchen den alten Mauern neues Leben ein. Sie erhalten die konstruktiven Elemente und somit die Grundform des Bestands. Durch gezieltes Aufbrechen des massiven Blocks an diversen Stellen gelangt Lebendigkeit, Luft und Licht ins Innere des neuen Multifunktionsbaus. Die Ansichten sind gespickt mit Öffnungen in verschiedenen Formen und Anordnungen und verleihen den Fassaden, gemeinsam mit schlicht weißen Wänden, trotzdem ein ruhiges Gesamtbild.
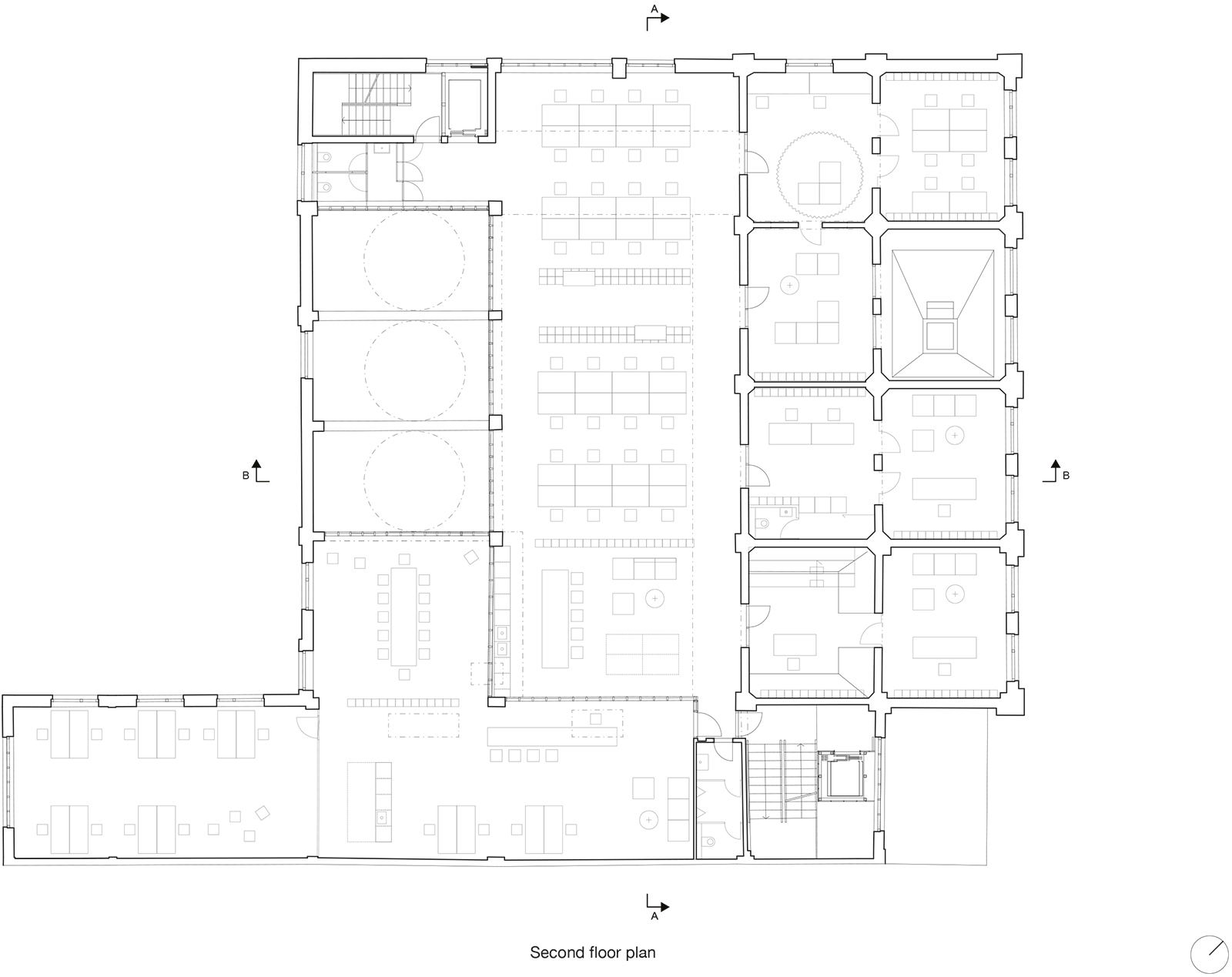
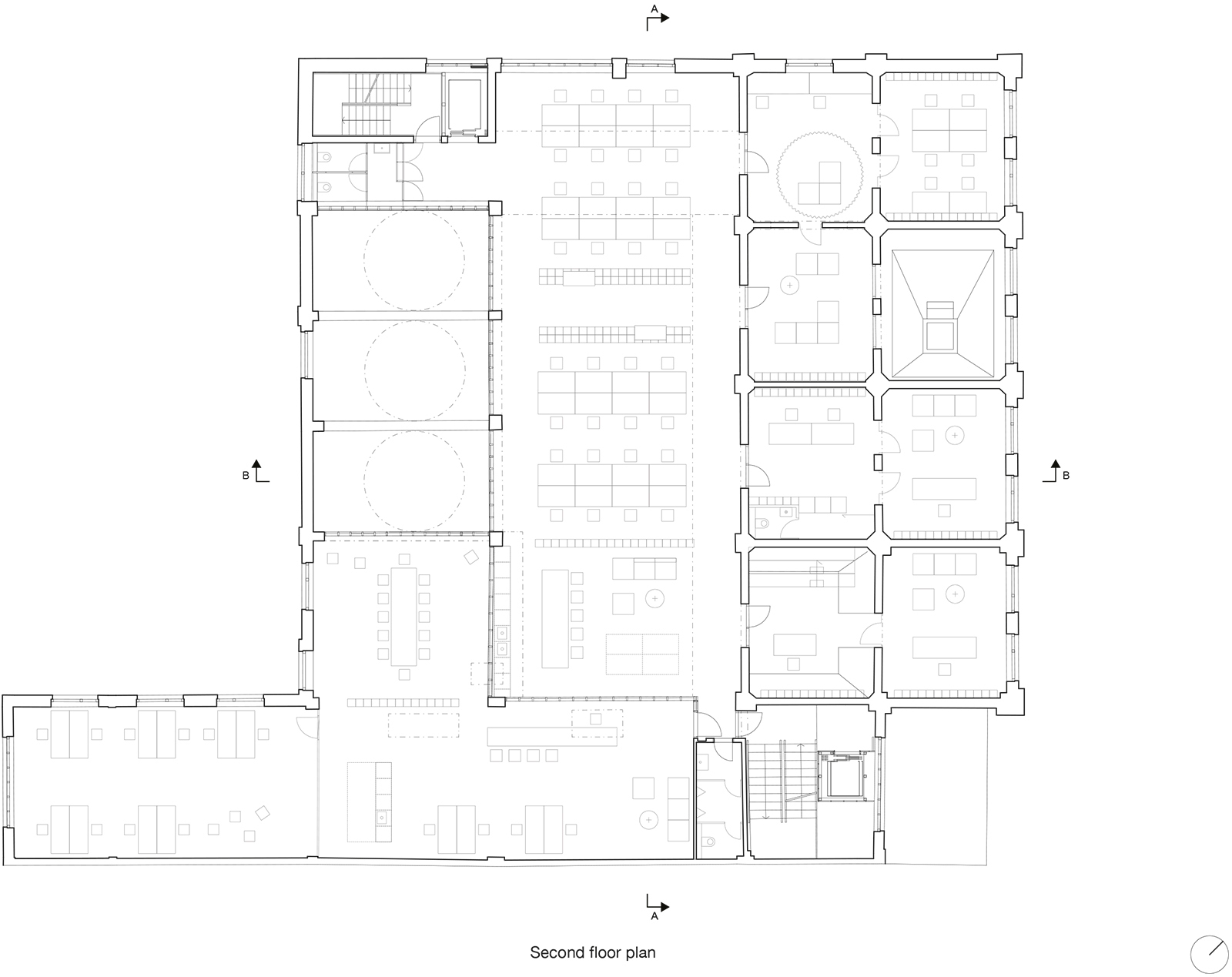
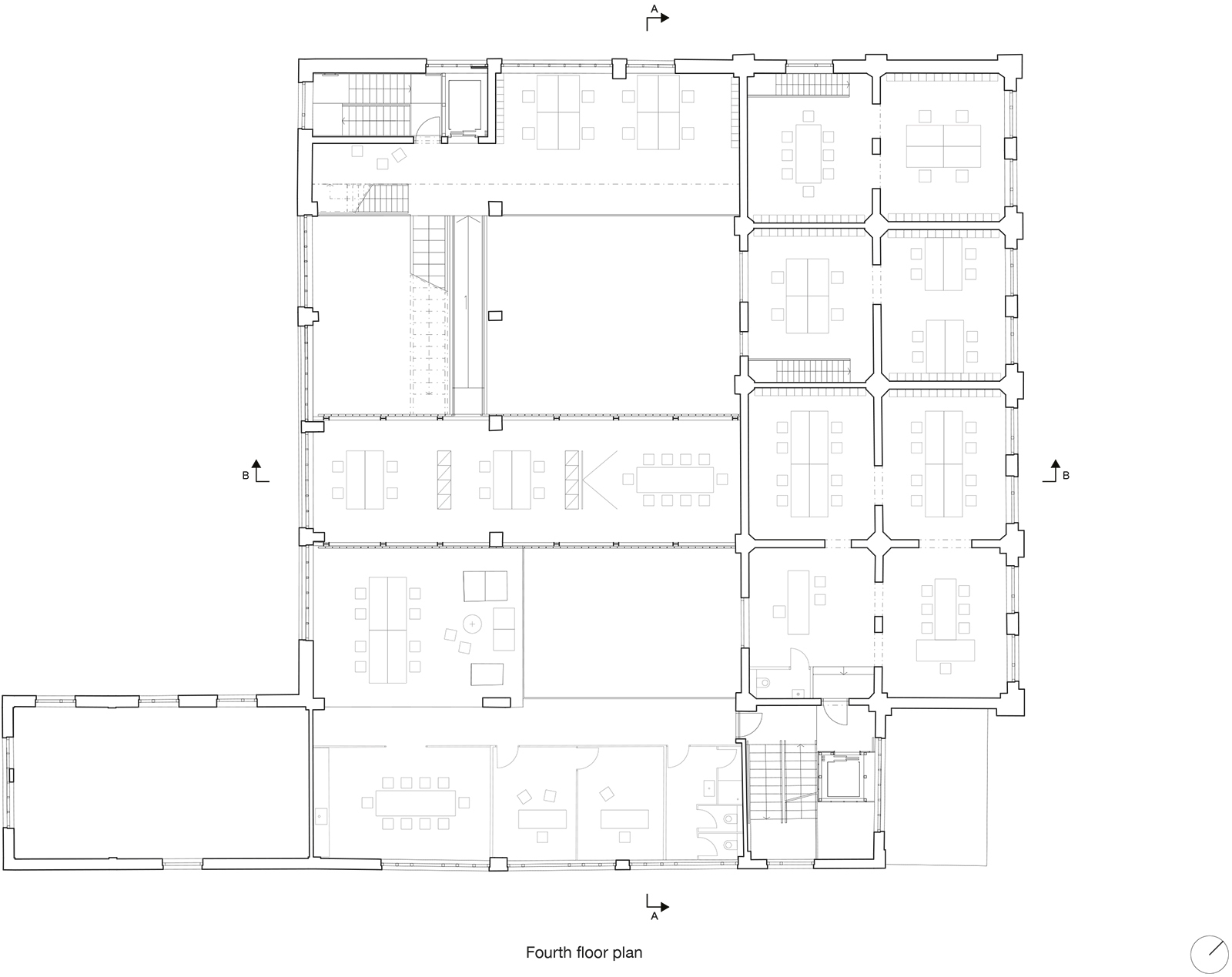
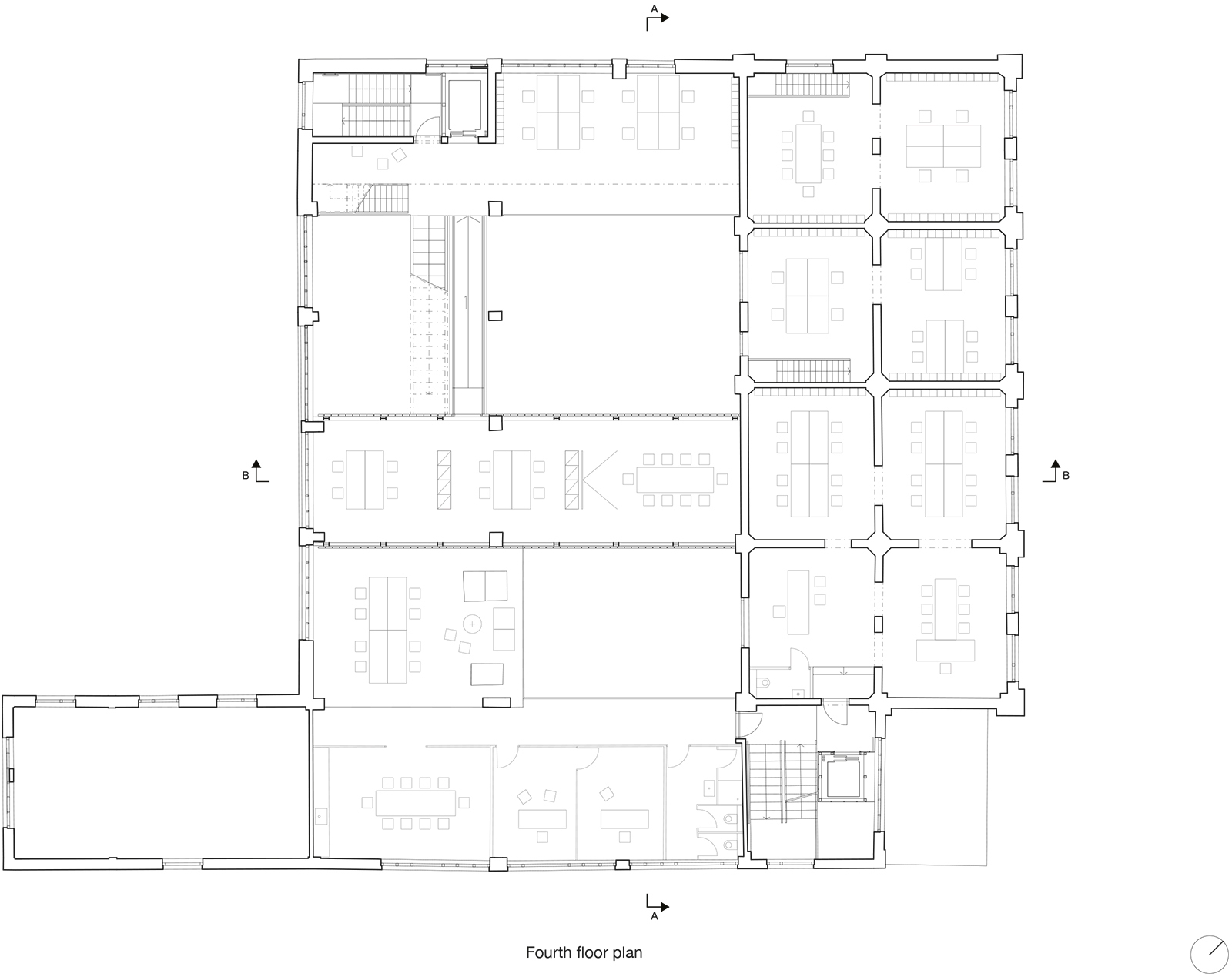
Die Erschließung von »The Mill« erfolgt über die beiden nach Norden orientierten Seiten. Hier gibt es Parkflächen und die Zugänge. In vertikaler Richtung unterteilt sich der Bau in drei Trakte mit unterschiedlichen Funktionen. Diese sind von außen über ihre differierenden Höhen abzulesen, grenzen sich im inneren des Baus jedoch kaum voneinander ab. Die unterschiedlichen Zonen mit zum Teil enormen Raumhöhen gehen fließend ineinander über. Das Raumprogramm beinhaltet neben Bereichen für kulturelle Veranstaltungen Arbeitsplätze, Administration und Wohnen. So entsteht ein gemischt genutzter Ort, der ein breites Publikum anspricht und Leben in die alten Gemäuer bringt.
Im Inneren legen GutGut Architekten die tragende Konstruktion frei und integrieren sie sichtbar in das neue Raumkonzept. Sichtbetonwände, -rahmen und -träger, sowie rostrote Backsteinwände bilden die Hauptstruktur für die Reorganisation. Die massiven Elemente werden durch neue, leichte Materialen vervollständigt. Semitransparentes Acrylglas oder Glasflächen füllen die starren Rahmen und trennen Räume ab, ohne die Blickbezüge zu stören. Kleine Farbtupfer in Form von hellen Holzeinbauten verleihen der ansonsten eher kühl gestalteten »The Mill« einen Hauch von Gemütlichkeit. Sämtliche Installationen sind sichtbar und komplettieren den Industriecharakter des dynamischen Multifunktionsbaus.














































