// Check if the article Layout ?>
A New Lease of Life: Revitalization of the Mill by GutGut
Foto: Jakub Skokan, Martin Tůma – BoysPlayNice
The Mill is located on the northern edge of a large, disused industrial area. The grounds, which were devoted to the production of concrete goods until the 1990s, became even more dilapidated after the company was privatized and sold off piece by piece. Now, the architects from GutGut have given the old walls a new lease of life. They have preserved the constructive elements and thus the basic shape of the existing building. Targeted interventions to various points of the massive block have brought vivacity, air and light inside the new multifunctional building. The views are peppered with openings of various shapes and arrangements, nonetheless giving the façade and sleek white walls a tranquil overall image.
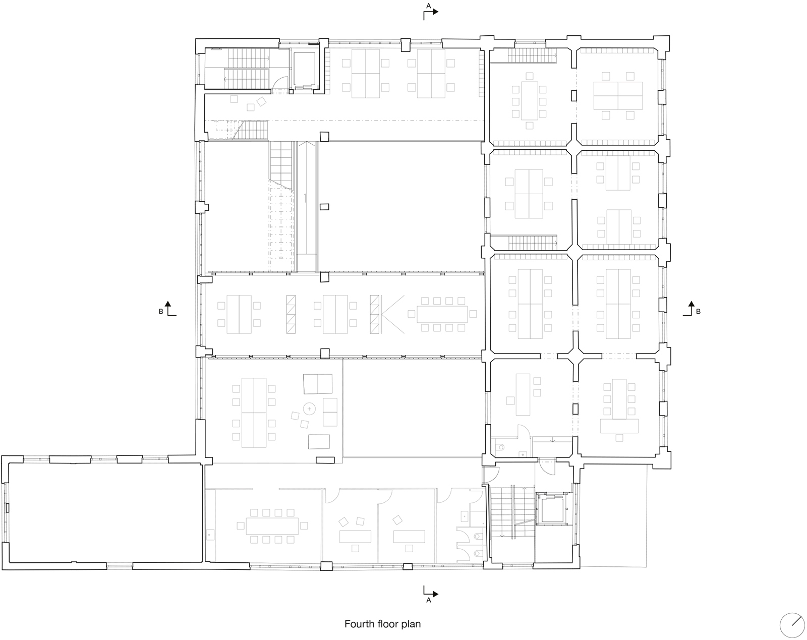
The Mill is accessed via the two north-facing sides, which feature parking spots and entrances. Vertically, the building is divided into three tracts, each of which has a different function. These can be discerned from outside by their differing heights, yet inside they are hardly delimited from each other. The various zones, some of which are enormously tall, transition fluidly. Apart from areas for cultural events, the spatial program includes spaces for work, administration and living. This has created a place of mixed use which appeals to a broad audience and brings a bit of life into the old walls.
Inside, the architects from GutGut have exposed the supporting construction and visibly integrated it into the new spatial concept. Exposed-concrete walls, frames and supports, as well as rust-red brick walls, form the main structure of the reorganization. The massive elements are now complemented with new, light materials. Semi-transparent Plexiglas or glass surfaces fill the stark spaces and delimit the rooms without interrupting the visual perspectives. Small pops of colour in the form of light-coloured wooden built-ins give the Mill, which is otherwise rather cool, a touch of cosiness. All the installations are visible, completing the industrial character of this dynamic multifunctional building.
The Mill is accessed via the two north-facing sides, which feature parking spots and entrances. Vertically, the building is divided into three tracts, each of which has a different function. These can be discerned from outside by their differing heights, yet inside they are hardly delimited from each other. The various zones, some of which are enormously tall, transition fluidly. Apart from areas for cultural events, the spatial program includes spaces for work, administration and living. This has created a place of mixed use which appeals to a broad audience and brings a bit of life into the old walls.
Inside, the architects from GutGut have exposed the supporting construction and visibly integrated it into the new spatial concept. Exposed-concrete walls, frames and supports, as well as rust-red brick walls, form the main structure of the reorganization. The massive elements are now complemented with new, light materials. Semi-transparent Plexiglas or glass surfaces fill the stark spaces and delimit the rooms without interrupting the visual perspectives. Small pops of colour in the form of light-coloured wooden built-ins give the Mill, which is otherwise rather cool, a touch of cosiness. All the installations are visible, completing the industrial character of this dynamic multifunctional building.














































