// Check if the article Layout ?>
Zwei Maße: T noie von Katsutoshi Sasaki + Associates
Foto: Katsutoshi Sasaki + Associates
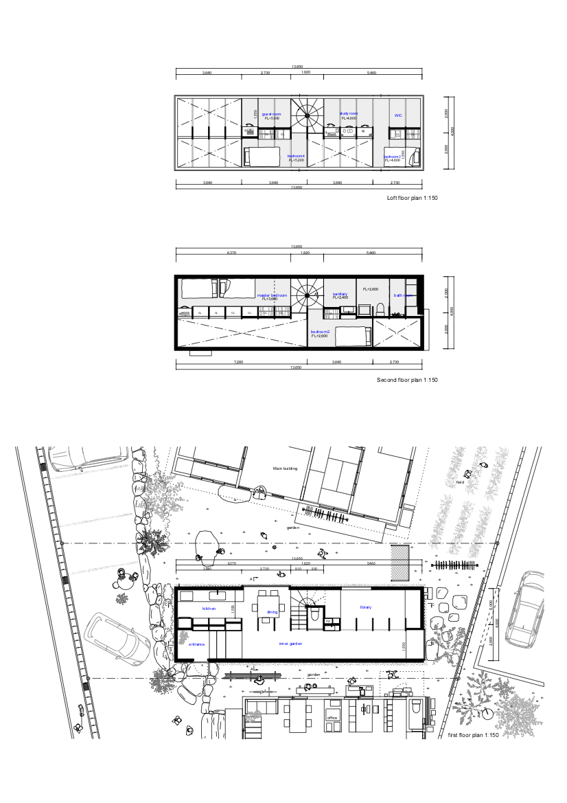
Der japanische Architekt Katsutoshi Sasaki hat sich und seiner Familie ein 102m2 großes, T-förmiges Haus gebaut, welches sich in Toyota in der Präfektur Aichi befindet. Bei den Proportionen des Hauses ließ er sich von sowohl menschlich als auch städtisch geprägten Maßen beeinflussen. So nimmt die Breite des Hauses mit 1,55m eine menschliche Perspektive ein und soll ein Gefühl der Geborgenheit aufkommen lassen, während die Tiefe von 13,5m und Höhe von 8m städtische Größenordnungen imitieren und für eine weiträumig offene Atmosphäre im Inneren sorgen.
Gedankliches Grundprinzip ist beim »T noie Haus« die Idee der Permeabilität zwischen Innen und Außen. Katsutoshi Sasaki setzt die für japanische Häuser standardisierte Bauhöhe von 8m mit der Deckenhöhe des »Tnoie Hauses« gleich und skaliert so die Beziehung zwischen Mensch und Umgebung neu. Durch die Holzkonstruktion tritt natürliches Licht mehrheitlich sowohl durch den Obergaden als auch durch eine Glasschiebetür und gelangt so in die an der spiralförmigen Treppe leicht verschoben angeordneten Räume. Bei der Außengestaltung kontrastiert die dunkle Fassade aus Rotzedernholz mit dem hellen Furniersperrholz im Inneren.
Das »T noie Haus« von Katsutoshi Sasaki misst mit zweierlei Maß – im Inneren ist die menschliche Nähe Maßstab, während das Haus sich äußerlich in konventionelle Bauverordnungen einreiht, aber gleichzeitig damit Dimensionen des Stadtbilds nach innen abbildet.



