// Check if the article Layout ?>
Two Scales: T noie by Katsutoshi Sasaki + Associates
Foto: Katsutoshi Sasaki + Associates
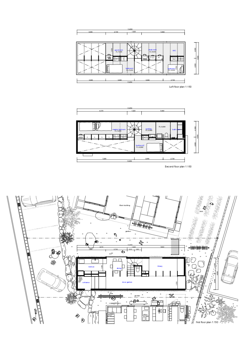
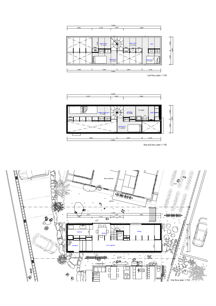
Japanese architect Katsutoshi Sasaki has built a T-shaped house measuring 102 m² in Toyota, a city in the prefecture of Aichi. In terms of the proportions of the house, Sasaki was influenced by both the human scale as well as the urban one. Measuring 1.55 m, the width of the house takes on a human perspective and is meant to evoke a feeling of security. In contrast, the home’s depth of 13.5 m and height of 8 m echo the urban scale and serve to create a generously open atmosphere within.
The fundamental principle behind T noie House is the idea of permeability between inside and out. Sasaki starts with Japan’s standard 8-metre upper ceiling height in order to rescale the relationship between people and their environment. Natural light falls as much through the row of windows at the top of the wooden construction as through the sliding glass door on the ground floor, extending to the spaces that are somewhat offset by the spiral staircase. On the exterior, the dark façade of red cedar contrasts with the light-coloured laminated veneer inside.
Katsutoshi’s T noie House can be measured with two different scales. The inside is devoted to human closeness, while the exterior conforms to conventional building regulations, yet simultaneously depicts dimensions of the urban landscape towards the inside.
The fundamental principle behind T noie House is the idea of permeability between inside and out. Sasaki starts with Japan’s standard 8-metre upper ceiling height in order to rescale the relationship between people and their environment. Natural light falls as much through the row of windows at the top of the wooden construction as through the sliding glass door on the ground floor, extending to the spaces that are somewhat offset by the spiral staircase. On the exterior, the dark façade of red cedar contrasts with the light-coloured laminated veneer inside.
Katsutoshi’s T noie House can be measured with two different scales. The inside is devoted to human closeness, while the exterior conforms to conventional building regulations, yet simultaneously depicts dimensions of the urban landscape towards the inside.



