07.03.2018 Jakob Schoof

Zyklopen-Holzverschalung: Schulzentrum in Montévrain

Foto: Luc Boegly

Die Gegend rund um den Disneyland-Freizeitpark östlich von Paris gibt sich schon auf dem Satellitenbild als Reißbrett-Landschaft zu erkennen. Die Départementsstraße 344 beschreibt hier einen perfekt abgezirkelten Kreis von rund drei Kilometern Durchmesser, der das Disneyland, die dazugehörenden Parkplätze und das Hotel-Resort sowie ein Einkaufszentrum umrundet.

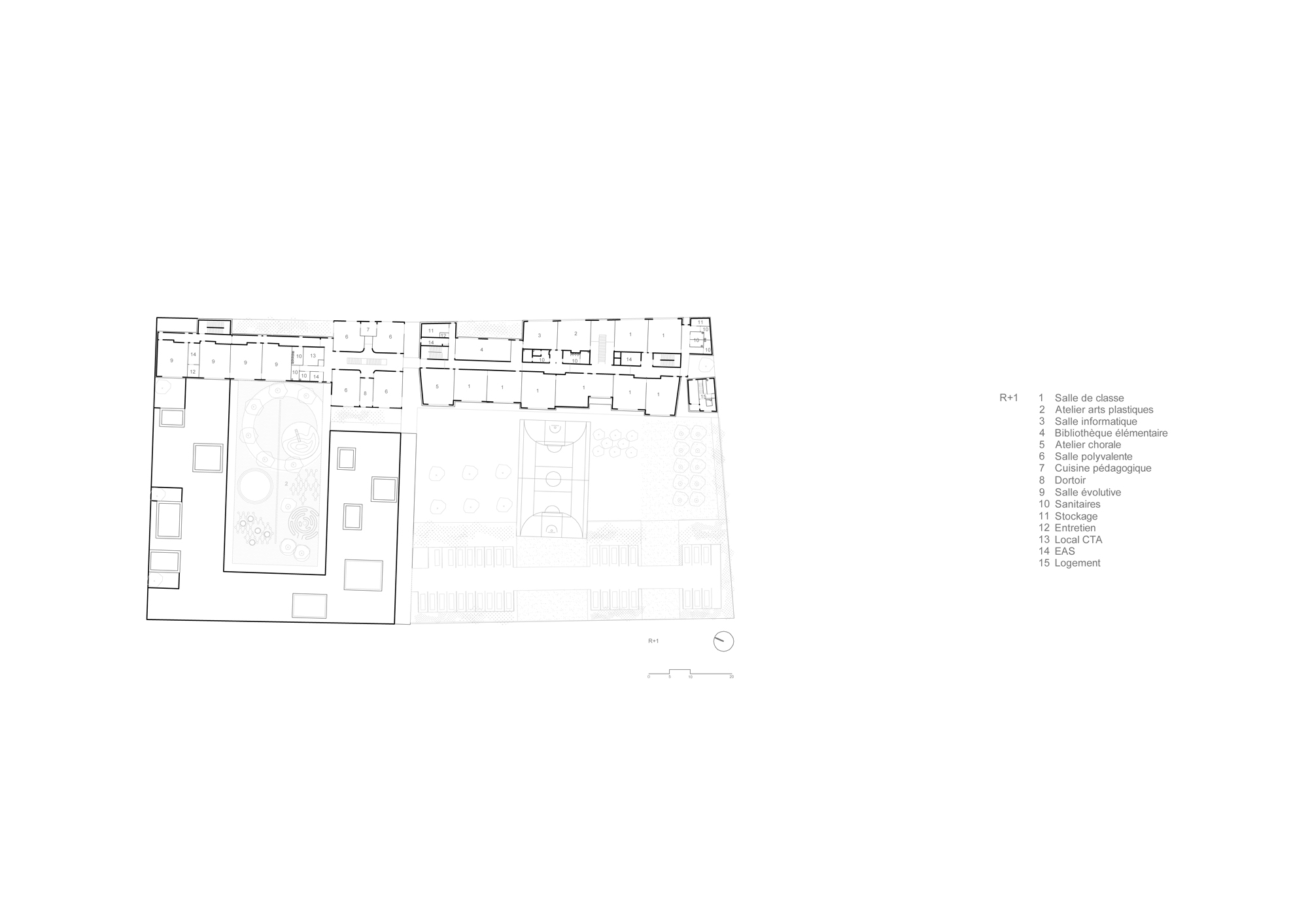
Knapp außerhalb des Kreises, auf seiner Westseite, wächst derzeit die Gemeinde Montévrain um ein Neubaugebiet nach dem anderen. Frühzeitig kümmert sich die 10.000-Einwohner-Stadt dabei auch um die erforderliche Bildungsinfrastruktur. So begannen schon vor dem Spatenstich für die umliegenden Wohnblocks auch die Planungen für das neue Schulzentrum Louis-de-Vion. Es setzt sich aus einem Kindergarten und einer Grundschule zusammen und ist auf insgesamt 500 Kinder ausgelegt. Außerdem beherbergt der Gebäudekomplex ein Freizeitzentrum für 150 Kinder, zwei Schulkantinen und eine Hausmeisterwohnung.

Das Schulzentrum wird von Osten über eine ruhige Wohnstraße erschlossen und bildet dort eine Art zweigeschossigen Rücken aus. Westlich davon liegen die Pausenhöfe, wobei jener der Grundschule offener gestaltet und derjenige des Kindergartens auf den übrigen drei Seiten von eingeschossigen Gebäudeflügeln gerahmt wird. Vor allem bei der Annäherung aus Norden ergibt der Neubaukomplex ein einprägsames Bild: Über die weitgehend fensterlosen Erdgeschosswände aus Weißbeton ragen Kuben unterschiedlicher Höhe empor, die mit einem diagonalen Lattenwerk aus grau lasierten, schweren Kanthölzern verkleidet sind.

Dieselbe Holzverkleidung findet sich auch an den hofseitigen Fassaden der Gebäude wieder, sie umhüllt geschlossene Wandflächen, Dachaufbauten und Vordächer und bildet Faltläden vor den Fensterbändern der Obergeschosse. Einzig der Kubus des Freizeitzentrums inmitten der Anlage bildet einen gänzlich »holzfreien« Kontrapunkt aus Weißbeton. Hier griffen die Architekten das Diagonalraster in Form betonierter Brise-soleils vor den Fenstern auf.

Ein wenig eklektisch muten auch die Eingangshallen der beiden Bildungseinrichtungen an. Diese Räume erhielten ein Tonnengewölbe aus weißem Gipskarton. Als erster Schulbau in der Region Ile-de-France genügt die „Groupe Scolaire Louis-de-Vion“ den Anforderungen des Passivhausstandards.
Weitere Informationen: Bauherrenberatung (Nachhaltigkeit und Ökologie): Ingérop
Tragwerksplanung: DVVD
TGA-Planung: LBE
Kostenplanung: 12 Eco
Akustik: Altia
Landschaftsarchitektur:
Atelier Roberta

Foto: Luc Boegly

Foto: Luc Boegly

Foto: Luc Boegly

Foto: Luc Boegly

Foto: Luc Boegly

Foto: Luc Boegly

Foto: Luc Boegly

Foto: Luc Boegly

Foto: Luc Boegly

Foto: Luc Boegly

Foto: Luc Boegly

Foto: Luc Boegly

Foto: Luc Boegly

Foto: Luc Boegly

Foto: Luc Boegly

Foto: Luc Boegly

Foto: Luc Boegly

Lageplan, Grafik: AAVP Architecture

Grundriss Erdgeschoss, Grafik: AAVP Architecture

Grundriss Obergeschoss, Grafik: AAVP Architecture

Axonometrie, Grafik: AAVP Architecture

https://detail-cdn.s3.eu-central-1.amazonaws.com/media/catalog/product/M/O/MON-FILAIRE-Teaser-gross.jpg?width=437&height=582&store=de_de&image-type=image https://detail-cdn.s3.eu-central-1.amazonaws.com/media/catalog/product/M/O/MON-FILAIRE-Teaser.jpg?width=437&height=582&store=de_de&image-type=image https://detail-cdn.s3.eu-central-1.amazonaws.com/media/catalog/product/M/O/MON-FILAIRE-1.jpg?width=437&height=582&store=de_de&image-type=image https://detail-cdn.s3.eu-central-1.amazonaws.com/media/catalog/product/M/O/MON-FILAIRE-2.jpg?width=437&height=582&store=de_de&image-type=image https://detail-cdn.s3.eu-central-1.amazonaws.com/media/catalog/product/M/O/MON-FILAIRE-3.jpg?width=437&height=582&store=de_de&image-type=image https://detail-cdn.s3.eu-central-1.amazonaws.com/media/catalog/product/M/O/MON-FILAIRE-4.jpg?width=437&height=582&store=de_de&image-type=image https://detail-cdn.s3.eu-central-1.amazonaws.com/media/catalog/product/M/O/MON-FILAIRE-5.jpg?width=437&height=582&store=de_de&image-type=image https://detail-cdn.s3.eu-central-1.amazonaws.com/media/catalog/product/M/O/MON-FILAIRE-6.jpg?width=437&height=582&store=de_de&image-type=image https://detail-cdn.s3.eu-central-1.amazonaws.com/media/catalog/product/M/O/MON-FILAIRE-7.jpg?width=437&height=582&store=de_de&image-type=image https://detail-cdn.s3.eu-central-1.amazonaws.com/media/catalog/product/M/O/MON-FILAIRE-8.jpg?width=437&height=582&store=de_de&image-type=image https://detail-cdn.s3.eu-central-1.amazonaws.com/media/catalog/product/M/O/MON-FILAIRE-9.jpg?width=437&height=582&store=de_de&image-type=image https://detail-cdn.s3.eu-central-1.amazonaws.com/media/catalog/product/M/O/MON-FILAIRE-10.jpg?width=437&height=582&store=de_de&image-type=image https://detail-cdn.s3.eu-central-1.amazonaws.com/media/catalog/product/M/O/MON-FILAIRE-11.jpg?width=437&height=582&store=de_de&image-type=image https://detail-cdn.s3.eu-central-1.amazonaws.com/media/catalog/product/M/O/MON-FILAIRE-12.jpg?width=437&height=582&store=de_de&image-type=image https://detail-cdn.s3.eu-central-1.amazonaws.com/media/catalog/product/M/O/MON-FILAIRE-13.jpg?width=437&height=582&store=de_de&image-type=image https://detail-cdn.s3.eu-central-1.amazonaws.com/media/catalog/product/M/O/MON-FILAIRE-14.jpg?width=437&height=582&store=de_de&image-type=image https://detail-cdn.s3.eu-central-1.amazonaws.com/media/catalog/product/M/O/MON-FILAIRE-15.jpg?width=437&height=582&store=de_de&image-type=image https://detail-cdn.s3.eu-central-1.amazonaws.com/media/catalog/product/M/O/MON-FILAIRE-16.jpg?width=437&height=582&store=de_de&image-type=image https://detail-cdn.s3.eu-central-1.amazonaws.com/media/catalog/product/M/O/MON-FILAIRE-17.jpg?width=437&height=582&store=de_de&image-type=image https://detail-cdn.s3.eu-central-1.amazonaws.com/media/catalog/product/M/O/MON-FILAIRE-Lageplan.jpg?width=437&height=582&store=de_de&image-type=image https://detail-cdn.s3.eu-central-1.amazonaws.com/media/catalog/product/M/O/MON-FILAIRE-Erdgeschoss.jpg?width=437&height=582&store=de_de&image-type=image https://detail-cdn.s3.eu-central-1.amazonaws.com/media/catalog/product/M/O/MON-FILAIRE-Obergeschoss.jpg?width=437&height=582&store=de_de&image-type=image https://detail-cdn.s3.eu-central-1.amazonaws.com/media/catalog/product/M/O/MON-FILAIRE-Axonometrie.jpg?width=437&height=582&store=de_de&image-type=image
Copyright © 2024 DETAIL. Alle Rechte vorbehalten.