Confident dialogue
Apartment in Prague by Formafatal
Exposed roof beams and light colours help to create a welcoming atmosphere in this sparsely lit attic flat. © Boysplaynice
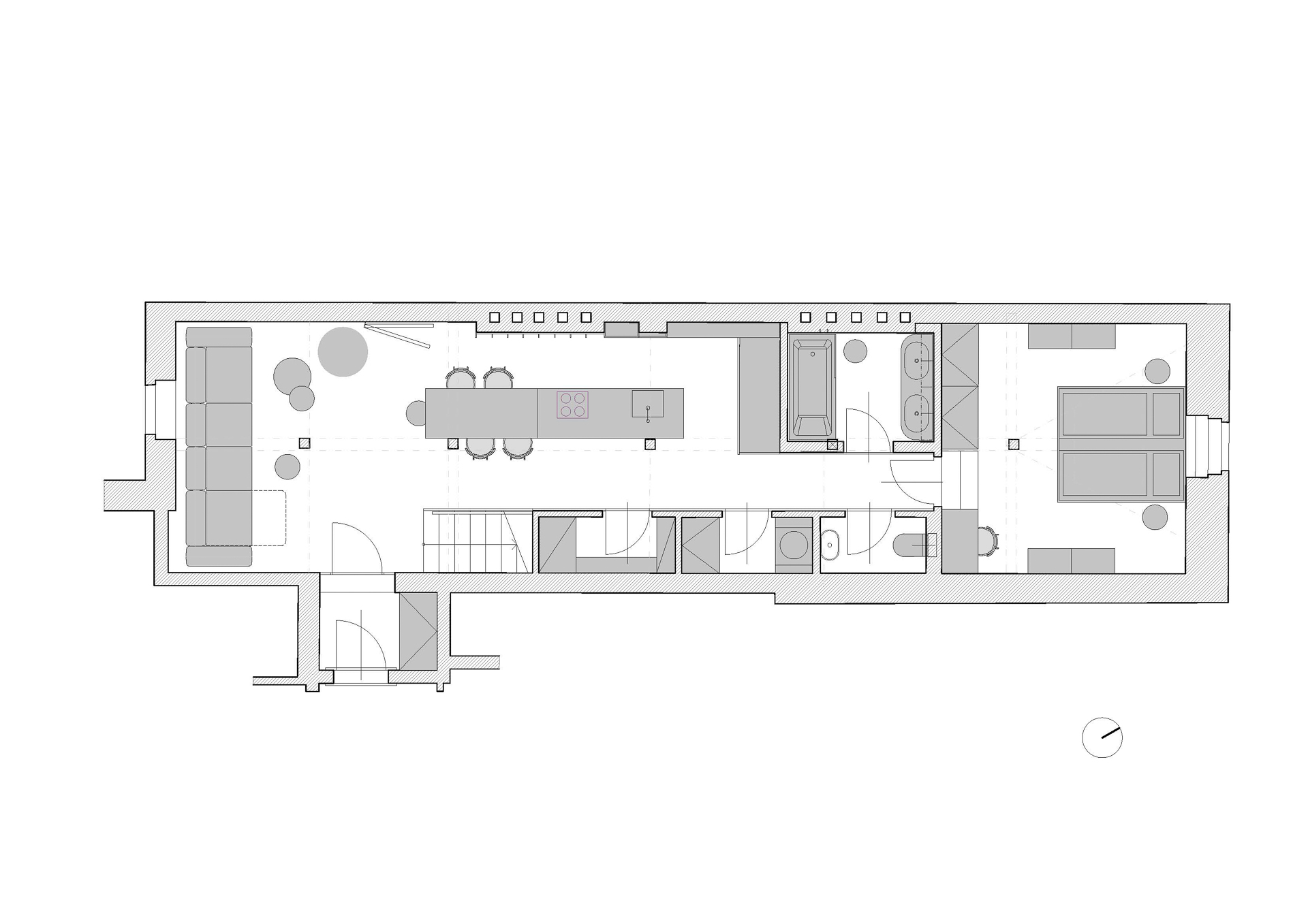
Smichov is located on the western bank of the Vltava River. At the centrally located Arbesplatz Studio Formafatal has converted an attic into a two-storey flat with a gallery. This project is part of a comprehensive restructuring of the top floor, which has been divided into four units. The aim was to create a timeless and striking living space that impresses with its clear design, durable materials, and high functionality. The existing roof structure, with its limited number of openings, presented a planning challenge. However, targeted measures in the areas of lighting, materials and colour selection have resulted in a bright interior with a clear spatial structure.


The kitchen unit and tabletop are integrated. © Boysplaynice


A single-flight staircase made of lacquered steel profiles leads to the gallery. © Boysplaynice
Clearly structured
The exposed wooden roof structure, a reminder of the building's history, sets the overall mood. Matt surfaces in cream white and subtle shades of grey and blue dominate the walls, ceilings and floors. A floor-to-ceiling cube made of dark glazed wood is centrally located, contrasting with the room's bright atmosphere while emphasising the vertical structure of the two-storey volume. It serves as a kitchen cupboard and encloses the bathroom.


The bathroom is on the lower level, © Boysplaynice


Red accents in the bathroom, © Boysplaynice
Strong colour accents
The single-flight staircase with a railing made of painted steel profiles and perforated sheet metal is striking. In the lower area, mirrored stainless steel panels complement the material structure, creating subtle reflections that visually expand the room. The custom-made furniture and fittings include a solid kitchen block that seamlessly transitions into an elongated tabletop towards the living area. Four red, lacquered steel bar stools add a bold colour accent that is repeated throughout the flat in various places, drawing attention to inconspicuous elements such as table legs, towel rails, and even tile joints, which enter into a confident dialogue with the qualities of the historic attic space.
Architecture: Formafatal
Client: Domino, Promont
Location: Arbesplatz, Prag (CZ)
Technical inspection: Petra Klapka
Furniture: Interiéry Tesař
Locksmith works: Richard Bold
Metal works: Kurel
Epoxy coatings: Different design























