Selbstbewusster Dialog
Apartment in Prag von Formafatal
Sichtbare Dachbalken und helle Farben sorgen für eine freundliche Atmosphäre in der spärlich belichteten Dachwohnung. © Boysplaynice
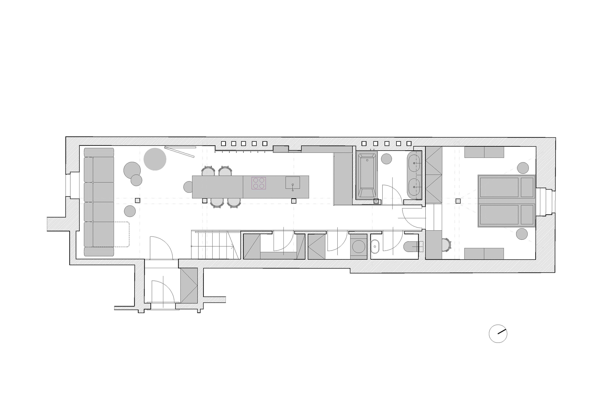
Der Prager Stadtteil Smichov liegt am westlichen Ufer der Moldau. Am zentral gelegenen Arbesplatz hat Studio Formafatal ein Dachgeschoss in eine zweigeschossige Wohnung mit Galerie umgebaut. Der Eingriff ist Teil einer umfassenden Neustrukturierung des obersten Geschosses, das in vier Einheiten aufgeteilt wurde. Ziel war es, einen ebenso zeitlosen wie markanten Wohnraum zu schaffen, der durch klare Gestaltung, langlebige Materialien und hohe Funktionalität überzeugt. Die vorhandene Dachstruktur mit ihrer begrenzten Anzahl an Öffnungen stellte dabei eine planerische Herausforderung dar. Durch gezielte Maßnahmen in den Bereichen Lichtführung, Materialität und Farbwahl entstand ein helles, räumlich klar gegliedertes Interieur.


Küchenblock und Tischplatte bilden eine Einheit. © Boysplaynice


Eine einläufige Treppe aus lackierten Stahlprofilen führt auf die Galerie. © Boysplaynice
Klar gegliedert
Die Grundstimmung ist geprägt durch das sichtbar belassene Dachtragwerk aus Holz, das an die Geschichte des Gebäudes erinnert. Matte Oberflächen in Cremeweiß sowie dezente Grau- und Blautöne dominieren Wände, Decken und Boden. Zentral platziert ist ein raumhoher Kubus aus dunkel lasiertem Holz, der die helle Raumatmosphäre kontrastiert und gleichzeitig die vertikale Gliederung des zweigeschossigen Volumens betont. Er dient als Küchenschrank und umfasst das Badezimmer.


Badezimmer auf der unteren Ebene, © Boysplaynice


Rote Farbakzente im Badezimmer, © Boysplaynice
Kräftige Farbakzente
Auffällig ist die einläufige Treppe mit einem Geländer aus lackierten Stahlprofilen und perforiertem Blech. Im unteren Bereich ergänzen verspiegelte Edelstahlplatten das Materialgefüge und erzeugen subtile Reflexionen, die den Raum optisch erweitern. Zu den maßgefertigten Möbeln und Einbauten zählt ein massiver Küchenblock, der in Richtung Wohnbereich nahtlos in eine langgestreckte Tischplatte übergeht. Vier rot lackierte Barhocker aus Stahl setzen hier einen kräftigen Farbakzent, der sich an unterschiedlichen Stellen in der Wohnung wiederholt und unscheinbare Elemente ins Blickfeld rückt: Tischbeine, Badetuchstangen und sogar Fliesenfugen treten so in einen selbstbewussten Dialog mit den Qualitäten des historischen Dachraums.
Architektur: Formafatal
Bauherr: Domino, Promont
Standort: Arbesplatz, Prag (CZ)
Technische Überwachung: Petra Klapka
Möbel: Interiéry Tesař
Schlosserarbeiten: Richard Bold
Metallarbeiten: Kurel
Epoxidbeschichtungen: Different design























