Triangular staircase for a triangle junction
Viewing Tower near Tilburg by Architectuur Maken
© Stijn Poelstra
Form follows environment: The 25-m-high De Nieuwe Herdgang viewing tower in the middle of a triangle junction near Tilburg responds to its location also in terms of shaping.


© Stijn Poelstra
The tower's name is derived from the generally triangular pens that prehistoric herders used to corral their flocks and herds, and that later developed into the first permanent settlements in the Tilburg region.
The very top of the tower provides views over flat but varied scenery made up of meadows, woods, Tilburg's skyline and traffic arteries cutting through the landscape of the north Brabant region.


© Stijn Poelstra
De Nieuwe Herdgang is designed to enable a visit by 10 to 15 people at the same time. Entirely planned using BIM, the structure was delivered to the site in the form of three large, prefabricated parts complete with the flights of stairs, the railings and the cladding in thermally modified Accoya wood.


© Stijn Poelstra


© Stijn Poelstra
Only the mitred planks at the pointed corners of the gigantic sculptural structure were mounted retrospectively, namely at 8 cm intervals – close enough to emphasize the tower's triangular shape yet far enough apart to enable the silhouette of the stairs and the stabilising steel lattice girders to show through.
Architecture: Architectuur Maken
Client: Stadt Tilburg
Location: Eindhovenseweg, Berkel-Enschot (NL)
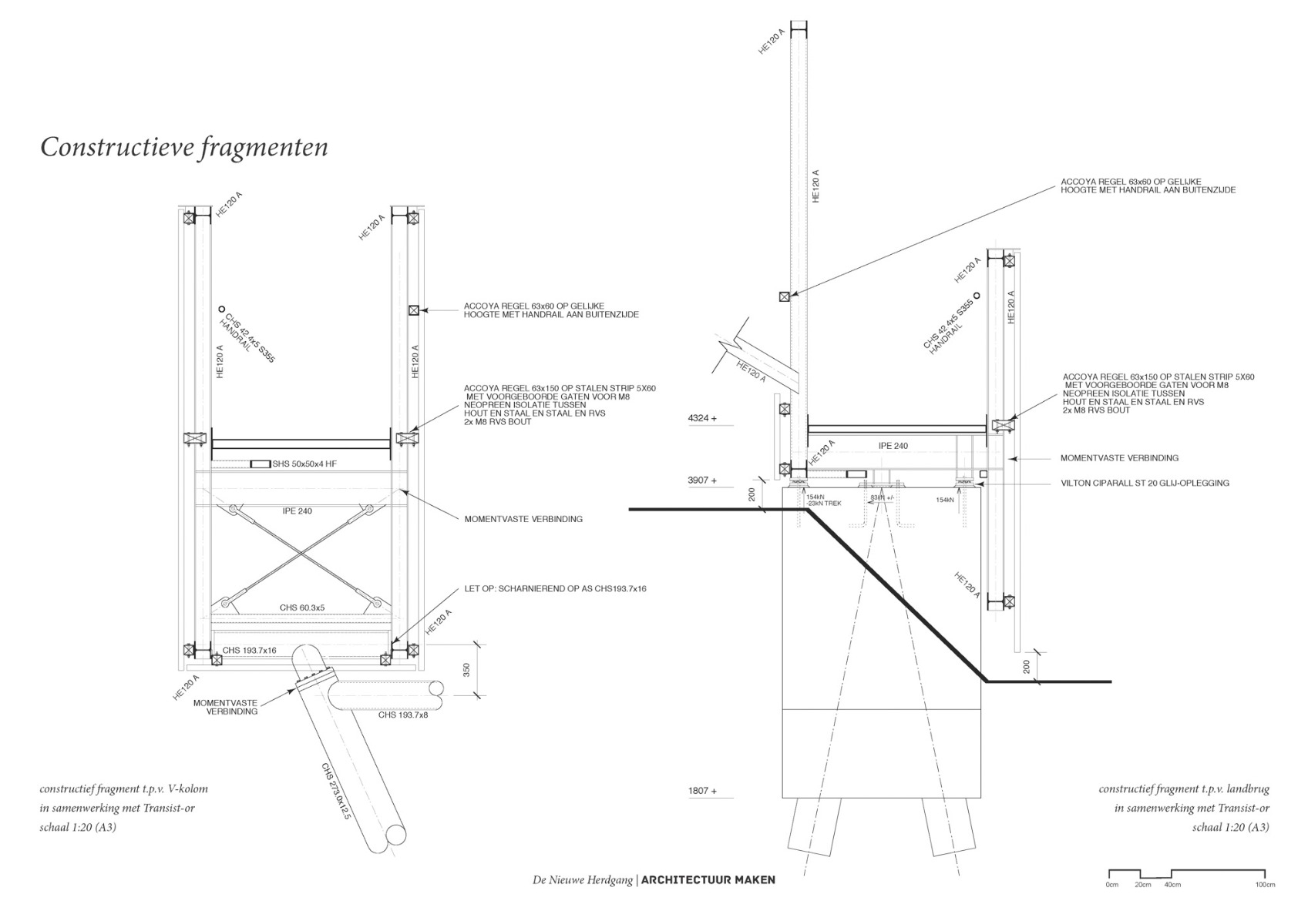
Structural engineering: Rutger Snoek, Transist-or
Landscape architecture: Eelerwoude
Contractor: J.A. Van Gisbergen



















