Experiment in hybrid timber construction
Boarding House in Mexico City by CRB Arquitectos
The eight-storey wooden structure towers almost twice as high as the neighbouring buildings nearby. © Arturo Arrieta
To the European visitor, the Avenida Álvaro Obregón area of the Roma Norte district of Mexico City appears to be a haphazard mix of buildings of various heights and ages, ranging from the mid-19th century to the present day. Numerous undeveloped plots of land are interspersed amongst them. Nevertheless, the new eight-storey building at number 43 immediately catches the eye. This is not only due to its height, but also to its wooden facade.


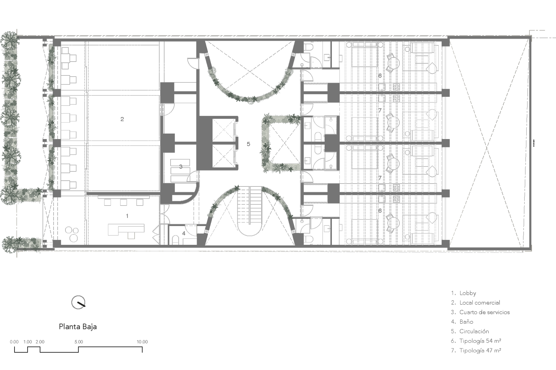
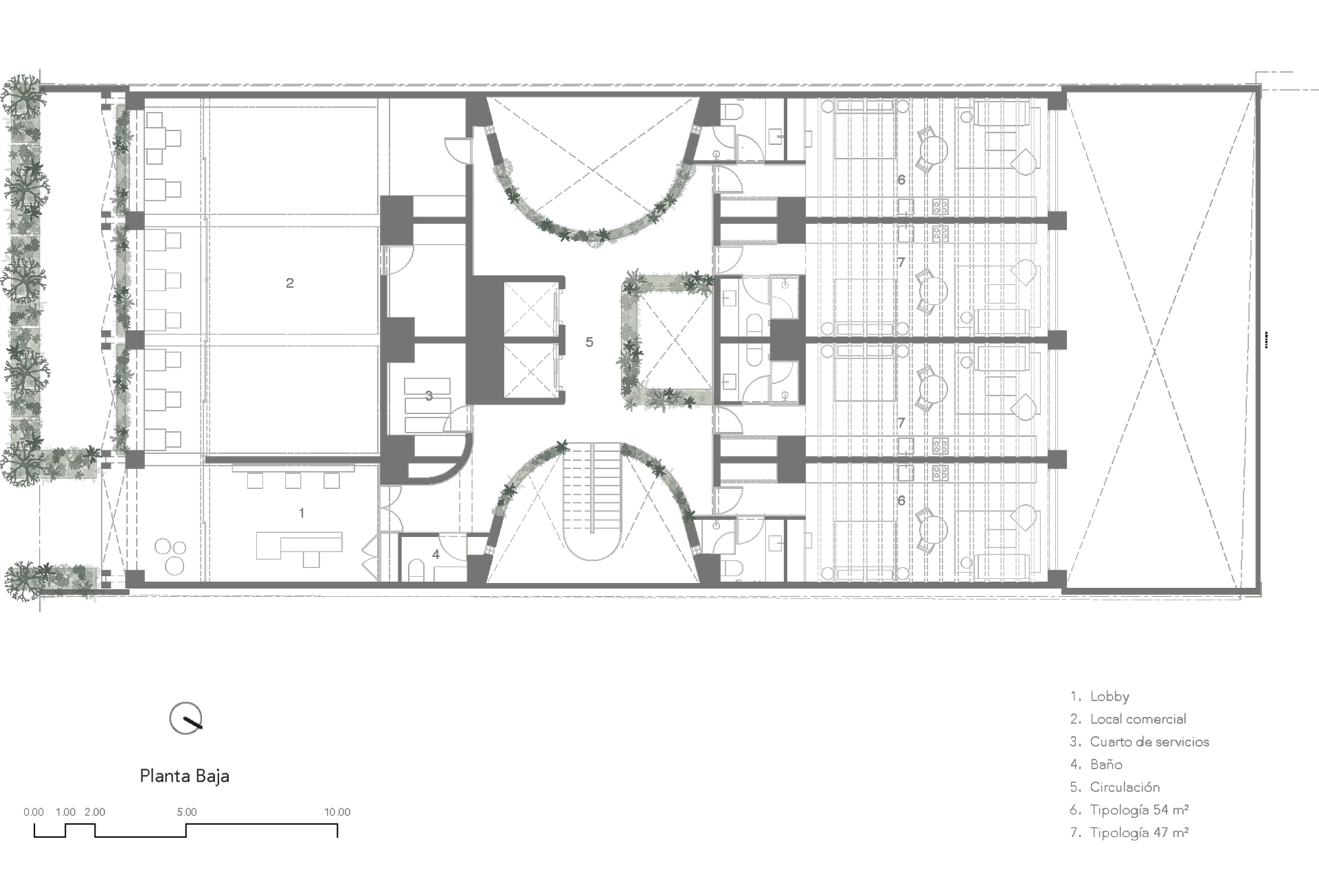
Ground floor plan, Graphic © CRB Arquitectos
The building, designed by CRB Arquitectos, comprises a total of 59 flats, all more or less the same size, as well as a shop on the ground floor and a communal terrace on the roof. The residential units are being offered for sale, partly to owner-occupiers and partly to private investors, who will then rent the space to tourists as a kind of boarding house through the developer.


Two green courtyards illuminate the open access area in the centre of the building. © Arturo Arrieta
Striking wooden structure on the street
The building's design underwent repeated changes during the planning process. Initially, the architects intended to construct the entire facade, including the ceilings, from wood. However, only the balcony area facing the street and most of the floor slabs are now made of natural materials. All interior walls and facade supports are made of concrete. To create an additional residential floor in the basement, the house has been set back slightly from its neighbours. The basement flats open onto terraces at the front and back of the building.


The balconies and staircases are lushly landscaped. © Arturo Arrieta
Inner courtyards act as green lungs
To provide adequate lighting for the relatively deep plot, the architects created two semi-circular inner courtyards in the middle of the building. In one of these courtyards, a staircase now connects all floors. The courtyards also serve as green spaces inside the building, where ferns, sago palms and kentia palms flourish. Landscape architect Hugo Sánchez has lavishly planted the staircases and balconies with greenery, including olive and guava trees in pots. The residents mainly use the rainwater that falls on the property for irrigation.


The rooms have exposed wooden ceilings. The walls are coated with Mexican chukum plaster. © Arturo Arrieta


A roof garden with a covered bar awaits residents and hotel guests on the top floor. © Arturo Arrieta
Reusing Maya recipes
Residents and hotel guests have access to a roof garden with a covered bar on the top of the building. Wood, granite flooring and chukum plaster are the dominant materials in the interiors and courtyards. This type of wall plaster was known to the ancient Mayans. It was rediscovered in the early 1990s. It consists of lime, cement, and the boiled sap of the chukum shrub, which is native to the Yucatán Peninsula. This mixture is extremely durable and completely waterproof — so much so that it is used to line swimming pools in Mexico.
Architecture: CRB Arquitectos
Client: Grupo ONTO
Location: Av. Álvaro Obregón 43, Roma Norte., Cuauhtémoc, 06700 Ciudad de México (MX)
Structural engineering: Ubando Ingeniería
Interior design: Estudio M:A
Landscape architecture: Hugo Sanchez
Contractor: Secuencia





















