Assisted living
Borna Park in the Canton of Aargau by Malte Kloes
The two residential buildings are connected by a shared ground-floor entrance. © Karina Castro
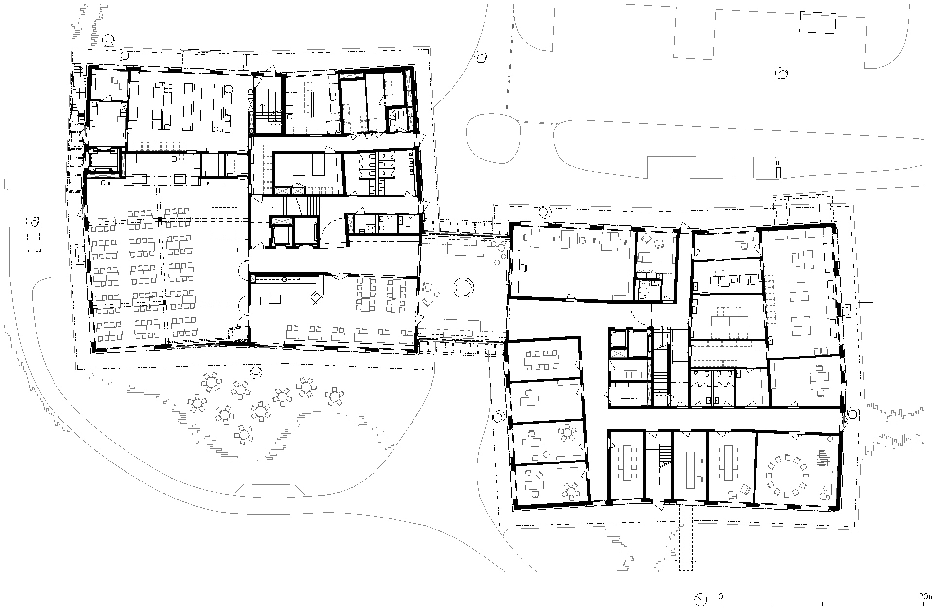
Borna Park is located in an open landscape of meadows and fields alongside the Pfaffnerenbach, a tributary of the Aare. This environment has shaped the design of the building complex in the Swiss canton of Aargau: living and working spaces have been deliberately embedded in the topography, becoming part of daily life. The complex comprises a residential building and a workshop, both of which are specially designed to meet the needs of people with various disabilities. The buildings are positioned freely on the site and connected by gentle paths. For residents, commuting between home and the workshop provides a familiar routine and an opportunity to experience the weather, light and nature first-hand.


Borna Park is surrounded by nature. © Karina Castro
Open spatial sequences
The residential building comprises two blocks connected at ground and basement level. The ground floor houses communal areas, including a dining room with a commercial kitchen, a cafeteria, and administrative spaces. Oak fittings, visible acoustic elements and polished concrete floors create an atmosphere that combines practicality and comfort. On the upper floors, residential groups benefit from open, surrounding room sequences. Dining and lounge areas are integral to the design and encourage everyday social interaction. Warm colours and visible wood and concrete surfaces characterise the calm, homely design.


Shed roofs bring uniform daylight into the workshop building. © Karina Castro
Cooperatively organised
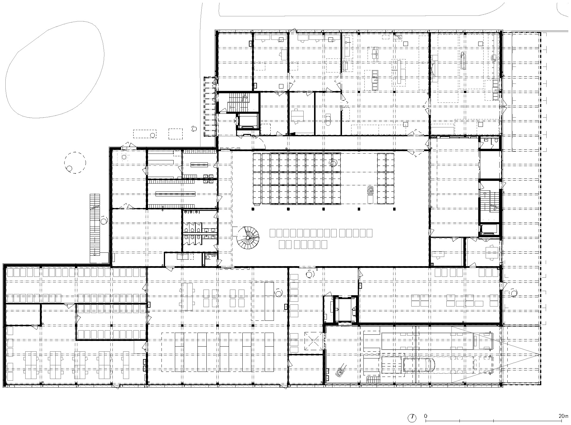
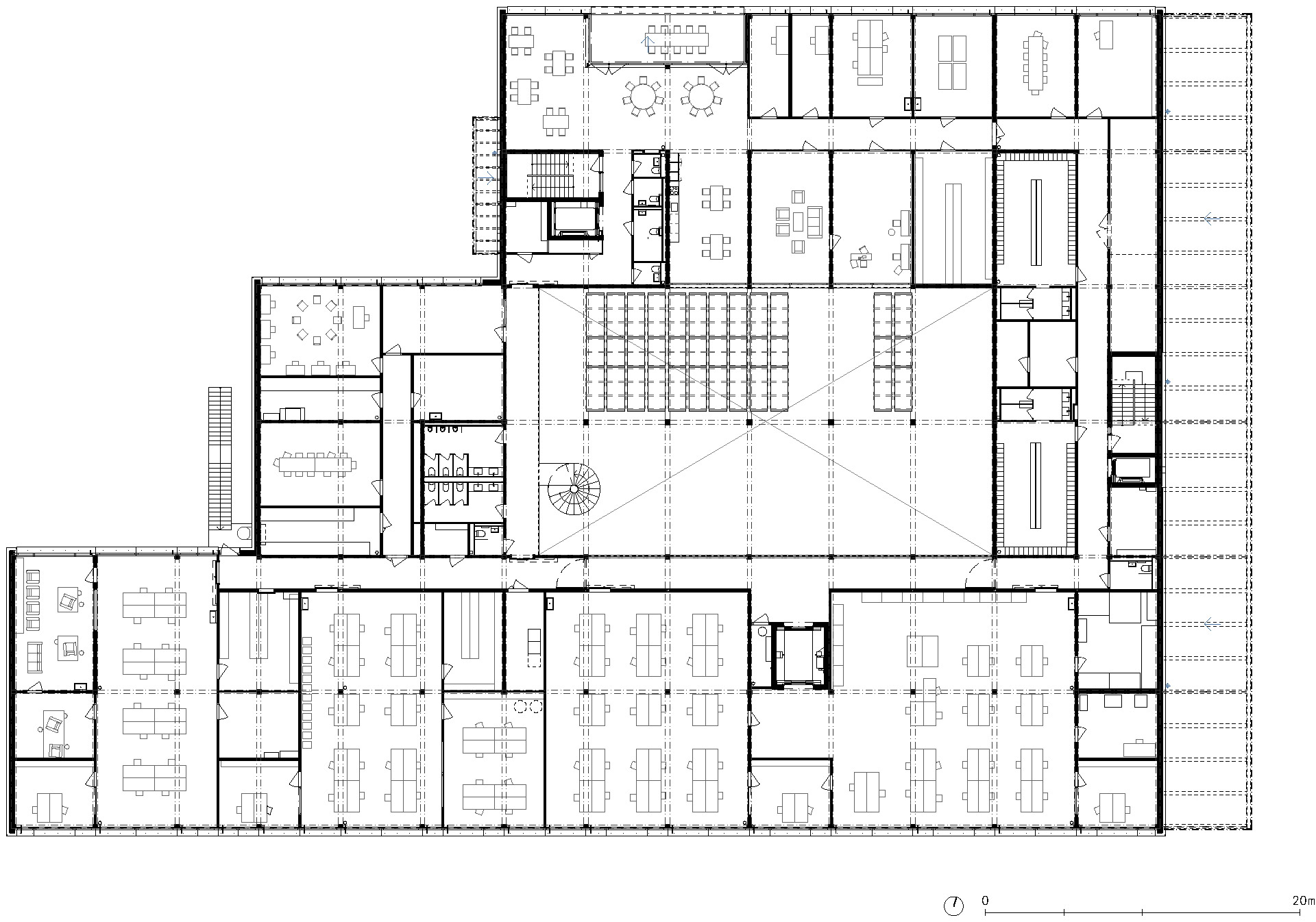
The Borna work and residential community is organised as a cooperative. The workshop building is a two-storey timber construction with a clear functional structure. At its centre is a two-storey warehouse. This serves as a spatial link between the various workshop areas, including a large carpentry workshop. The shed roof provides uniform daylight throughout the building and also supports an extensive photovoltaic system.


The two-storey warehouse links the individual workshop areas. © Karina Castro
Robust materials and clear room sequences
Inside, the appearance is dominated by a structural framework made of beech wood and exposed building services. Generous windows create visual connections and allow daylight to penetrate deep into the rooms, while also supporting clarity in everyday care. The combination of robust materials, clear room layouts and carefully positioned openings in the facade creates a working environment that combines functionality with a sense of proximity to the countryside.
Architecture: Malte Kloes Architekten
Client: Genossenschaft Arbeits- und Wohngemeinschaft Borna
Location: Gländstrasse 24, 4852 Rothrist (CH)
Construction management & consortium general planning: Büro für Bauökonomie
Structural engineering: Caprez Ingenieure
Landscape design: Andreas Geser Landschaftsarchitekten
HVAC planning: Grünberg Partner



























