Betreutes Wohnen
Borna-Park im Kanton Aargau von Malte Kloes
Die beiden Wohngebäude sind durch einen gemeinsamen Eingang im Erdgeschoss miteinander verbunden. © Karina Castro
Der Borna-Park im Schweizer Kanton Aargau ist seit 1978 Heimat und Arbeitsort für Menschen mit Beeinträchtigung. Im Auftrag der Genossenschaft Borna hat das Züricher Büro Malte Kloes Architekten nun einen Entwurf erarbeitet, der den in die Jahre gekommenen Bestand ersetzt. Das neue Ensemble umfasst ein Wohnhaus und eine Werkstatt, die beide speziell auf die Bedürfnisse der Bewohnerinnen und Bewohner ausgelegt sind. Die Einrichtung liegt in einer offenen Landschaft aus Wiesen, Feldern und dem Pfaffnerenbach, einem Zufluss der Aare. Diese Umgebung prägt auch das Konzept für das neue Gebäudeensemble. Die in die Topografie eingebetteten Baukörper sind über Wege miteinander verbunden. Der Arbeitsweg wird so zu einem wiederkehrenden Teil des täglichen Erlebens, in dem Wetter, Licht und Natur unmittelbar spürbar sind.


Der Borna-Park ist von Natur umgeben. © Karina Castro
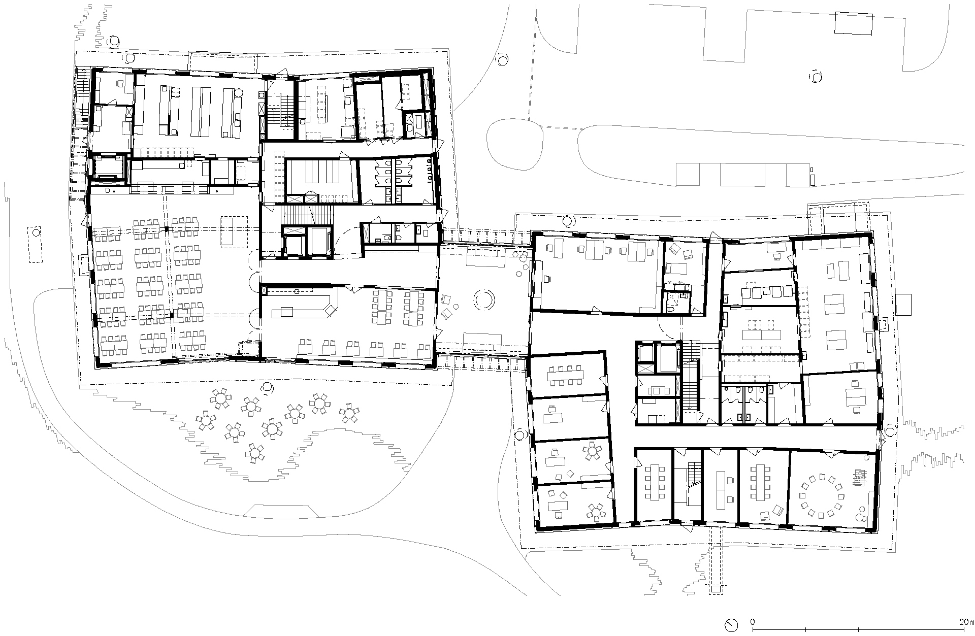
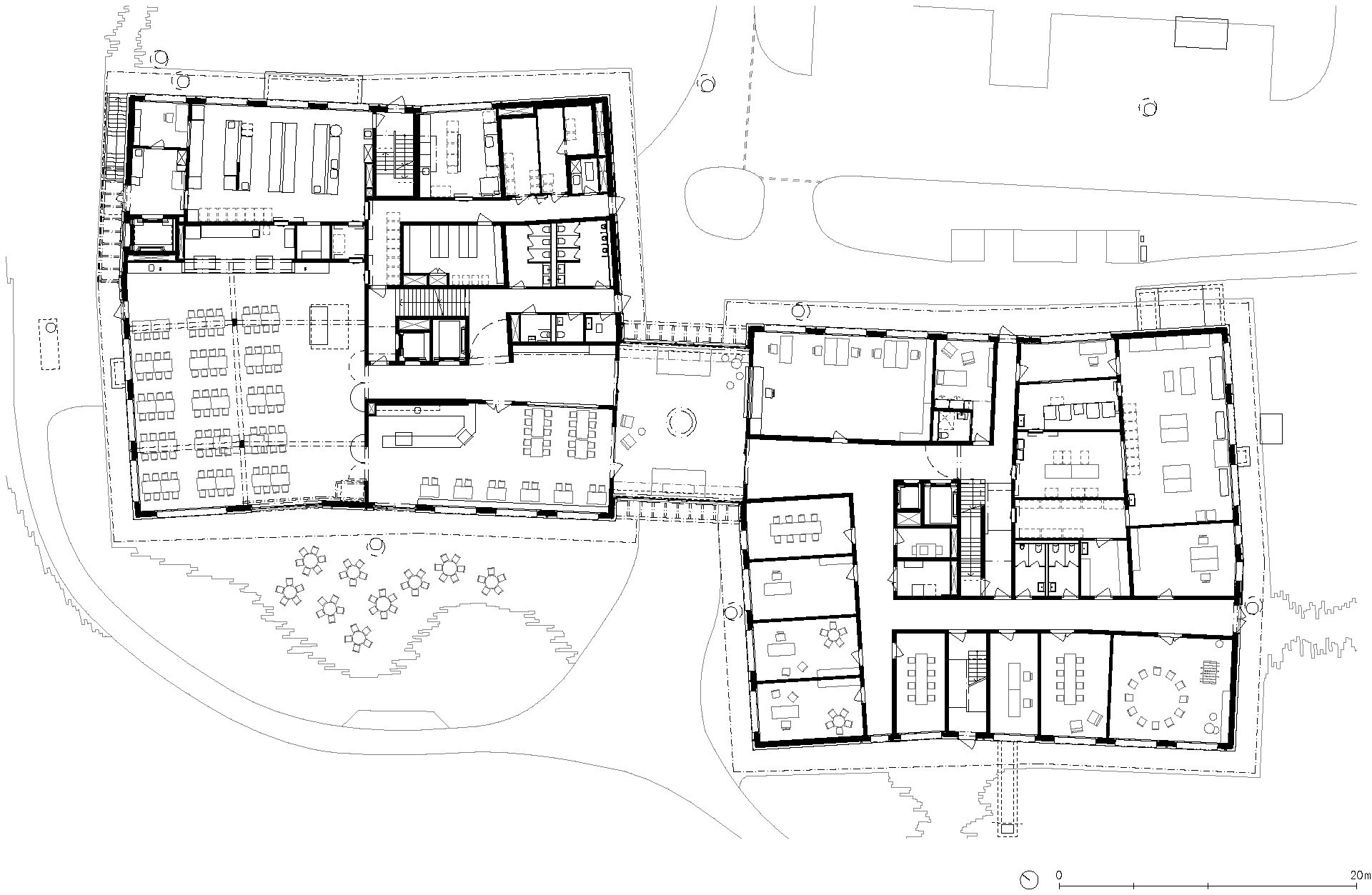
Offene Raumfolgen
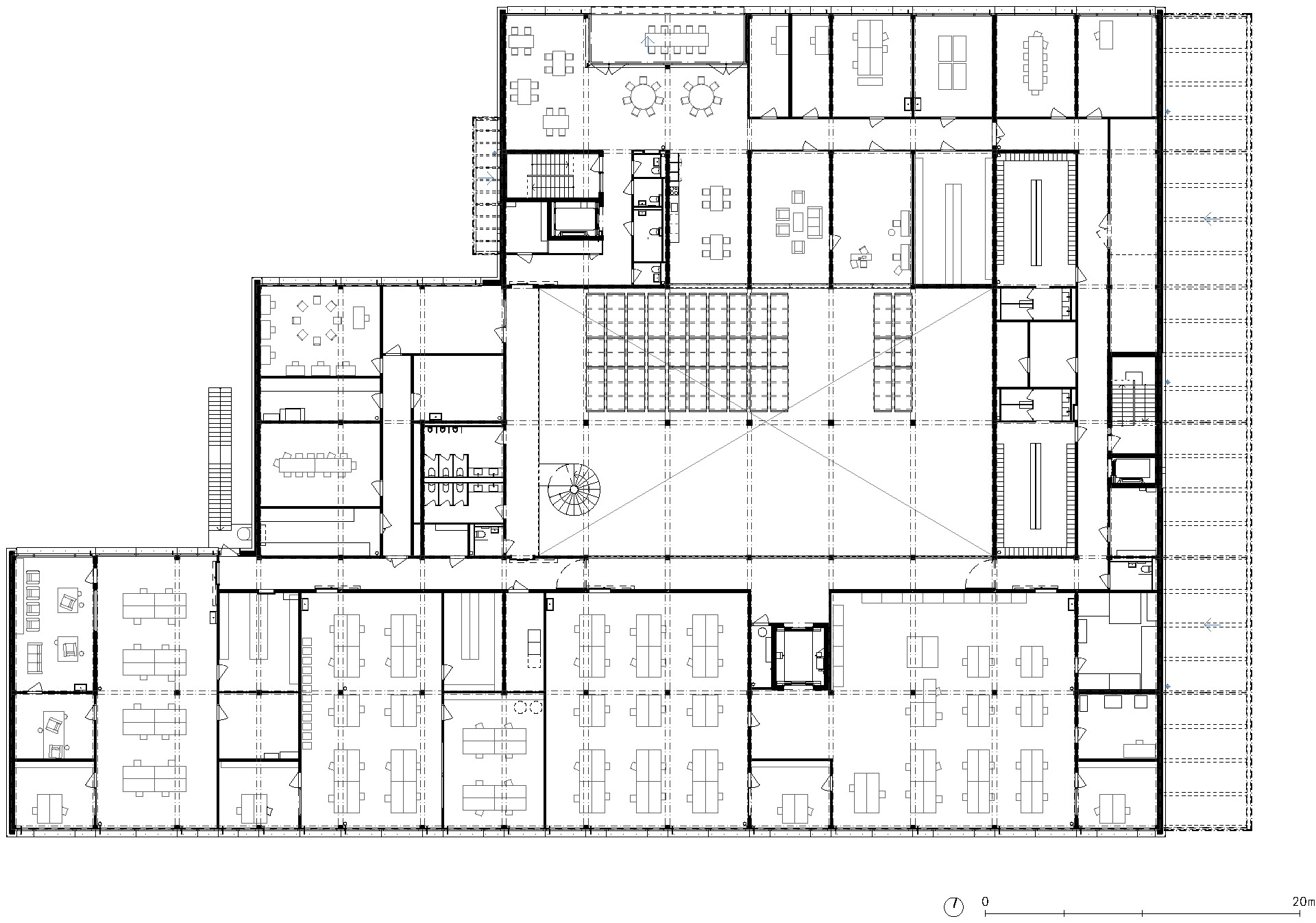
Das Ensemble gliedert sich in zwei Punkthäuser, die auf der Erd- und Untergeschossebene zusammengeführt sind. Im Erdgeschoss liegen die gemeinschaftlich genutzten Bereiche: Speisesaal mit Gastroküche, Cafeteria und Verwaltung. Eichenholzeinbauten, sichtbare Akustikelemente und geschliffene Hartbetonböden erzeugen eine Atmosphäre, die Funktionalität und Wohnlichkeit verbindet. Die Wohnbereiche in den Obergeschossen setzen auf offene, umlaufende Raumfolgen. Ess- und Aufenthaltsbereiche sind integraler Bestandteil der Organisation und fördern alltägliche Formen des Zusammenlebens. Warme Farbtöne sowie sichtbare Holz- und Betonoberflächen prägen die ruhige, wohnliche Gestaltung.


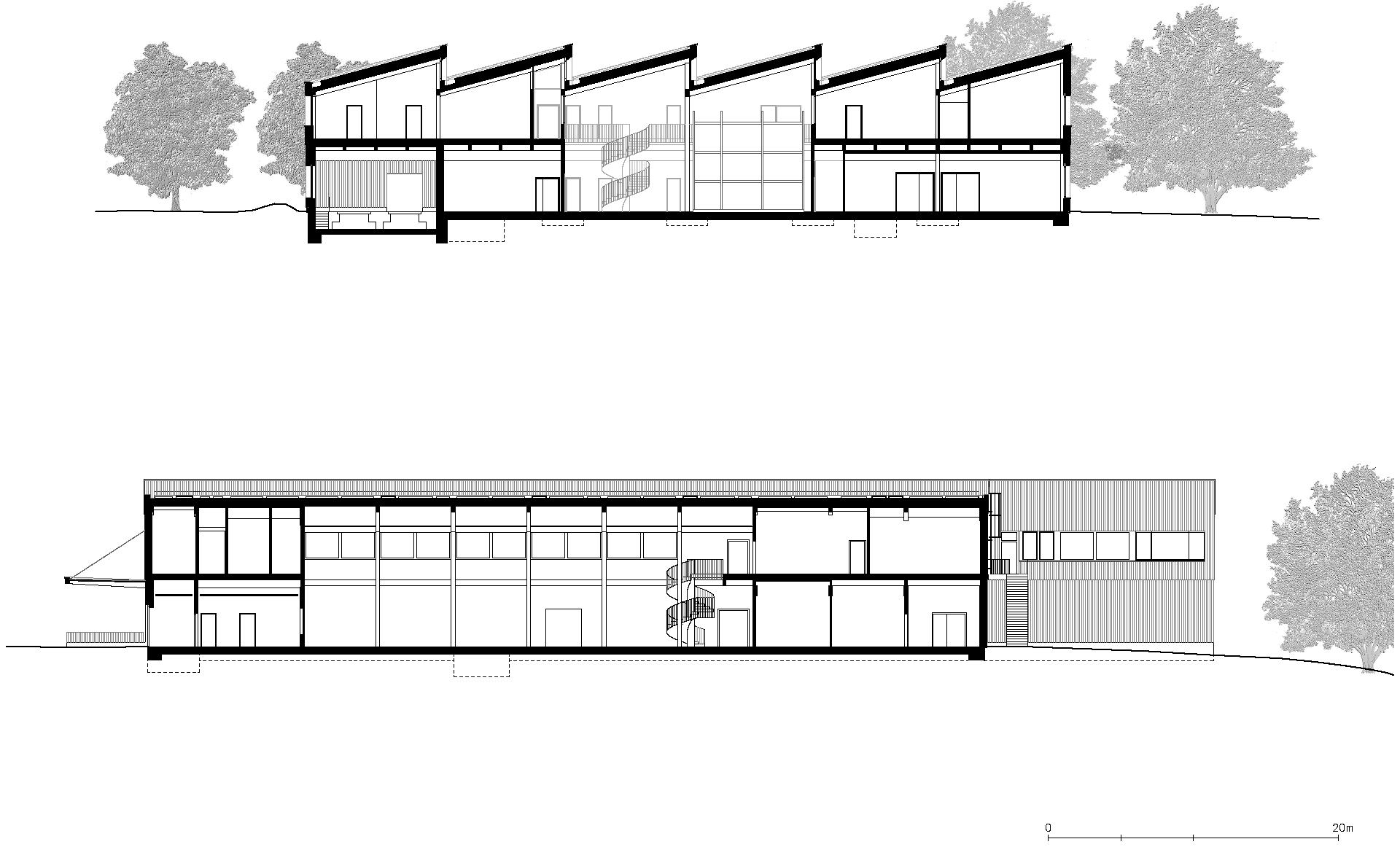
Sheddächer bringen gleichmäßiges Tageslicht in das Werkstattgebäude. © Karina Castro
Genossenschaftlich organisiert
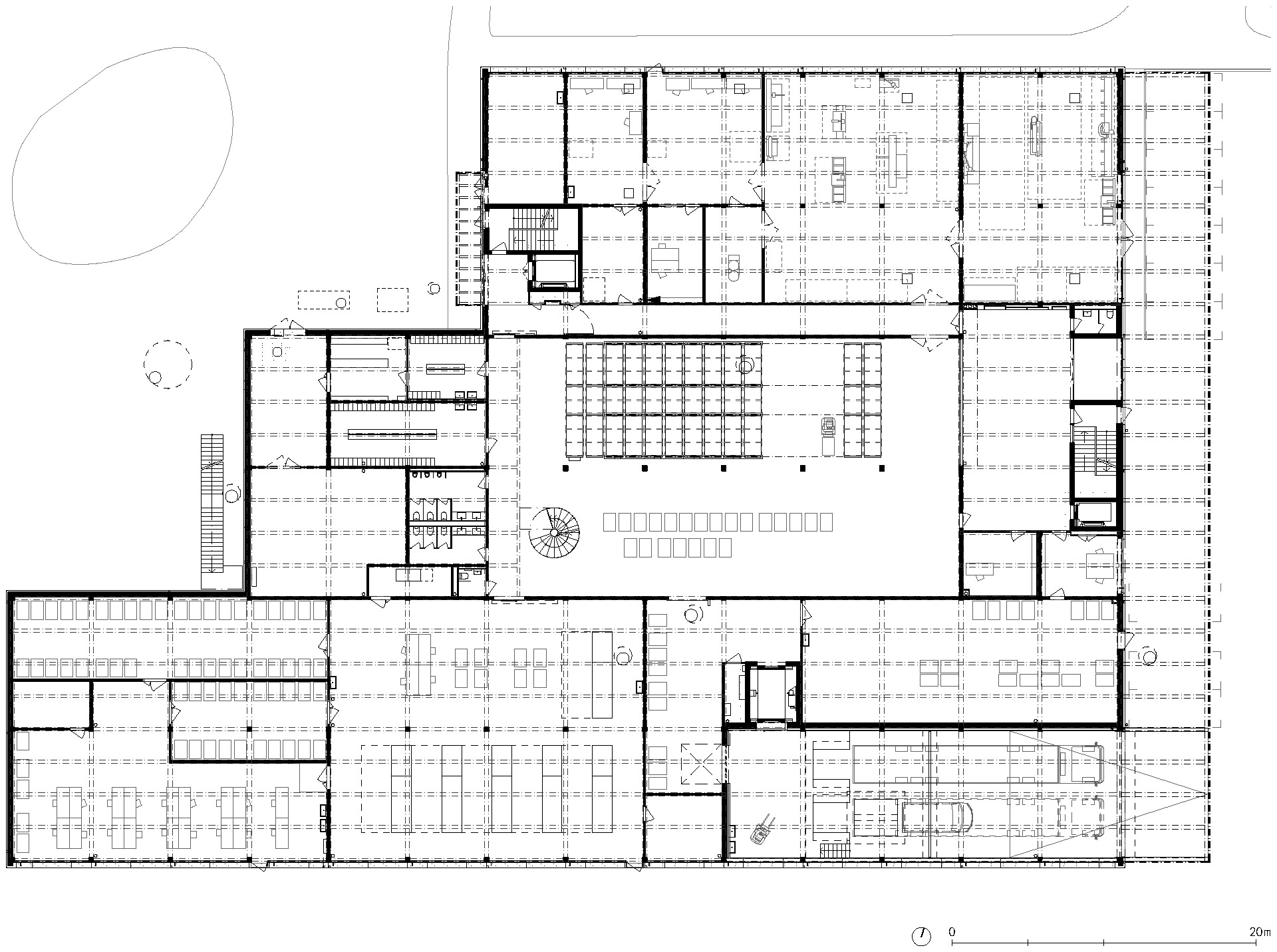
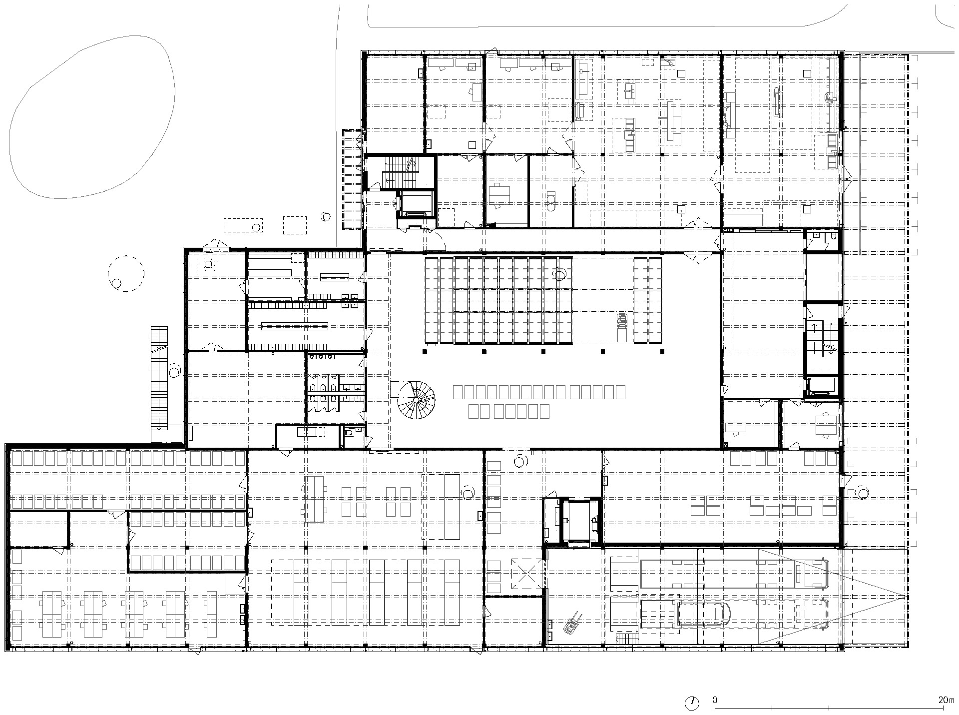
Die Arbeits- und Wohngemeinschaft Borna ist genossenschaftlich organisiert. Das Werkstattgebäude ist ein zweigeschossiger Holzbau mit klarer Funktionsstruktur. Im Zentrum liegt eine doppelgeschossige Lagerhalle. Sie dient als räumliches Bindeglied zwischen den verschiedenen Werkstattbereichen, darunter eine große Schreinerei. Das Sheddach bringt gleichmäßiges Tageslicht ins Gebäude und dient zugleich als Träger für eine weitläufige Photovoltaikanlage.


Die doppelgeschossige Lagerhalle bildet das Bindeglied zwischen den einzelnen Werkstattbereichen. © Karina Castro
Robuste Materialien, klare Raumfolgen
Im Innenraum bestimmen ein Tragwerk aus Baubuche und die offen geführte Gebäudetechnik das Erscheinungsbild. Großzügige Fenster schaffen Blickbeziehungen, lassen Tageslicht tief in die Räume dringen und unterstützen zugleich die Übersichtlichkeit im Betreuungsalltag. Die Kombination aus robusten Materialien, klaren Raumfolgen und gezielten Öffnungen in der Fassade formt ein Arbeitsumfeld, das Funktionalität mit landschaftlicher Nähe verbindet.
Architektur: Malte Kloes Architekten
Bauherr: Genossenschaft Arbeits- und Wohngemeinschaft Borna
Standort: Gländstrasse 24, 4852 Rothrist (CH)
Baumanagement & Arge Generalplanung: Büro für Bauökonomie
Tragwerksplanung: Caprez Ingenieure
Landschaftsplanung: Andreas Geser Landschaftsarchitekten
HLKS-Planung: Grünberg Partner



























