Conversion of a rural building
Listed Two-Bay Barn Becomes Apartment Building
KO/OK Architektur carefully renovated a listed two-bay barn and converted it into a multi-family house. © Sebastian Schels
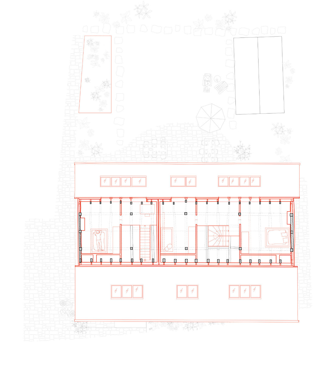
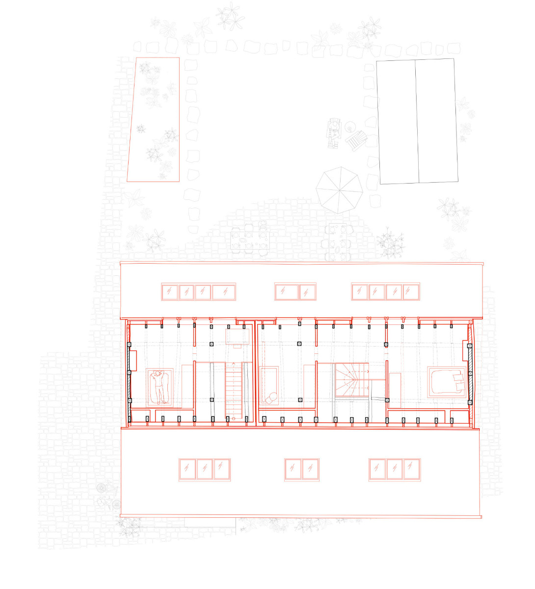
Many old agricultural buildings in the historic district of Tübingen-Derendingen are currently being renovated and converted into residential spaces. This includes a two-bay barn, built in 1806 and now a listed building. KO/OK Architektur has converted it into an apartment building comprising four residential units.


Looking back at the construction site: The entire barn had to be underpinned and rebuilt. © KO/OK Architektur


This is the barn before renovation began: It was built in 1806. © KO/OK Architektur
Careful renovation
One of the particular challenges for the team was finding a solution that would address the height of the building while also meeting the requirements for listed buildings, such as fire protection, building physics and construction technology. The entire barn had to be underpinned and re-founded. As far as possible, the building envelope with its agricultural character has been preserved. Large windows have now been installed where the barn doors used to be. These are covered with vertically mounted natural wooden slats.


The facade of the barn has been preserved almost untouched. © Sebastian Schels
Wide range of materials: wood, clay and lime
The wooden supporting structure and the three-storey roof truss were exposed following the reinforcement work. Much of the wood found on site, which came from a former wagon factory, was used for the renovation. KO/OK Architektur thus achieved a restoration that is simple and true to the original construction period. New elements were added using local softwoods. Clay bricks were used for the infill only where absolutely necessary. The old and new infill panels are finished on the outside with hemp-lime plaster and no further coating.


A purple kitchen provides an exciting contrast to the calm, wood-dominated interior design. © Sebastian Schels


A wooden staircase extends across the two-storey living areas. © Sebastian Schels
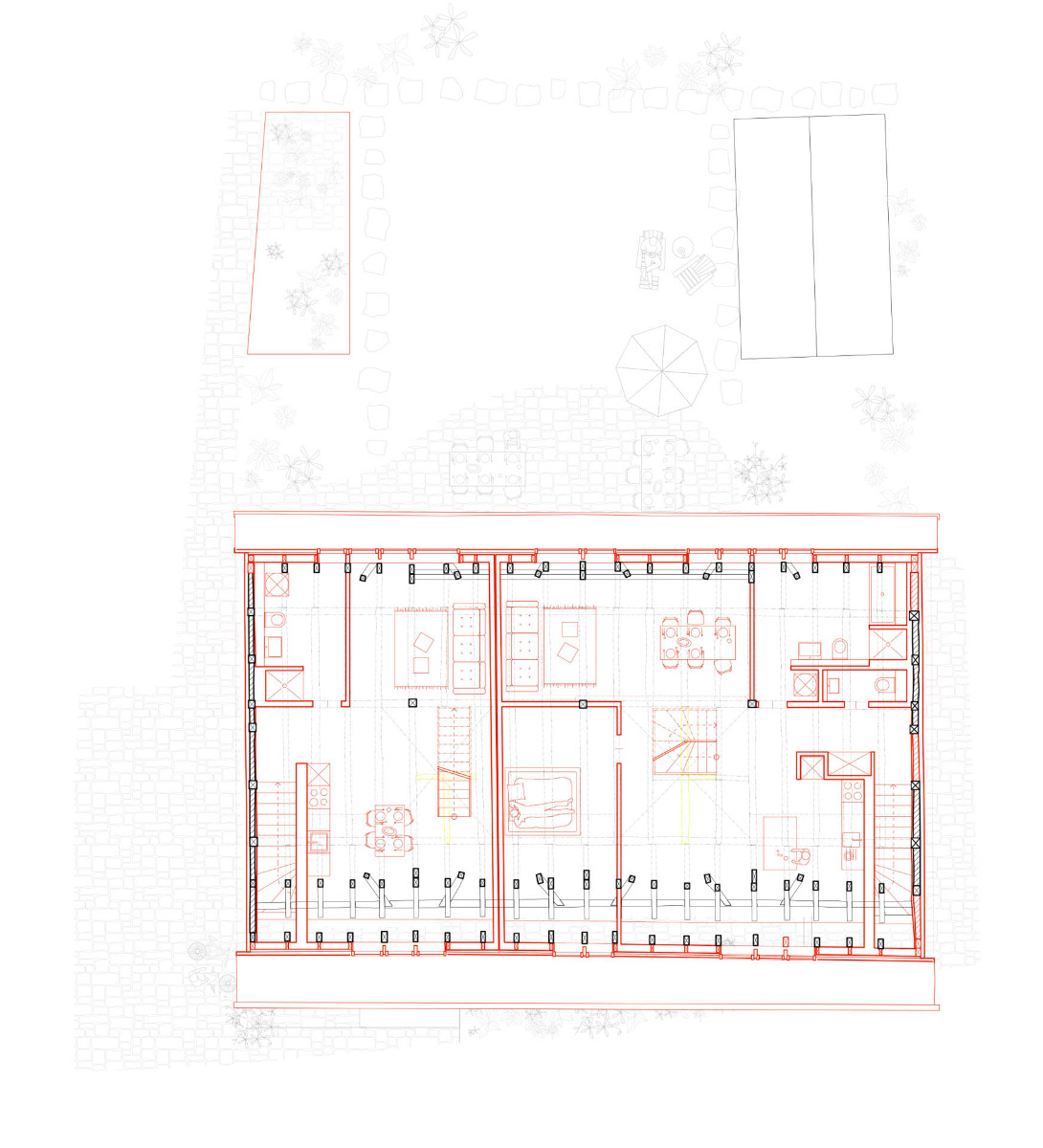
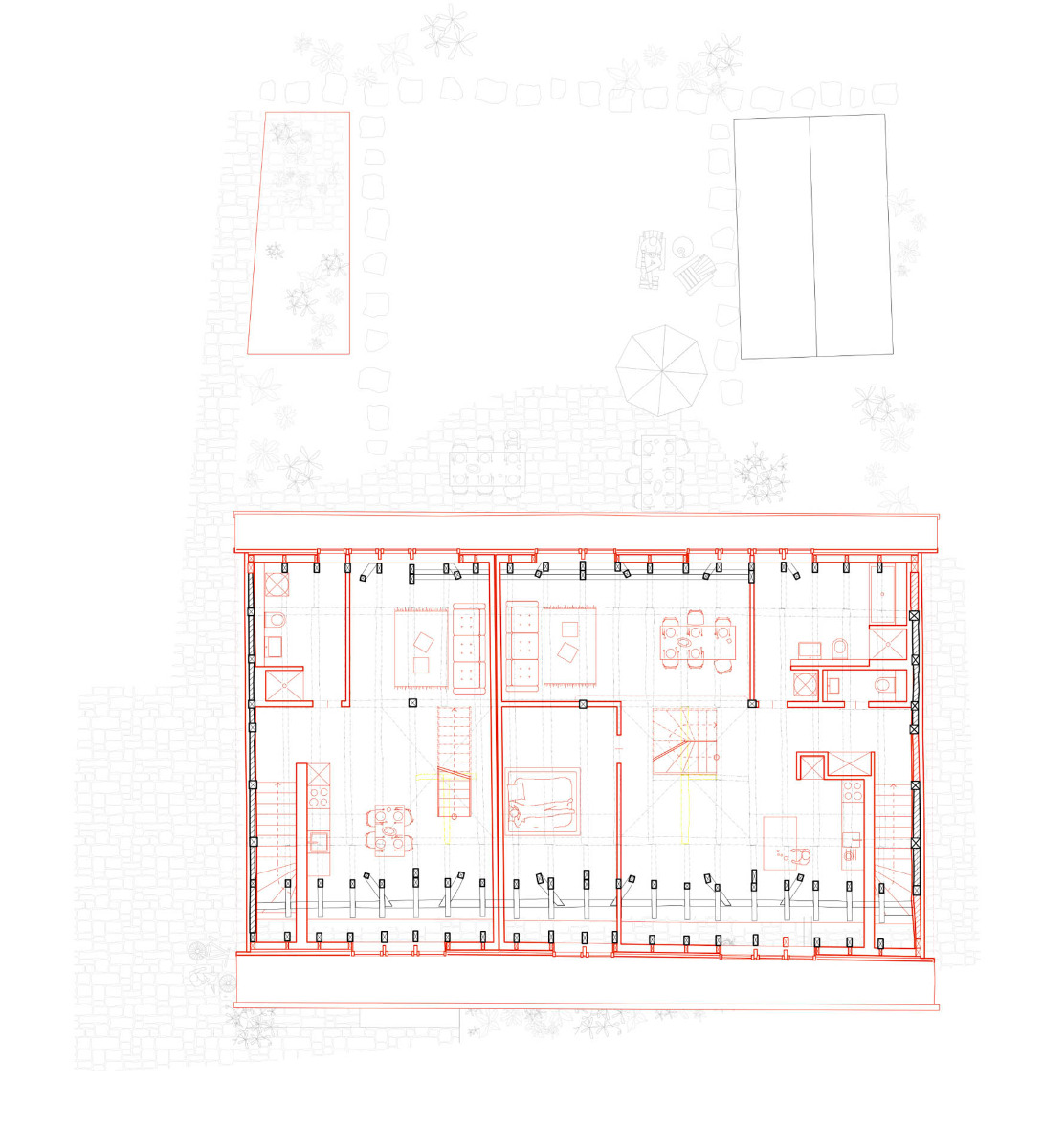
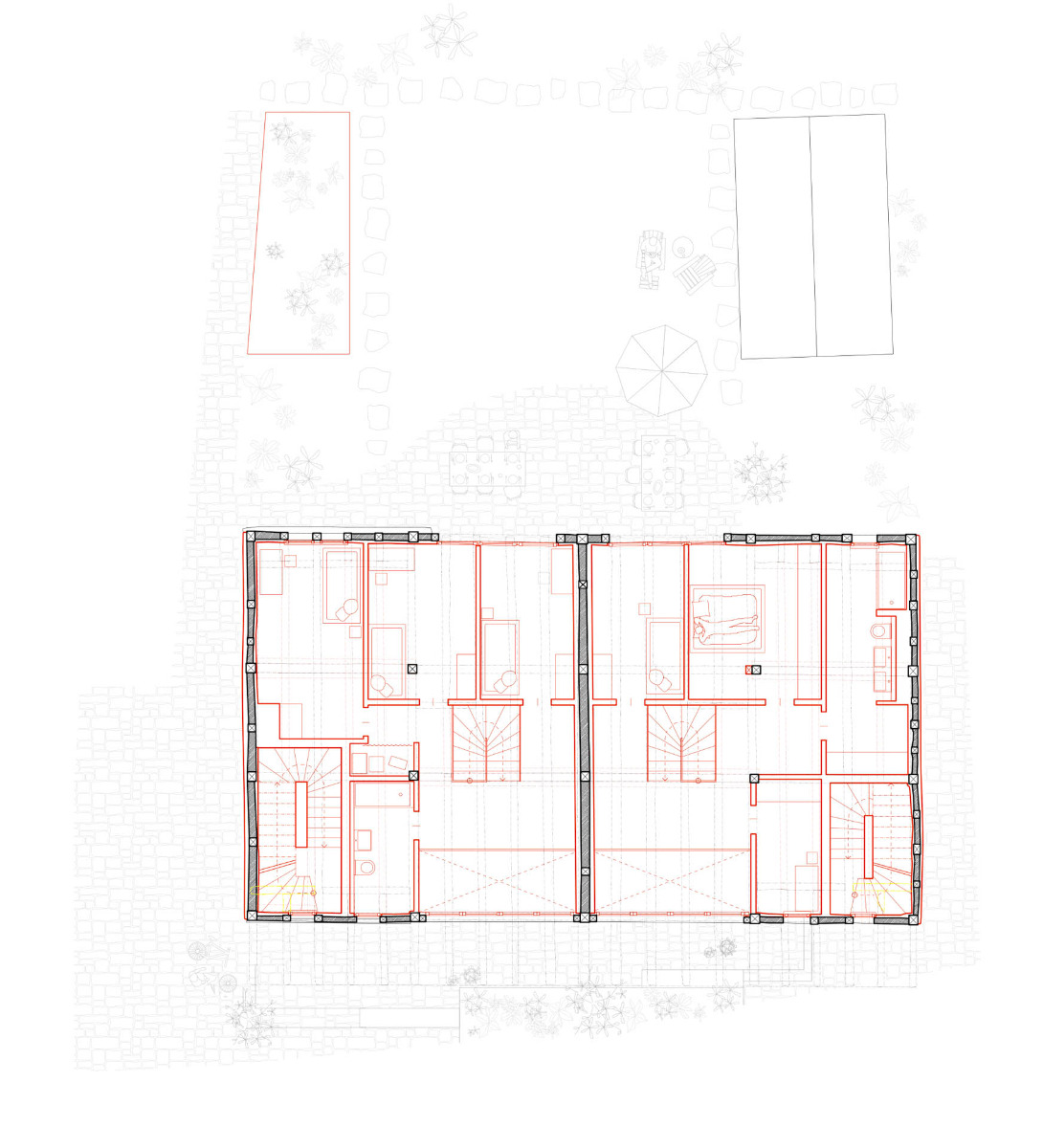
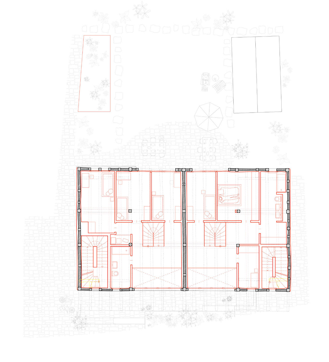
New living spaces
The new residential units can be accessed via the former stable doors. The four ground- and top-floor apartments are characterised by high ceilings and wooden galleries. The former threshing floors now comprise two storeys. A wooden staircase extends across the double-height living areas. On the ground floor, it serves as multifunctional furniture, while in the attic it is an airy design feature. The interior walls are covered in lime insulating plaster. Although the double barn has been realised as an “Efficiency House Monument”, KO/OK Architektur has refrained from using high-tech solutions. The materials used have a high diffusion openness and sorption capacity, ensuring a pleasant indoor climate.
Architecture: KO/OK Architektur
Client: private
Location: Tübingen (DE)
Structural engineering: Felix Mildner Tragwerksplanung
Energy consulting for listed buildings: Dipl.-Ing. Verena Klar




















