Umnutzung von ländlichem Bestand
Denkmalgeschützte Doppelscheune wird Mehrfamilienhaus
KO/OK Architektur haben eine denkmalgeschützte Doppelscheune behutsam saniert und zu einem Mehrfamilienhaus umgebaut. © Sebastian Schels
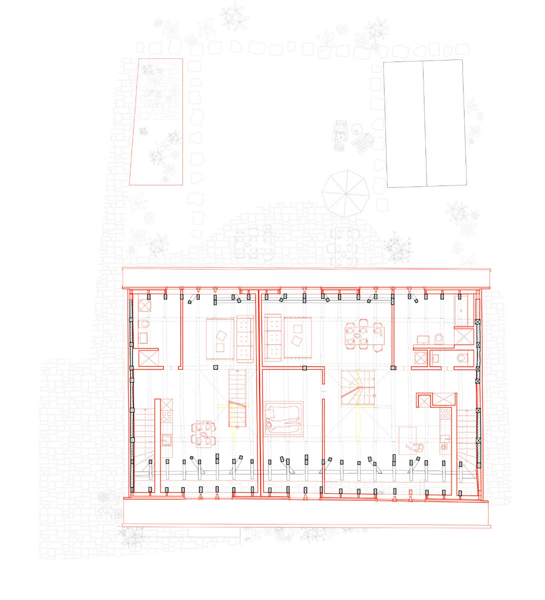
Im Südwesten von Tübingen, im historisch gewachsenen Ortsteil Tübingen-Derendingen, wird derzeit viel landwirtschaftlicher Altbestand saniert und für Wohnraum umgenutzt. So auch eine im Jahr 1806 errichtete, heute denkmalgeschützte Doppelscheune. KO/OK Architektur haben diese zu einem Mehrfamilienhaus mit vier Wohneinheiten umgenutzt.


Blick zurück auf die Baustelle: Die gesamte Scheune musste unterfangen und neu gegründet werden. © KO/OK Architektur


Die Doppelscheune vor Sanierungsbeginn: Sie wurde im Jahr 1806 errichtet. © KO/OK Architektur
Behutsame Sanierung
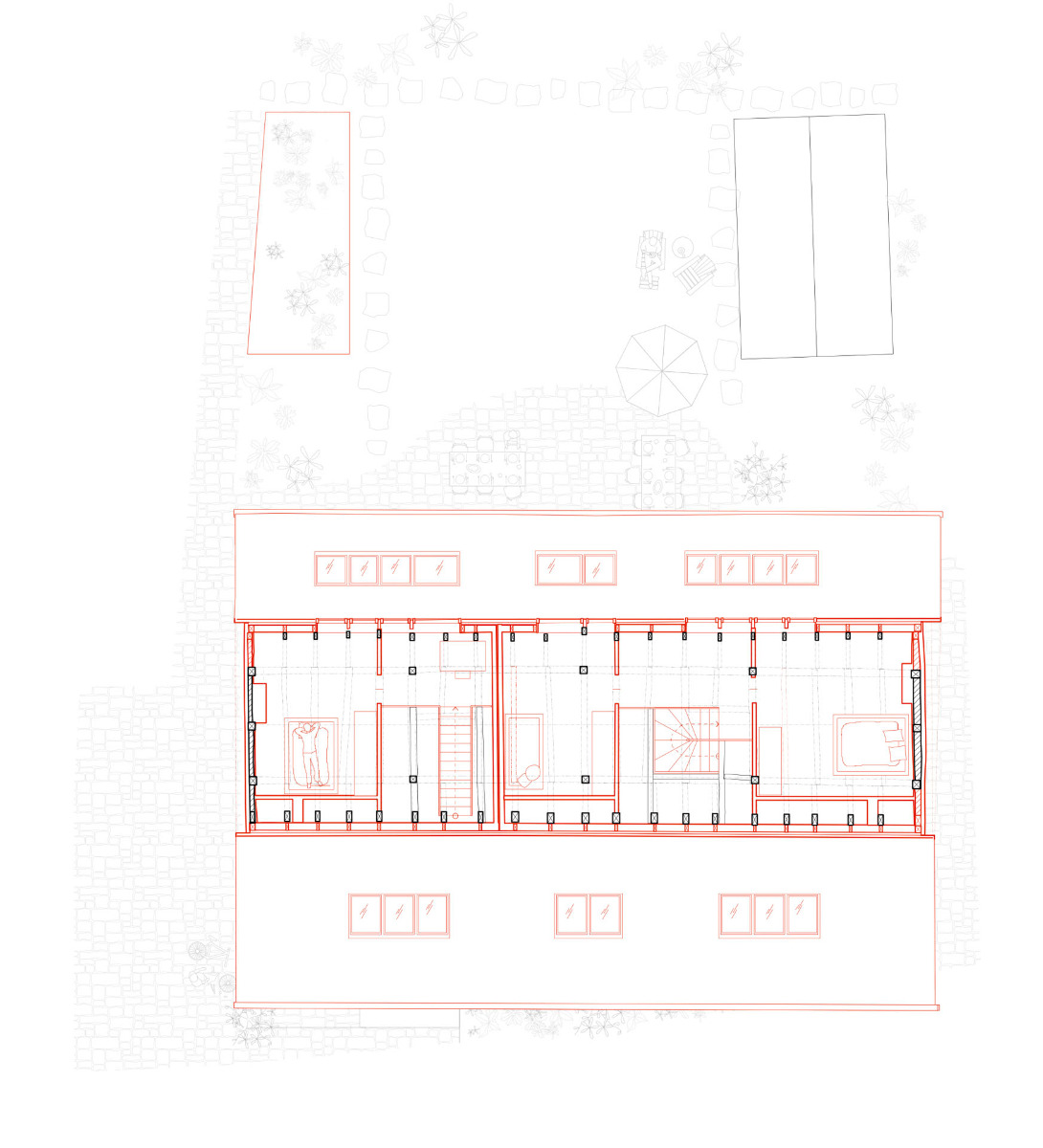
Eine besondere Herausforderung für das Team war es, eine Lösung für die Höhe des Gebäudes in Kombination mit den zu berücksichtigenden denkmalrelevanten Belangen wie Brandschutz, Bauphysik und Bautechnik zu finden. Die gesamte Scheune musste unterfangen und neu gegründet werden. Die Gebäudehülle mit ihrem landwirtschaftlichen Charakter ist weitestgehend unberührt erhalten. Im Bereich der ehemaligen Scheunentore sind nun große Fensterfronten eingelassen. Diese sind mit senkrecht angebrachten, naturbelassenen Holzlamellen verdeckt.


Die Fassade der Doppelscheune konnte fast unberührt erhalten bleiben. © Sebastian Schels
Vielfältige Materialwahl: Holz, Lehm, Kalk
Das hölzerne Tragwerk und der dreigeschossige Dachstuhl sind nach Festigungsarbeiten freigelegt. Für die Sanierung kamen viele der vor Ort vorgefundenen Hölzer einer ehemaligen Wagnerei zum Einsatz. So haben KO/OK Architektur erreicht, dass der Bestand auf eine einfache und der ursprünglichen Bauzeit angemessenen Bauweise restauriert wurde. Neues ist aus einheimischen Nadelhölzern ergänzt. Lehmsteine komplettieren die Gefache nur dort, wo es unbedingt nötig gewesen ist. Die alten und neuen Gefachfüllungen sind an der Außenseite mit einem Hanf-Kalkputz ohne weitere Beschichtung versehen.


Eine lilafarbene Küche bildet einen spannenden Kontrast zur eher ruhigen, von Holz geprägten Innenraumgestaltung. © Sebastian Schels


Eine Holztreppe erstreckt sich über die jeweils doppelgeschossigen Wohnbereiche. © Sebastian Schels
Neue Wohnräume
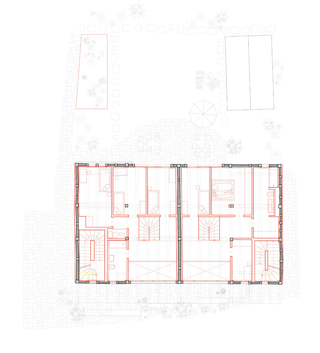
Durch die ehemaligen Stalltüren lassen sich die neuen Wohnungseinheiten betreten. Überhohe Aufenthaltsbereiche mit eingestellten, hölzernen Emporen charakterisieren die vier Wohnungen im Erd- und Dachgeschoss. Die ehemaligen Tennen sind nun zweigeschossig angelegt. Eine Holztreppe erstreckt sich über die jeweils doppelgeschossigen Wohnbereiche. Sie dient im Erdgeschoss als multifunktionales Möbelstück und im Dachgeschoss als luftiges Gestaltungselement. An den Wänden im Innenraum kam ein Kalk-Dämmputz zum Einsatz. Die Doppelscheune ist als „Effizienzhaus Denkmal“ realisiert, dennoch haben KO/OK Architektur auf eine hohe Technisierung verzichtet. Für ein angenehmes Raumklima sorgen die Diffusionsoffenheit und Sorptionsfähigkeit der verwendeten Materialien.
Architektur: KO/OK Architektur
Bauherr: privat
Standort: Tübingen (DE)
Tragwerksplanung: Felix Mildner Tragwerksplanung
Energieberatung Baudenkmal: Dipl.-Ing. Verena Klar




















