Residential building in an old barn
Dirnbergergut in Upper Austria by Moser und Hager
The residential building is designed with dark wooden facades, respecting the existing walls of the old barn. © Gregor Graf
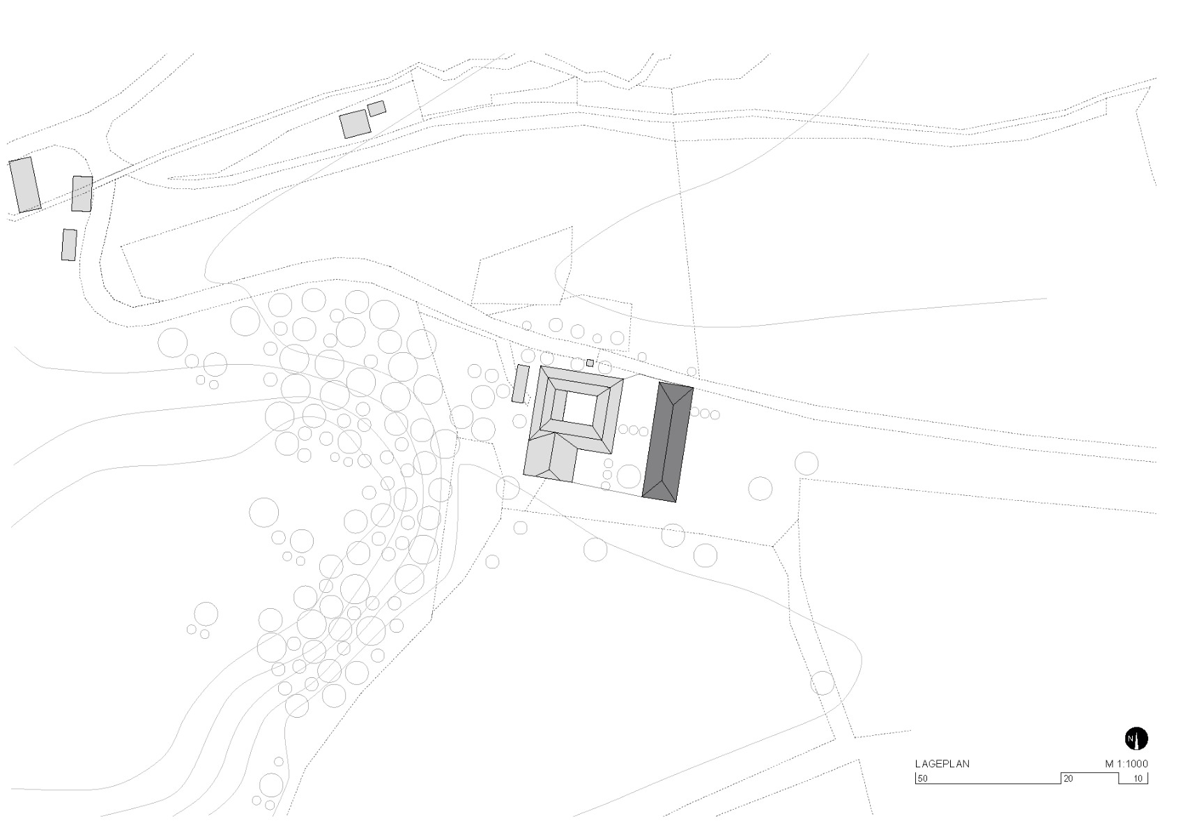
Upper Austria is full of square farms. By the middle of the 20th century, more than 10,000 huge farms had been built in this Austrian province. It is not unusual to find side lengths of 40, and sometimes even 60 m. The architectural firm Moser und Hager is currently converting one of these farms, the Dirnbergergut, into a building where people of all ages can live. The idea was to build three new homes on the site, and the old inn, which had been closed for years, was going to be turned into an art and cultural facility. First, though, the architects turned their attention to the separate barn. Since the 1970s, it had first been used as a pigsty and then rented out to other people.


A spacious, covered terrace has been created on the south side of the old building. © Gregor Graf
Residential building with a generous amount of open space
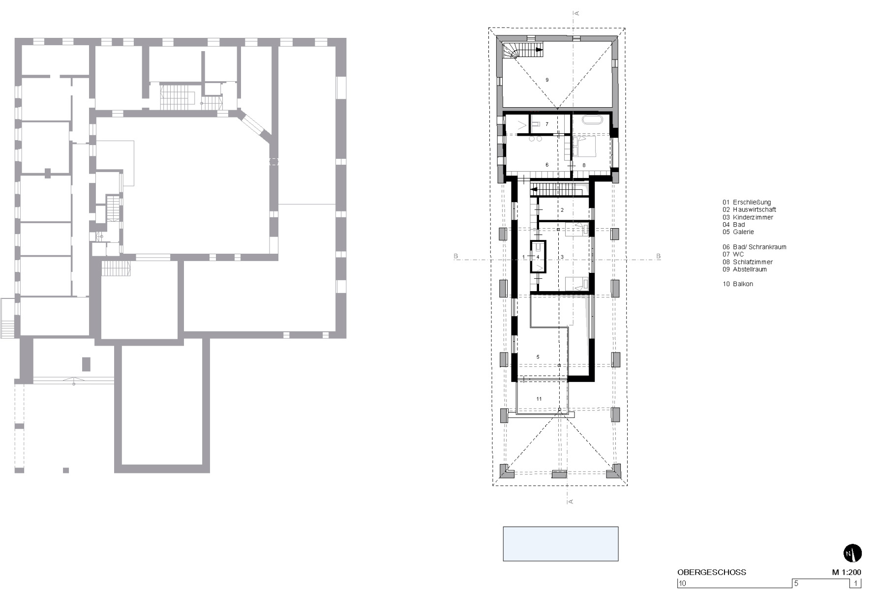
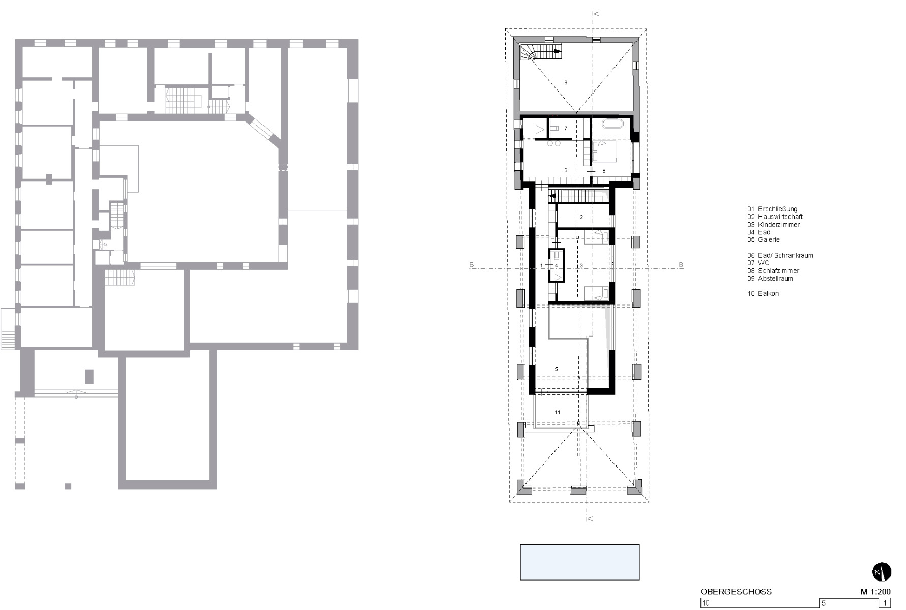
The building has now been converted into a spacious family home. The property offers over 250 m² of usable space, which can be efficiently accommodated within the confines of the original structure. This includes a garage on the north side and a separate, covered terrace on the south side. The architects took great care to expose the existing structure of the old building. The substantial brick pillars and the roof continue to characterise the conversion, with the two-storey house respectfully receding behind them. Its dark wooden facades create a striking contrast between old and new.


Within the residence, Moser und Hager have meticulously crafted an open-concept interior design, prioritising spaciousness and natural light. © Gregor Graf


The ground floor is divided into zones by only one built-in infrastructure block. © Gregor Graf
Open plan layout inside
Moser und Hager emphasised the importance of a gradual transition from inside to outside. The barn has been fitted with a new floor slab, which is set off from the brick pillars by surrounding joints. The concrete surface extends into the interior as exposed screed. The rooms there are largely open plan. The ground floor is divided only by a central infrastructure block. The upper floor, located above the living area, has been partially designed to serve as an open gallery. The property boasts ample covered open space, ideal for family gatherings. In addition, the house will feature a balcony on the south side, offering direct access to the outdoors from the upper floor.
You can find out more in Detail 11.2025 and in our Detail Inspiration database.
Architecture: Moser und Hager Architekten
Client: private
Location: Bezirk Perg (AT)
Structural engineering: Schindelar


















