Wohnhaus in alter Tenne
Dirnbergergut in Oberösterreich von Moser und Hager
Mit seinen dunklen Holzfassaden tritt das Wohnhaus respektvoll hinter die Bestandsmauern der alten Tenne zurück. © Gregor Graf
Oberösterreich ist das Land der Vierkanthöfe. Bis Mitte des 20. Jahrhunderts entstanden in dem österreichischen Bundesland mehr als 10 000 Höfe mit stattlichen Abmessungen. 40, manchmal 60 m Seitenlänge sind keine Seltenheit. Einen dieser Höfe, das Dirnbergergut, baut das Architekturbüro Moser und Hager derzeit zum Mehrgenerationenwohnhaus um. Insgesamt drei Wohneinheiten sollten auf dem Anwesen entstehen und auch der ehemalige, längst stillgelegte Gasthof als Kunst- und Kultureinrichtung neu genutzt werden. Zunächst jedoch nahmen sich die Architekten der separat stehenden Tenne an. Sie diente seit den 1970er-Jahren zunächst als Schweinestall und war anschließend fremd vermietet worden.
Mehr dazu in Detail 11.2025 sowie in unserer Datenbank Detail Inspiration.


Im Süden des Altbaus ist eine großzügige, überdachte Terrasse entstanden. © Gregor Graf
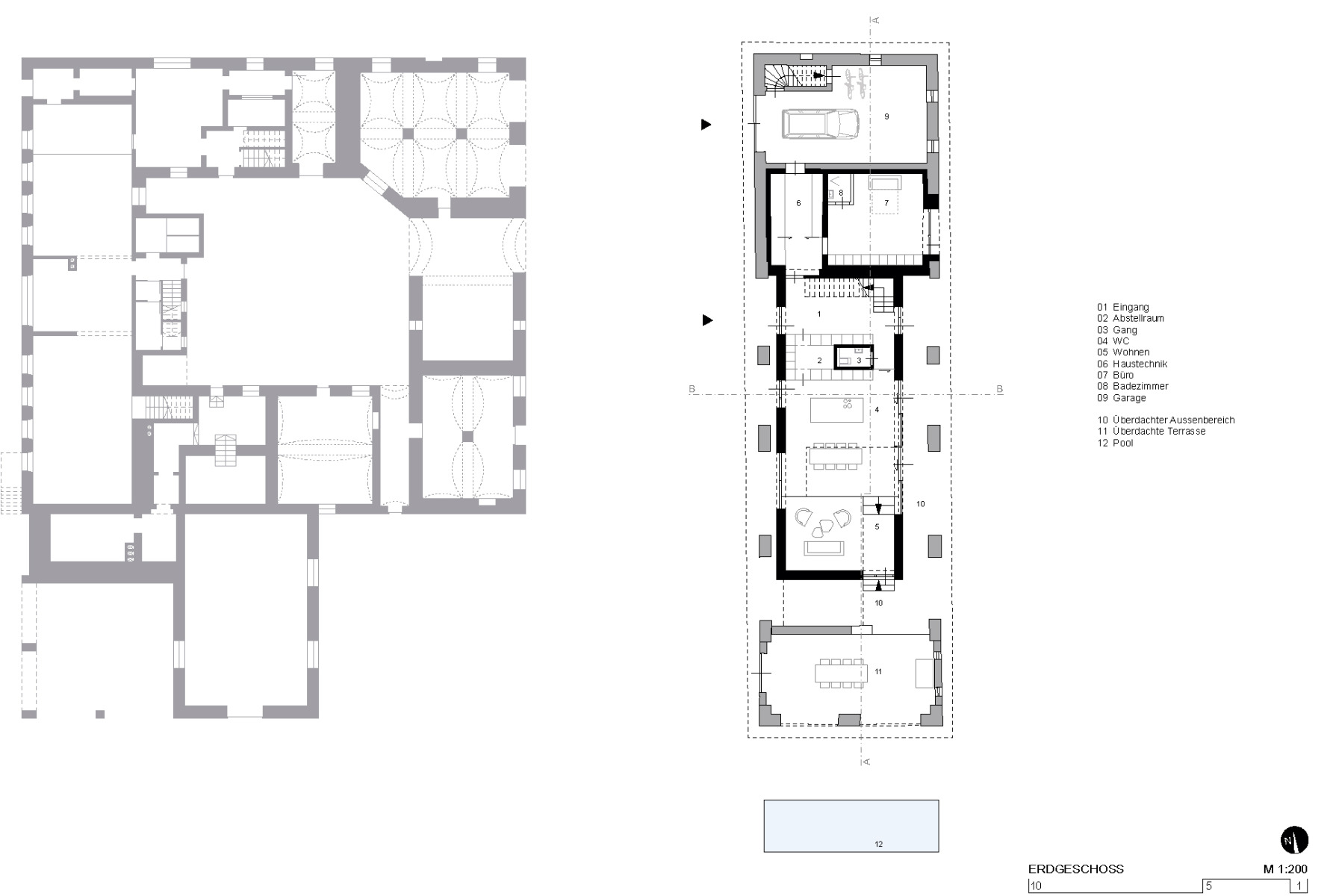
Wohnhaus mit reichlich Freiraum
Jetzt ist in dem Gebäude ein großzügiges Haus für eine Familie mit Kindern entstanden. Seine mehr als 250 m² Nutzfläche haben zwischen den alten Mauern problemlos Platz – einschließlich einer Garage auf der Nordseite und einer separaten, überdachten Terrasse im Süden. Die Architekten achteten darauf, die Bestandsstruktur des Altbaus freizustellen. Die massiven Ziegelpfeiler und das Dach prägen den Umbau nach wie vor, das zweistöckige Haus tritt respektvoll dahinter zurück. Seine dunklen Holzfassaden unterstreichen den Kontrast zwischen Alt und Neu.


Im Inneren des Hauses schufen Moser und Hager überwiegend offene Innenräume. © Gregor Graf


Nur ein eingestellter Infrastrukturblock zoniert das Erdgeschoss. © Gregor Graf
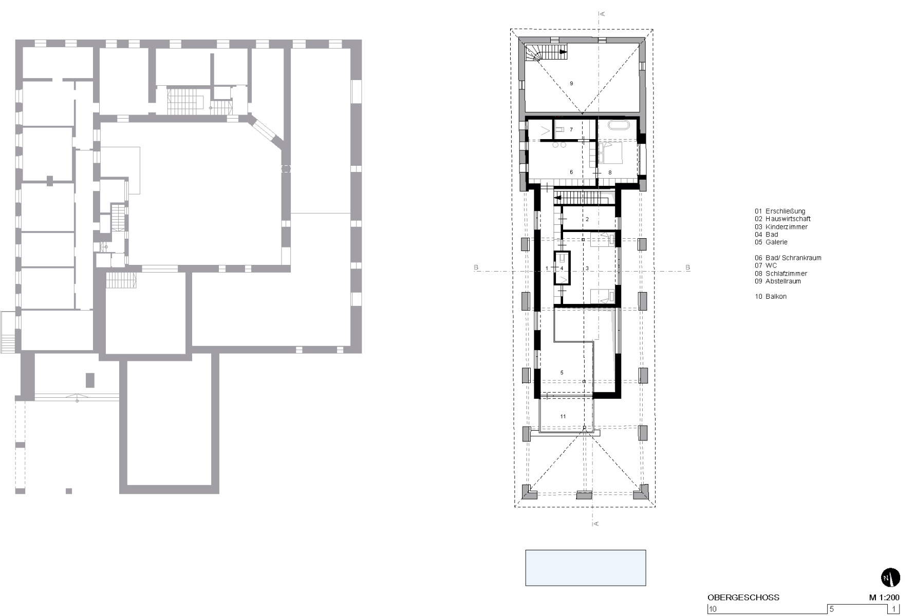
Offene Raumstruktur im Inneren
Besonderen Wert legten Moser und Hager auf den graduellen Übergang von innen nach außen. Die gesamte Scheune erhielt eine neue Bodenplatte, die mit umlaufenden Fugen von den Ziegelpfeilern abgesetzt ist. Ihre Betonoberfläche setzt sich im Innenraum als Sichtestrich fort. Dort sind die Räume weitgehend offen gehalten. Lediglich ein zentraler Infrastrukturblock gliedert im Erdgeschoss den Raum. Das Obergeschoss ist über dem Wohnraum teilweise als offene Galerie ausgeführt. Rund um das Haus gibt es reichlich überdachten Freiraum für die Familie. Im Süden soll das Haus künftig noch einen Balkon erhalten, sodass auch aus dem Obergeschoss ein direkter Zugang ins Freie möglich ist.
Architektur: Moser und Hager Architekten
Bauherr: privat
Standort: Bezirk Perg (AT)
Tragwerksplanung: Schindelar


















