Eye-catching colour and shape
Colourful Nursery in France by Dominique Coulon & Associés
The spacious and colorful main hallway is at the center of the room layout. © Eugeni Pons
Illzach is located in north-eastern France. On the outskirts of the town, Dominique Coulon has designed a new day care centre. With clean lines and a colourful design in shades of pink, orange and red, it blends harmoniously into the urban landscape while also standing out. The playful design of the new educational facility aims to promote the personal development of children and staff.
Main hallway as the centrepiece
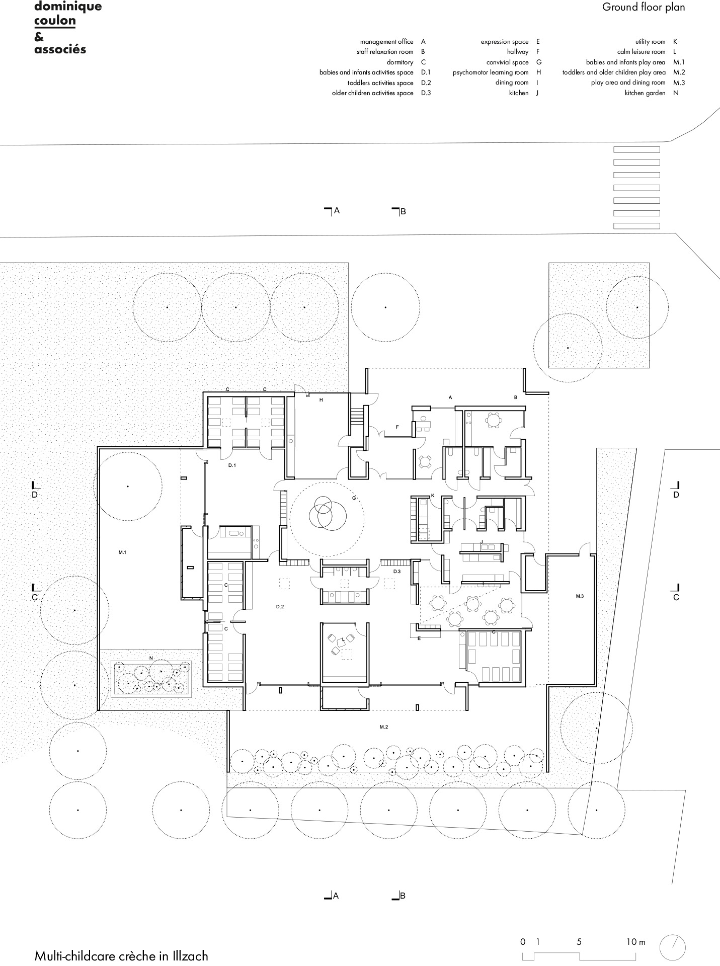
The spacious and colourful main corridor is at the heart of the room layout. By dispensing with additional corridors, a greater sense of openness and space has been created. As well as providing access to all rooms, the main corridor also offers a spatial experience. The red and orange circular areas come together to form a hollow, two-storey cylinder with round skylights. These provide the spacious hallway with natural light and an unobstructed view of the sky. The space radiates playfulness and warmth. Its spaciousness invites other uses, such as group performances and events.


The spacious, colourful main corridor forms the centrepiece of the room layout. © Eugeni Pons


Round skylights provide natural lighting and an unobstructed view of the sky. © Eugeni Pons
Einbettung in die Umgebung
The nursery appears to blend in gently with its surroundings. It is encircled by maple and cherry trees, as well as Japanese spirea shrubs. The forecourt, with its chestnut trees, invites visitors to linger, while the generous glazing in the entrance area allows a view of the interior. Large glass surfaces connect the various activity rooms with each other and the outdoor area. The sheltered green spaces act like open-air cocoons. They provide a sense of safety, as well as a place for encounters and tranquillity. Dominique Coulon & Associés have thus created a child-friendly environment that inspires a sense of well-being and security.


There is a protected outdoor area … © Eugeni Pons


… with a dynamic colour palette and geometric shapes. © Eugeni Pons
Unlike the neutral colours usually favoured by educational institutions, Dominique Coulon & Associés have made a bold statement by choosing a vibrant colour palette for the daycare centre in Illzach. Against the eye-catching backdrop of pink, orange and red, the white geometric shapes appear to float. This gives the building a striking presence on the street. Here, colour and form are not mere decorative elements, but are crucial to creating a warm atmosphere.
Further projects by Dominique Coulon in our database Detail Inspiration.
Architecture: Dominique Coulon & Associés
Location: Illzach (FR)
Structural engineering: Batiserf Ingénierie




















