// Check if the article Layout ?>
Fasting for the brain: Into the Wild Cabin
Foto: Jakub Skokan and Martin Tůma / BoysPlayNice
While studying in Ghent, Michiel De Backer, Jakub Senkowski and Martin Mikovčák began to develop Tiny Houses for various purposes, such as relaxation, living or working. Their wooden boxes can also be used as an extension for existing houses. To put the practicability of their designs to the test, the three architects have also built and tried them out.
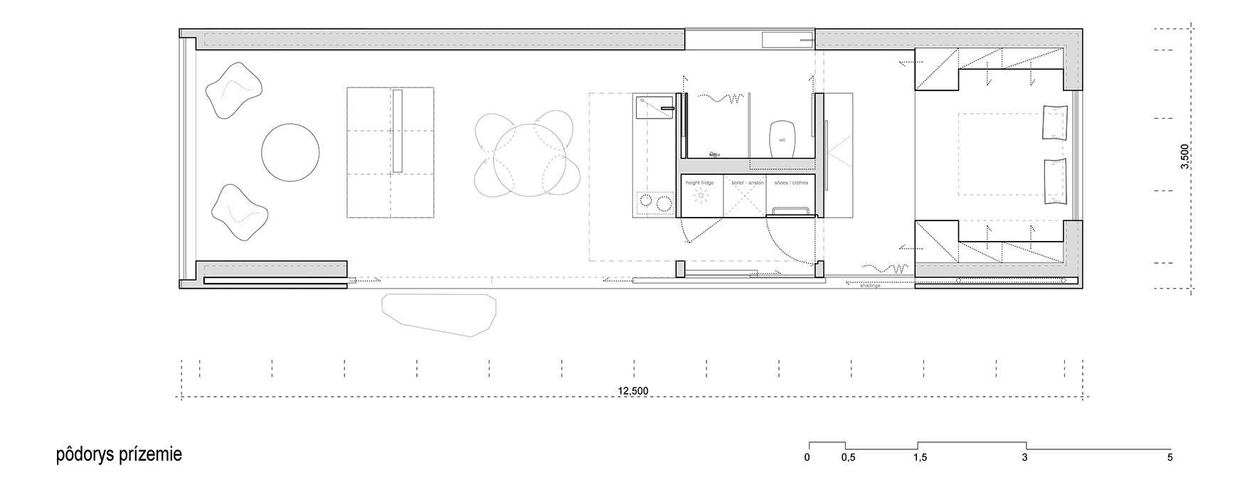
The 'Into the Wild Cabin' house is the latest development by Ark Shelter Studio. Large windows and a skylight, positioned above the central zone and set at an angle on the roof, enable a completely immersive experience of nature. A black multi-purpose block is the centrepiece of the building. Featuring five function zones such as an integrated kitchen, bathroom and storage space, it articulates the interior while leaving plenty of room for other activities in the rest of the house. A double bed is located on top of the cube-shaped block, above it the large skylight with its views of nature.
Despite being a mere 40 square metres in size, the house provides you everything you could need. In the rear area luxury is also on hand in the form of a jacuzzi, let into the floor below a further double bed that can be lifted by a powered mechanism to below the ceiling so that the jacuzzi can be used.
The mini-house is constructed of wood, which in addition to being sustainable above all provides the interior a pleasant atmosphere and a natural feel. Five large glazed openings at the sides of the building enable an all-round experience of nature. A rainwater collector and solar panels make the cabin self-sustaining, meaning it can be operated off the grid. In other words, it can be set down just about anywhere without impacting nature.
The 'Into the Wild Cabin' house is the latest development by Ark Shelter Studio. Large windows and a skylight, positioned above the central zone and set at an angle on the roof, enable a completely immersive experience of nature. A black multi-purpose block is the centrepiece of the building. Featuring five function zones such as an integrated kitchen, bathroom and storage space, it articulates the interior while leaving plenty of room for other activities in the rest of the house. A double bed is located on top of the cube-shaped block, above it the large skylight with its views of nature.
Despite being a mere 40 square metres in size, the house provides you everything you could need. In the rear area luxury is also on hand in the form of a jacuzzi, let into the floor below a further double bed that can be lifted by a powered mechanism to below the ceiling so that the jacuzzi can be used.
The mini-house is constructed of wood, which in addition to being sustainable above all provides the interior a pleasant atmosphere and a natural feel. Five large glazed openings at the sides of the building enable an all-round experience of nature. A rainwater collector and solar panels make the cabin self-sustaining, meaning it can be operated off the grid. In other words, it can be set down just about anywhere without impacting nature.
















