// Check if the article Layout ?>
Heilfasten für den Kopf: »Into the Wild Cabin«
Foto: Jakub Skokan and Martin Tůma / BoysPlayNice
Während ihres Studiums in Gent fingen Michiel De Backer, Jakub Senkowski und Martin Mikovčák an, Tiny Houses für verschiedene Nutzungen zu entwickeln. Diese sind beispielsweise zum Entspannen, Wohnen oder Arbeiten gedacht. Aber auch als Erweiterung für bestehende Häuser können die Holzboxen genutzt werden. Um die Praktikabilität zu überprüfen, haben die drei Architekten ihre Entwürfe gebaut und getestet.
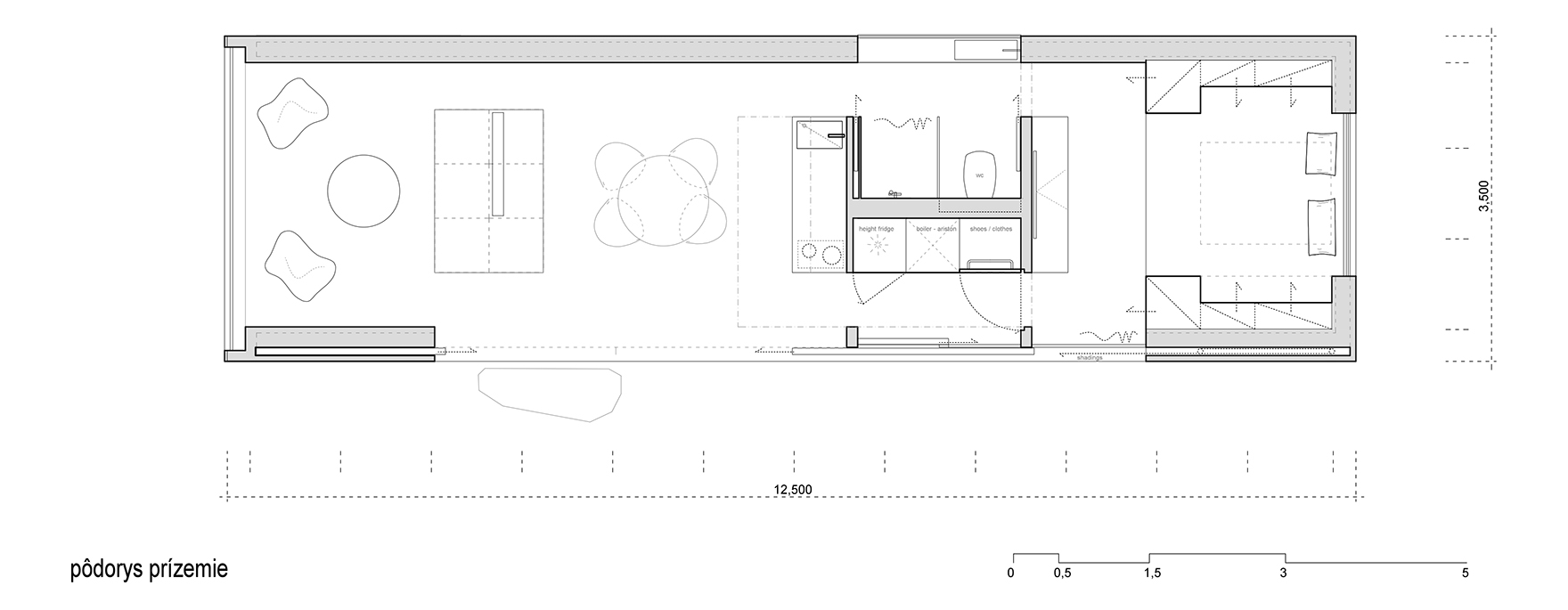
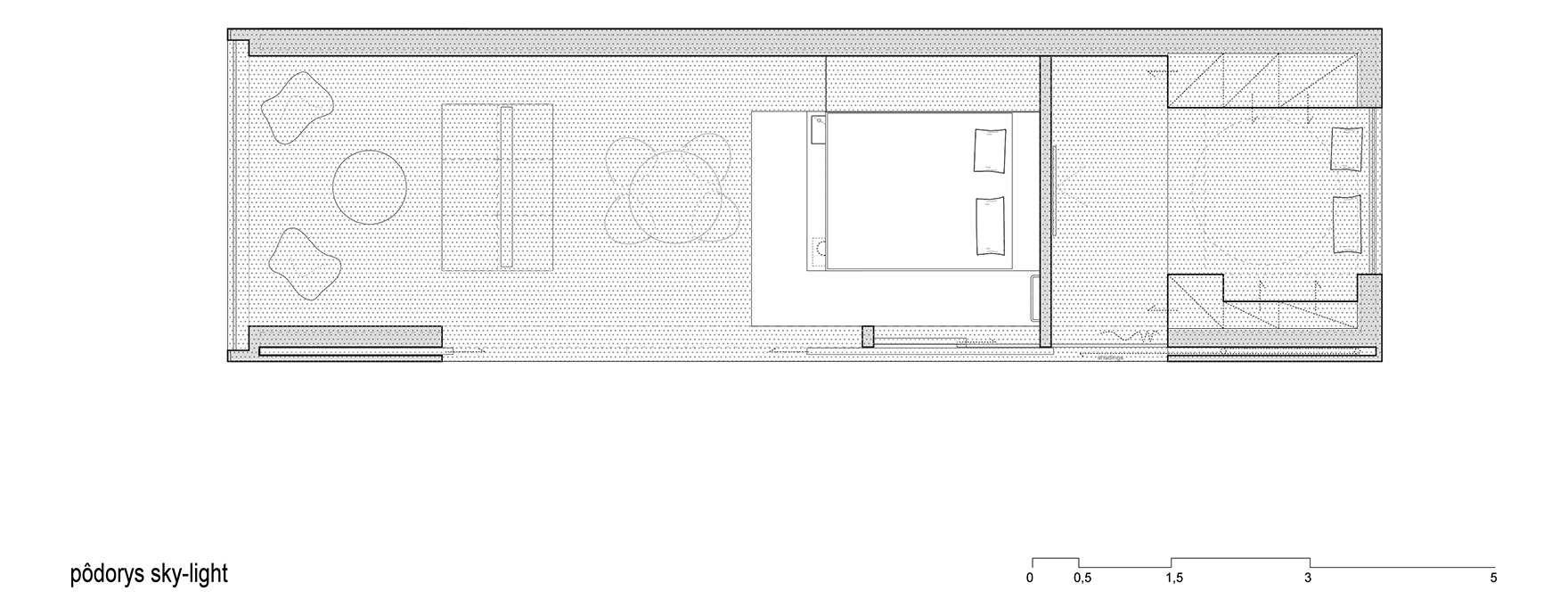
Die neuste Entwicklung von Ark Shelter Studio ist »Into the Wild Cabin«. Große Fenster und ein schräg aufgesetztes Oberlicht über der Mittelzone vermitteln das Gefühl, vollkommen in die Natur einzutauchen.
Ein schwarzer Multifunktionsblock bildet das Herzstück des Hauses. Mit fünf Funktionszonen wie integrierter Küche, Badezimmer und Stauraum gliedert und schafft er großzügige Aufenthaltsflächen im Rest des Hauses. Auf dem Kubus befindet sich ein weiteres Doppelbett – mit großem Dachfenster und Blick in die Natur.
Trotzdem ist auf den 40 m² alles vorhanden, was man braucht: Luxus bietet ein Whirlpool, der sich unter dem zweiten Doppelbett im hinteren Bereich befindet. Dieses kann durch eine Automatik an die Decke gefahren werden, um den Whirlpool im Boden zu nutzen.
Das Minihaus ist aus Holz gefertigt, was nachhaltig ist, aber vor allem eine angenehme und naturnahe Atmosphäre im Inneren schafft. Fünf große, teilweise öffenbare Verglasungen an jeder Seite sorgen für ein umfassendes Naturerlebnis. Durch Regenwasserkollektor und Solarzellen ist das Haus unabhängig und kann autark genutzt werden. So kann man es fast überall platzieren, ohne die Natur zu beeinträchtigen.
Die neuste Entwicklung von Ark Shelter Studio ist »Into the Wild Cabin«. Große Fenster und ein schräg aufgesetztes Oberlicht über der Mittelzone vermitteln das Gefühl, vollkommen in die Natur einzutauchen.
Ein schwarzer Multifunktionsblock bildet das Herzstück des Hauses. Mit fünf Funktionszonen wie integrierter Küche, Badezimmer und Stauraum gliedert und schafft er großzügige Aufenthaltsflächen im Rest des Hauses. Auf dem Kubus befindet sich ein weiteres Doppelbett – mit großem Dachfenster und Blick in die Natur.
Trotzdem ist auf den 40 m² alles vorhanden, was man braucht: Luxus bietet ein Whirlpool, der sich unter dem zweiten Doppelbett im hinteren Bereich befindet. Dieses kann durch eine Automatik an die Decke gefahren werden, um den Whirlpool im Boden zu nutzen.
Das Minihaus ist aus Holz gefertigt, was nachhaltig ist, aber vor allem eine angenehme und naturnahe Atmosphäre im Inneren schafft. Fünf große, teilweise öffenbare Verglasungen an jeder Seite sorgen für ein umfassendes Naturerlebnis. Durch Regenwasserkollektor und Solarzellen ist das Haus unabhängig und kann autark genutzt werden. So kann man es fast überall platzieren, ohne die Natur zu beeinträchtigen.
















