A refuge for those in need of protection
Women’s Shelter and Day Centre for Homeless Women in Barcelona
CPVA Arquitectos realise a women's shelter and day centre for homeless people in Barcelona. © Simón García
The socialist government may no longer be in power in Barcelona, but the city is still home to many social projects. This sensitive building by CPVA Arquitectes will offer sanctuary to society’s most vulnerable: women threatened by violence or facing homelessness.


Interior view of a temporary flat for people seeking protection, © Simón García
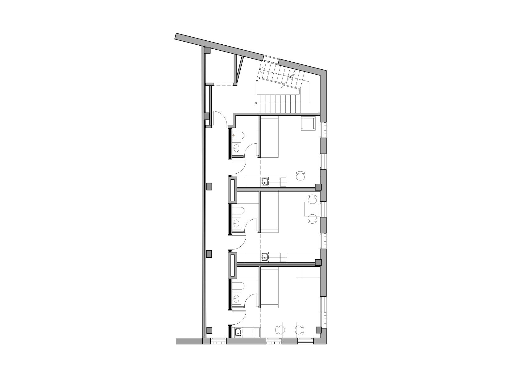
Temporary flats for people seeking protection
Those in need of protection are accommodated in two separate buildings: the temporary microapartments for the women are in the northern part. The apartments do not have much space; however, everything is provided: a bed, an easy chair, a small desk and a kitchenette. Women who want company can gather in the lounge on the ground floor. Strict access controls protect the women from unwelcome visits from men.


The facades are designed with sustainable eco clinker brick. © Simón García


Horizontal aluminium profiles in yellow give rhythm to the facades. © Simón García
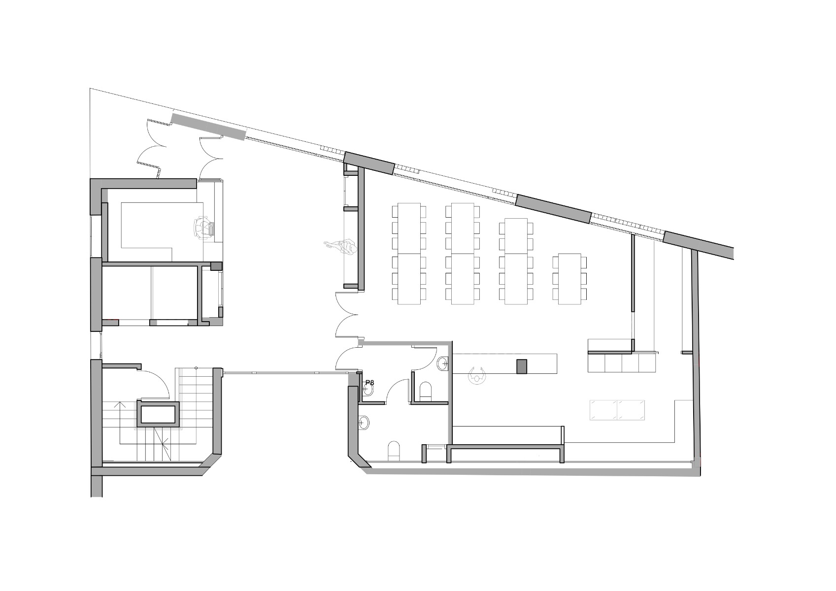
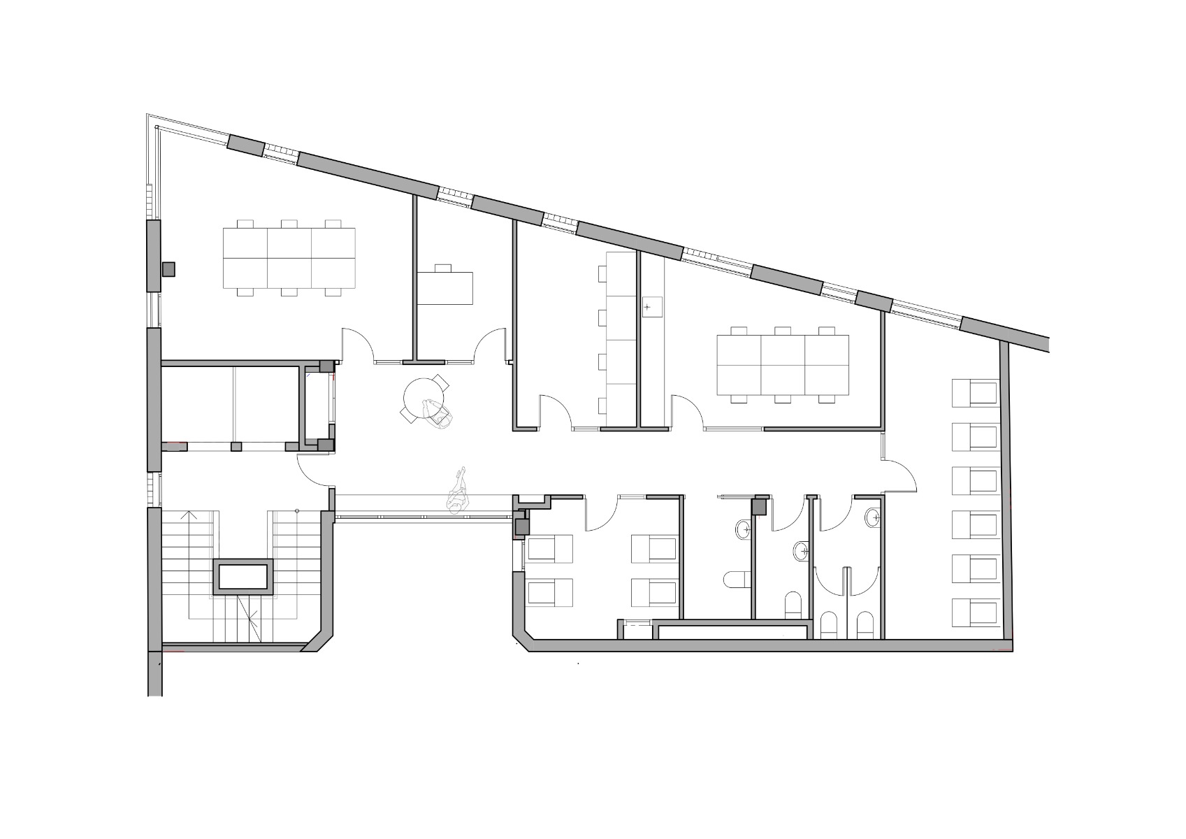
Facade design
The facades of the two buildings are similar, though not identical, and feature a design based on sustainable ecobricks. Horizontal aluminum profiles in a sunny shade of yellow add rhythm to the facades and give them a certain order. Floor-to-ceiling window elements, some of which disappear behind grid-like masonry, have been set between the profiles, thus ensuring privacy for residents and safety for those in need of protection.


In the southern building, the social centre offers a place to stay for women seeking protection. © Simón García
Common areas
The south building is home to a social centre that serves as a day centre for homeless women. Here they can cook and eat, use the lounge and computer room, wash their clothes and bathe. There is also a workshop. A social and counselling centre has moved into the upper levels, where the women can access further help and support.
Architecture: CPVA Arquitectos Toni Codina - Gemma Bufí
Location: Barcelona (ES)
Structural engineering: MPaenginyers
Contractor: ARCADI PLA S.A
Completion date: 2022













