Asyl für Schutzsuchende
Frauenhaus und Tagesheim für Wohnungslose in Barcelona
CPVA Arquitectos realisieren ein Frauenhaus und Tagesheim für Wohnungslose in Barcelona. © Simón García
Zwar ist die sozialistische Regierung in Barcelona nicht mehr an der Macht, soziale Projekte gibt es dort dennoch viele. Im feinfühligen Bau von CPVA Arquitectes finden nun die Schwächsten der Gesellschaft Zuflucht: bedrohte Frauen und Wohnungslose.


Innenansicht einer temporären Wohnung für Schutzsuchende, © Simón García
Temporäre Wohnungen für Schutzsuchende
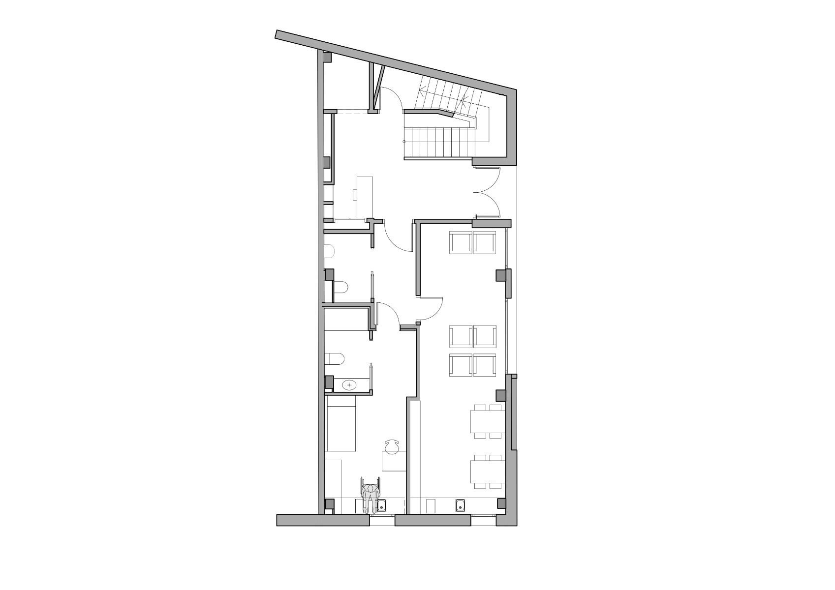
In zwei separaten Gebäuden sind die Schutzsuchenden untergebracht: Temporäre Kleinstwohnungen für die Frauen liegen im nördlichen Teil. Viel Platz gibt es in den Wohnungen nicht, dennoch ist für alles gesorgt: ein Bett, ein Sessel, ein kleiner Schreibtisch und auch eine Kochzeile finden hier Platz. Haben die Frauen Lust auf Gesellschaft, können sie sich im Gemeinschaftsraum im Erdgeschoss versammeln. Strenge Zugangskontrollen dort schützen die Frauen vor unerwünschtem Männerbesuch.


Die Fassaden sind mit nachhaltigen Eco-Klinker gestaltet. © Simón García


Horizontal durchlaufende Aluminiumprofile in Gelb rhythmisieren die Fassaden. © Simón García
Fassadengestaltung
Die Fassaden beider Bauten sind ähnlich, wenn auch nicht gleich und in nachhaltigem Eco-Klinker gestaltet. Horizontal durchlaufende Aluminiumprofile in freundlichem Gelb rhythmisieren die Fassaden und geben ihnen Ordnung. Zwischen den Profilen sind raumhohe Fensterelemente gesetzt, die teilweise hinter gitterartigem Mauerwerk verschwinden. So ist für Privatsphäre der Bewohner gesorgt und für die Sicherheit der Schutzsuchenden auch.


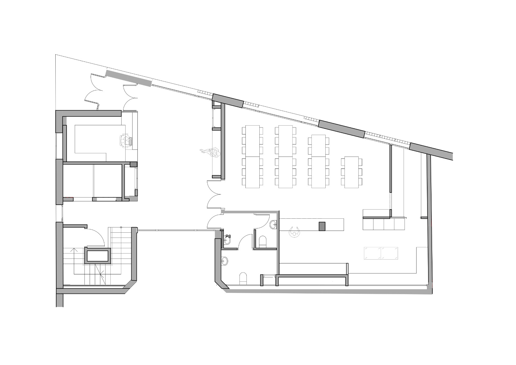
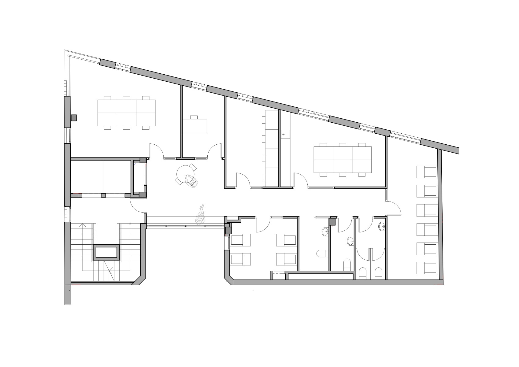
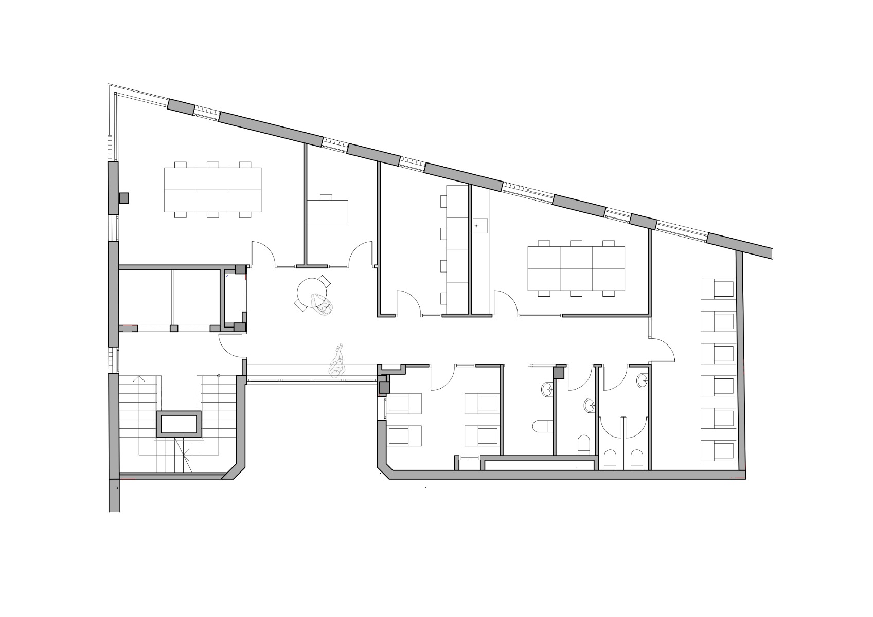
Im südlichen Gebäude bietet das Soziale Zentrum einen Aufenthaltsort für die schutzsuchenden Frauen. © Simón García
Gemeinschaftsräume
Im südlichen Gebäude ist ein Soziales Zentrum untergebracht, das Wohnungslosen tagsüber als Aufenthaltsort dient. Hier können sie kochen und essen, den Computer- und Gemeinschaftraum nutzen, ihre Wäsche und sich selbst waschen und eine Werkstatt gibt es auch. In den oberen Geschossen ist ein Sozial- und Beratungszentrum angesiedelt. Hier können sich die Betroffenen weitere Hilfe und Unterstützung holen.
Architektur: CPVA Arquitectos Toni Codina - Gemma Bufí
Standort: Barcelona (ES)
Tragwerksplanung: MPaenginyers
Bauunternehmen: ARCADI PLA S.A
Fertigstellung: 2022













