Office and event centre overhauled
Greyfriars Charteris Centre in Edinburgh
© Nanne Springer
The neo-Gothic building complex in the Scottish capital presents itself as bright and barrier-free after its overhaul by Konishi Gaffney Architects. A new entrance facade makes it a more imposing presence in the city.


© Nanne Springer
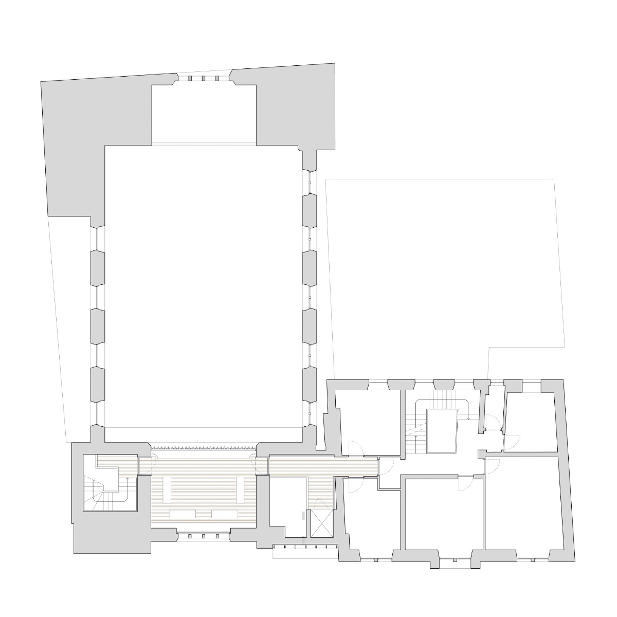
The Greyfriars Charteris Centre community centre rents out offices, meeting rooms and event spaces. Its headquarters are located in a neo-Gothic church building on the edge of Edinburgh’s old town and the neighbouring St. Ninian’s Centre, which was built at the end of the 19th century as a training school for nurses. Sporting a new facade in natural stone, the building complex makes a distinct impression. However, before now the interior was not barrier-free and no longer met the requirements for modern offices and event spaces.
Konishi Gaffney Architects, winners of an invited competition, first and foremost redesigned the entrance area and the spaces in and beneath the former nave of the church. The most visible sign of this intervention is the new entrance facade, which is now clad with light-coloured terrazzo elements. An unobtrusive relief in the plinth area takes up motifs from the facade of the church next door. Farther up, pilaster strips of Accoya wood add profile to the facade and accentuate the vertical. On the front of the church, the lancet windows on the ground floor have been lengthened downwards to allow views into the building.


© Nanne Springer
The extensively glazed entrance provides barrier-free access to the building for the first time. To be precise, it leads visitors into a three-storey atrium with a glass roof where a new elevator moves between all levels. In addition to the two existing stairwells, the architects have created a broad, new stairway with seating steps that connect the two largest spaces in the building: the low working room in the semi-basement, which is supported by yellow-lacquered cast-iron columns, and the event hall in the old nave. The lower space can be partitioned from the access area with sliding panels.


© Nanne Springer


© Nanne Springer
Throughout the building, the architects went with a clear material palette of white plaster, birch plywood and maple with a light-coloured varnish. Above all, the event hall has been brightened considerably by its renovation. On a glazed raised area screened by a 6-m-tall maple grid above the entrance, a non-denominational prayer room has been created. The architects have also made changes to the energy efficiency of the historical building complex: the windows now have double panes instead of single glazing, the heating has been updated and a photovoltaic system with a capacity of 24 kW has been installed on the south-facing roof of the church, which cannot be seen from the road.
Architecture: Konishi Gaffney Architects
Client: Greyfriars Charteris Centre
Location: 138-140 Pleasance, Edinburgh, EH9 9RR (GB)
Structural engineering: Entuitive / Forshaw Gauld
Building services engineering: Irons Foulner Consulting Engineers
Lighting design: Francis Milloy Lighting Design
Contractor: SJS Property Services




























