Cheap and cheerful
Haus der Jugend in Pforzheim
© Zooey Braun
With the expansion and renovation of the existing building, von M Architekten have given the Haus der Jugend [Engl.: House of Youth] a new lease of life. In doing so, they have left the public park in which it stands untouched. Despite the tight budget, this youth centre has succeeded in creating a great diversity of spaces, all of which emanate a certain quality.


© Zooey Braun
The Benckisers, an entrepreneurial family from Pforzheim, made their money building iron bridges. Their social commitment benefitted not only their employees, but the city as well. After leaving Pforzheim in 1919, the family donated Villa Benckiser and the associated park to the municipality with one condition: the property should be maintained in perpetuity for the good of all residents. Unfortunately, the house suffered heavy damage during the war. Only a few natural-stone ceiling vaults and the foundation walls remained intact; in 1949, these were integrated into the new Haus der Jugend, an institution devoted to integration and education as well as the teaching of democracy, tolerance and participation. In order to fulfil these aims, the old, single-storey existing building, which was around 70 years old, required urgent refurbishment; moreover, an addition was needed to accommodate the many different uses foreseen for the house.
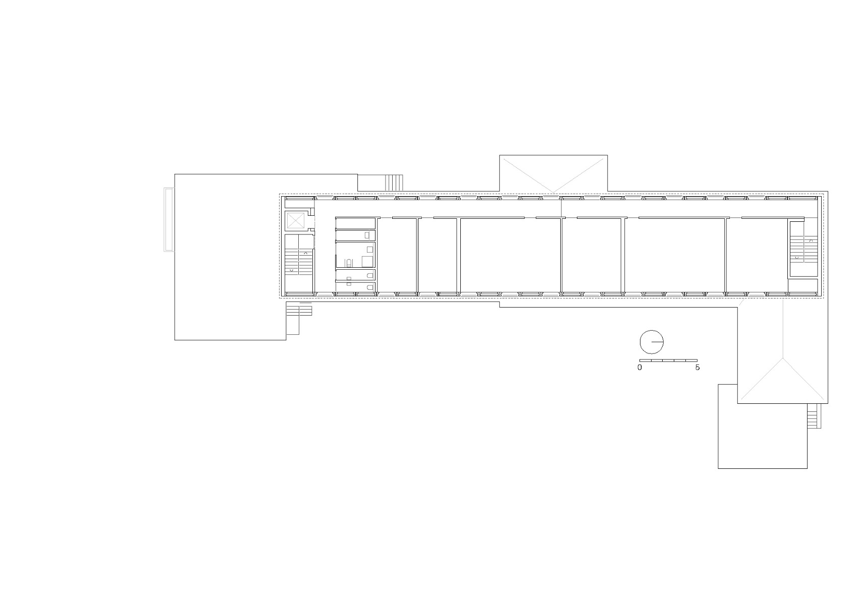
Stuttgart architects von M have added a second level to the existing building. This consists of an inexpensive prefab construction that rests on a sort of steel table whose legs penetrate the old structure and end in newly poured spot footings. On the new upper level, offices are now aligned along a long corridor and multifunctional spaces where people can dance, practice yoga or play at game consoles.


© Zooey Braun
These spaces are hidden behind a screen of perforated, irregularly folded metal that scatters the light. From outside, it looks like a textile curtain that subtly shimmers through the perforated façade of the addition, yet visually allows the addition itself to withdraw. The six-paned windows of the original house still characterize the building, while the monochrome grey colour scheme brings the old and new parts of the structure together.


© Zooey Braun


© Zooey Braun


© Zooey Braun
The heart of the house is a new stage that stands at the centre of the ground floor and can be viewed from both sides. Depending on the size of the audience, either a smaller or larger auditorium can be created. With black flooring of mastic asphalt, black-painted acoustic panels on the ceilings and steel chairs, the architects selected materials that are both durable and inexpensive − the perfect choice for a Haus der Jugend.
Architecture: vonM
Client: City of Pforzheim
Location: Westliche Karl-Friedrich-Straße 77, 75172 Pforzheim (DE)
Completion date: 2019
Gross floor area: 1453 m²
Construction costs: about 4 Mio EUR

















