Hybrid structure with hybrid uses
Innovation Centre in Debrecen by Bord Architectural Studio
© Tamás Bujnovszky
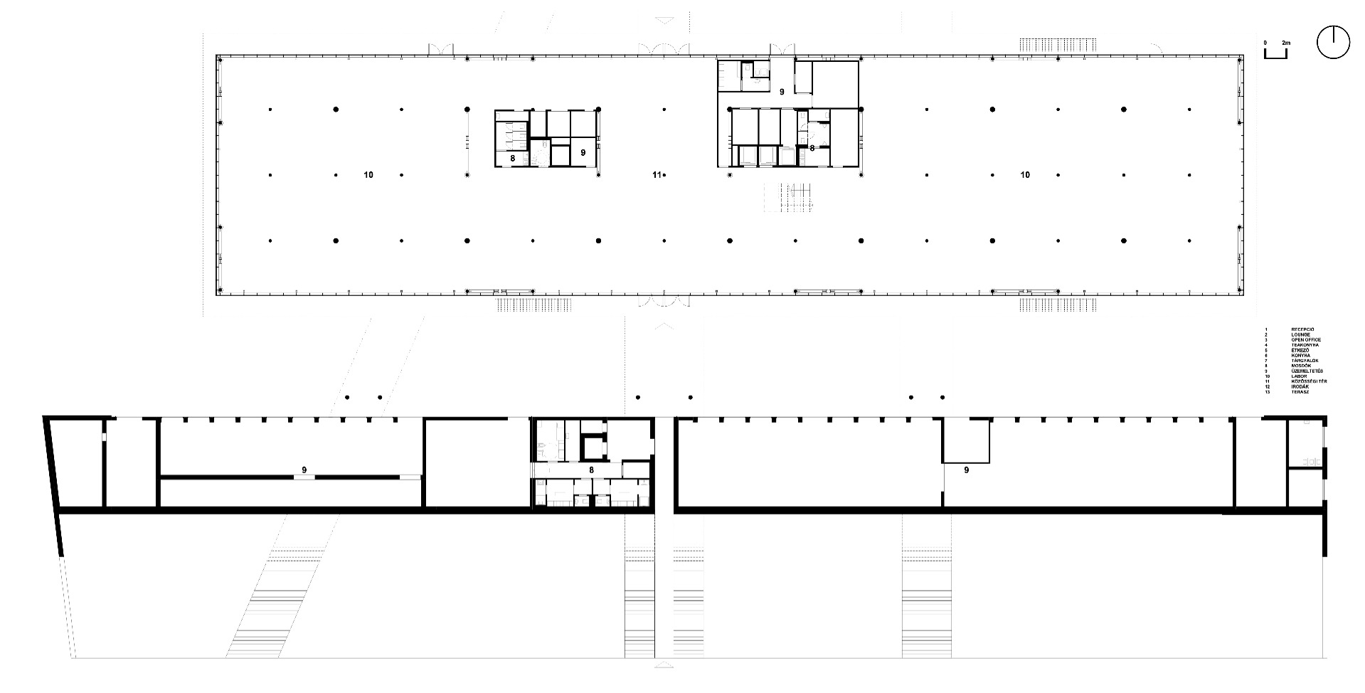
The building commissioned by Debrecen University in eastern Hungary unites offices, labs and workshops under a single roof. All storeys differ in terms of use, facade design and load-bearing structure.


All storeys differ in terms of use, © Tamás Bujnovszky
The building commissioned by Debrecen University in eastern Hungary unites offices, labs and workshops under a single roof. All storeys differ in terms of use, facade design and load-bearing structure. The main purpose of the innovation centre is to provide a home for start-ups hived off from the university. Erected on the new campus at the very north-west of the 200 000-inhabitant city, the building is flanked by two artificial grass hills in which technical building equipment and bicycle stands are housed.
Shading the facades
Describing the design, the architects state: "The building structure is like a reliable, heavy-duty shelving system that can coordinate the complicated network of information technology society". The programme's three main functions – manufacturing, communal uses and research – are stacked on three storeys.


The main purpose of the innovation centre is to provide a home for start-ups hived off from the university. © Tamás Bujnovszky
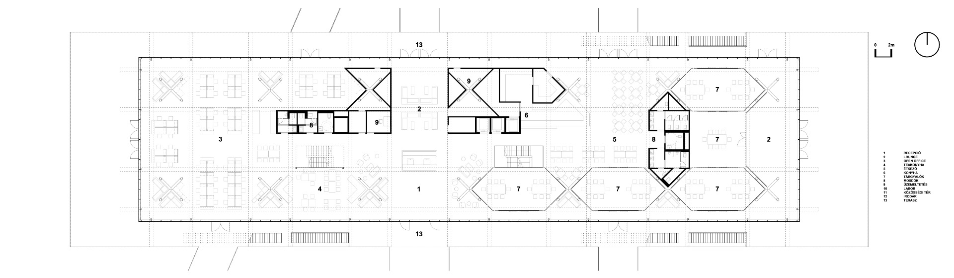
The main entrance leads via a bridge to the middle floor, compared by the architects to a marketplace and featuring an open and airy design and glass facades and deep outdoor terraces all around. Extensive glazing and circumferential balconies likewise characterize the uppermost floor on which the laboratories are located. Here the effect is completely different, however, as triangular sun sails shade the rooms and balconies, forming a playful element that recalls an over-sized zipper when seen from afar.


Large V-shaped pillars bearing a timber-beamed ceiling. © Tamás Bujnovszky


The marketplace floor, © Tamás Bujnovszky
Hybrid structural system
The building's structural system also varies according to the various uses. The ground floor has a reinforced concrete framework with steel braces, while on the marketplace floor, large V-shaped pillars bearing a timber-beamed ceiling and above that the supports for the top floor immediately catch the eye. Finally, the structural system of the laboratory floor is completely executed in timber. The building's skeleton structure basically makes it possible to install a staircase in any available grid area for additional connections between the storeys.
On the roof, a solar array supplies the energy for the air-to-water heat pumps that heat and cool the building.
Architecture, Landscape architecture, Building services engineering: BORD Architectural Studio
Client: Universität Debrecen
Location: Vezér utca 37, 4032 Debrecen (HU)
Structural engineering: Hydrastat Engineering
























