Living in existing context
La Clara – a Former Laundry in Barcelona
The living spaces lie in the rear area of the long, narrow lot. © Adrià Goula
In Les Corts, a district in southwest Barcelona, the local architecture office CRÜ have repurposed a 1930s-era laundry as a residence with its own studio. The two pre-existing buildings stand in a long, narrow courtyard that extends into the block-perimeter construction like a deep fissure.


Rough surfaces add industrial charm. © Adrià Goula
The redolence of industrial detergent
In the 19th and 20th centuries, public laundries were opened in the Catalan capital at the crossings of the streams that coursed down from the Collserola mountains. These laundries were more than merely functional: they were the first public spaces where the neighbourhood women could meet and converse. Inspired by the principle of the genius loci, the client couple Clara and Alan wanted to preserve the spirit – if only symbolically – of meeting and dispersing, of public and private space and the “redolence of industrial detergent”, and the history of this place.


A glazed corridor links the front building with the one in back. © Adrià Goula
Paths and angles of view
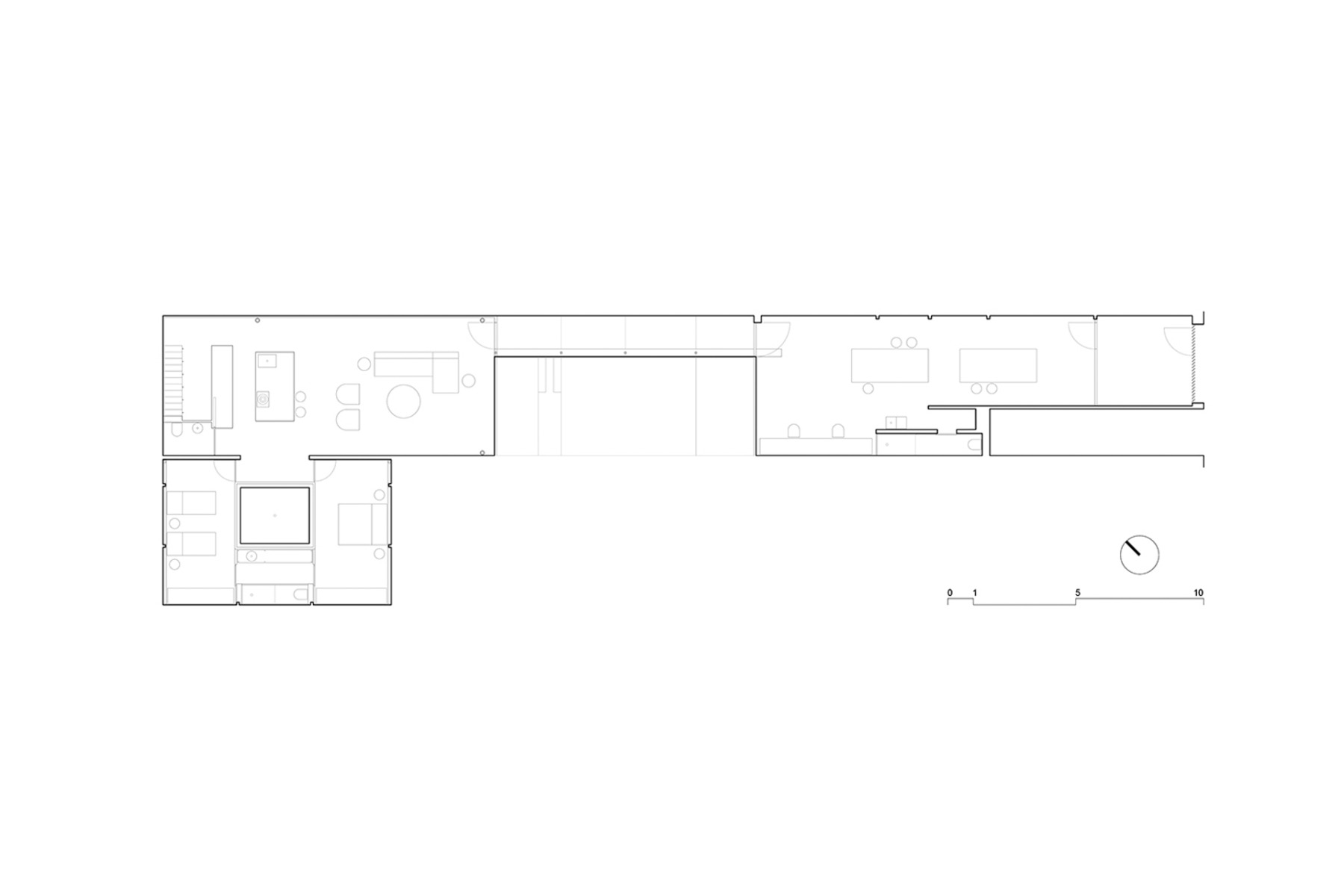
To this end, Clàudia Raurell and Joan Astallé of CRÜ have created charming paths and angles of view. They have arranged the spatial program from public to private. Two inner courtyards are created. The larger provides a respectful distance between the single-storey studio on the façade and the private living areas in the two-storey building that occupies the rear of the lot. A lightweight, glazed steel construction on the east side connects the two structures: this link guides the residents and their visitors into the living space, which features an open kitchen. To the west, two bedrooms and a bathroom are grouped around the smaller, more intimate courtyard. A brick stairway behind the kitchen leads up to the master bedroom, which has its own dressing room and bathroom.


The large master bedroom takes up the entire upper level. © Adrià Goula
Rough industrial charm
The planners stripped the existing buildings to their carcass. In many places, they have left exposed the unplastered masonry work and the concrete supports for the old ceilings. The ceilings above the ground-floor bedrooms, and part of the ceiling in the living room, have been re-covered with insulated trapezoidal plates that rest on lightweight trussed rafters of metal. Spatulated concrete and terracotta tiles accentuate the unfinished, industrial character of the house.
Architecture: CRÜ Joan Astallé + Clàudia Raurell
Client: Clara und Alan
Location: Les Corts, Barcelona (ES)
Structural engineering: Calmat
















