Wohnen im Bestand
La Clara – ehemalige Wäscherei in Barcelona
Die Wohnräume liegen im hinteren Bereich des schmalen, langen Grundstücks. © Adrià Goula
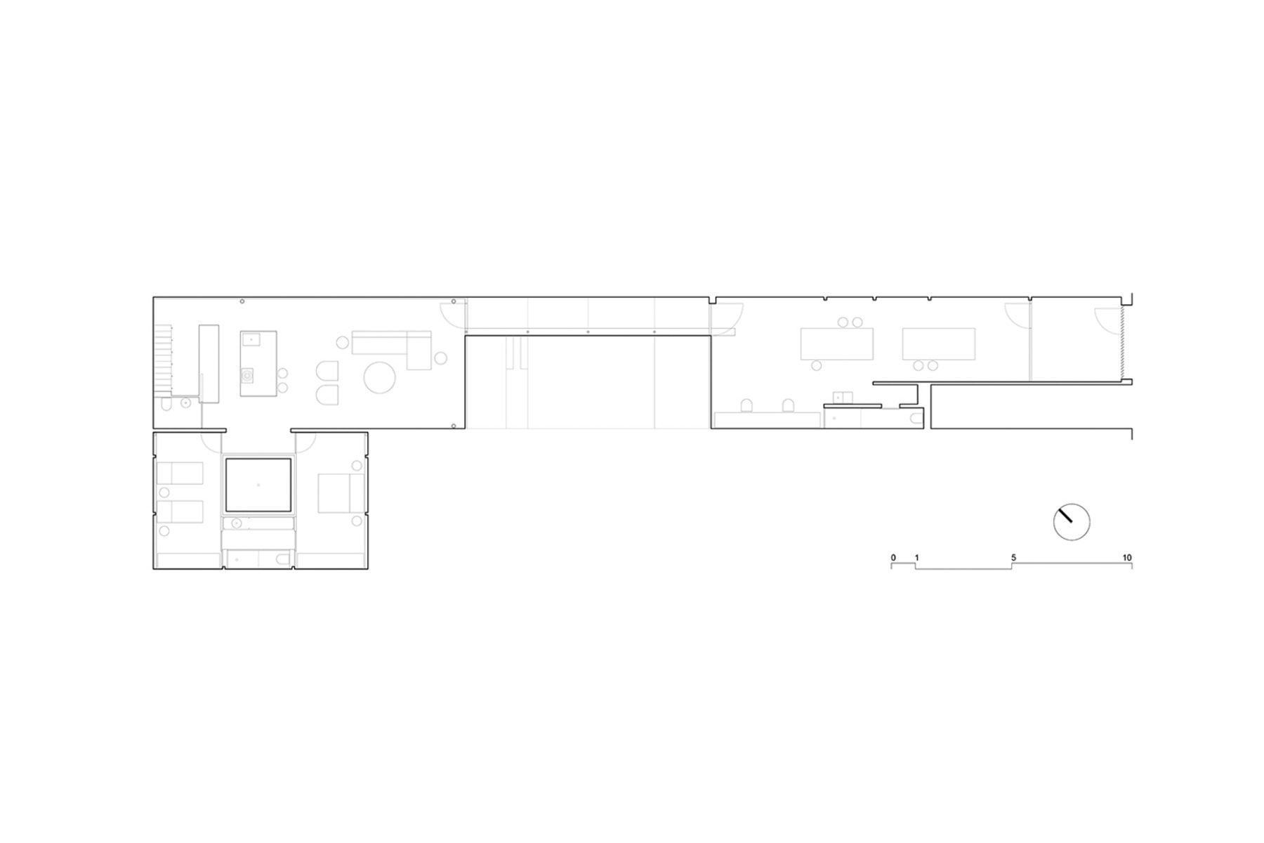
Im Südwesten von Barcelona, im Stadtteil Les Corts, hat das ortsansässige Architekturbüro CRÜ eine Wäscherei aus den 1930er-Jahren in ein Wohnhaus mit Atelier umgebaut. Die beiden Bestandsgebäude liegen in einem langgestreckten Innenhof, der sich wie ein tiefer Riss in die Blockrandbebauung zieht.


Rohe Oberflächen für industriellen Charme, © Adrià Goula
Die Aura von Industrieseife
Im 19. und 20. Jahrhundert wurden in der katalonischen Hauptstadt an den Kreuzungen der Bäche des Collserola-Gebirges öffentliche Wäschereien errichtet. Sie waren nicht nur von funktionaler Bedeutung, sondern wurden auch zu den ersten öffentlichen Räumen, in denen sich die Frauen des Viertels treffen und austauschten konnten. Inspiriert vom Genius Loci wünschte das Bauherrenpaar Clara und Alan, den Geist von Begegnung und Zerstreuung, von Öffentlichem und Privatem und den „Duft von Industrieseife“ – selbstverständlich nur symbolisch für die Geschichte des Ortes – zu bewahren.


Ein verglaster Flur verbindet das Vorder- mit dem Rückgebäude. © Adrià Goula
Wege und Sichtachsen
Clàudia Raurell und Joan Astallé von CRÜ schaffen dazu reizvolle Wege und Sichtachsen. Das Raumprogramm staffeln sie vom Öffentlichen zum Privaten. Es entstehen zwei Innenhöfe: Der größere von beiden sorgt für respektvolle Distanz zwischen dem eingeschossigen Studio an der Fassade und den privaten Wohnräumen im zweigeschossigen Gebäude, das den hinteren Bereich des Grundstücks einnimmt. Eine verglaste, leichte Stahlkonstruktion an der Ostseite verbindet beide Baukörper miteinander. Von dort gelangen die Bewohner und ihre Besucherinnen in den Wohnraum mit offener Küche. Westlich davon gruppieren sich zwei Schlafräume und ein Bad um den kleineren, intimeren Innenhof. Eine gemauerte Treppe hinter der Küche führt hinauf in das Haupt-Schlafzimmer mit Ankleide und Bad.


Das große Haupt-Schlafzimmer nimmt das gesamte Obergeschoss ein. © Adrià Goula
Roher Industrie-Charme
Das Bestandsgebäude entkleiden die Planenden bis auf den Rohbau. An vielen Stellen lassen sie das unverputzte Mauerwerk und die Betonträger der Bestandsdecken sichtbar. Die Dächer über den Schlafzimmern im Erdgeschoss und ein Teil des Daches im Wohnzimmer ließen sie mit isolierten Trapezplatten, die auf leichten Metall-Fachwerkbindern ruhen neu decken. Gespachtelter Beton und Terracotta-Spaltplatten auf den Böden unterstreichen den unfertigen, industriellen Charakter.
Architektur: CRÜ Joan Astallé + Clàudia Raurell
Bauherr: Clara und Alan
Standort: Les Corts, Barcelona (ES)
Tragwerksplanung: Calmat
















