Like Living in a Bungalow: City House by Atelier Kempe Thill in Antwerp
Foto: Ulrich Schwarz, Berlin
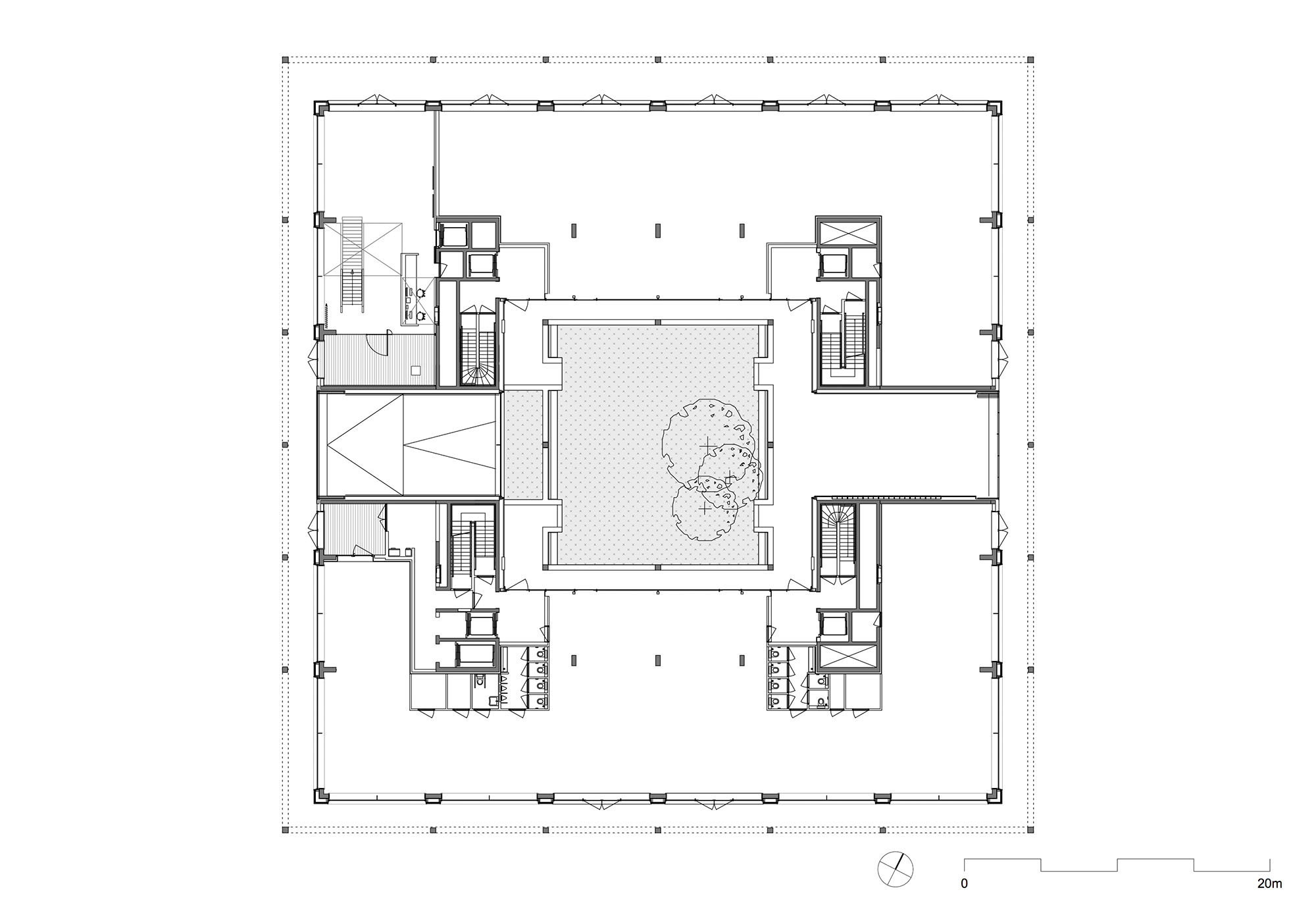
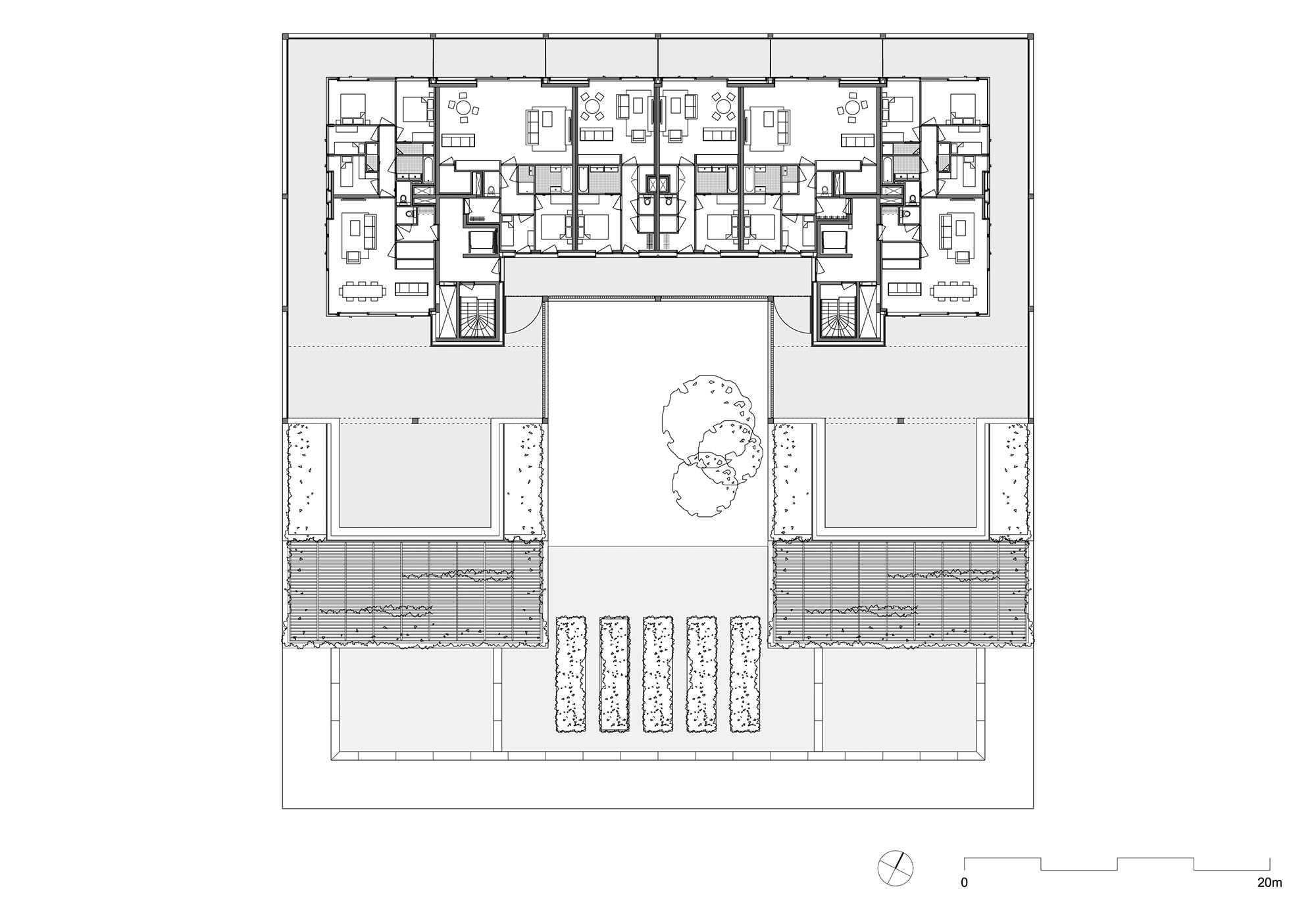
A new quarter – Nieuw Zuid – is currently coming about between the river Schelde and Richard Rogers’ new justice palace. At Panamarenkoplein, the district’s newly-created square, the mixed uses offered by the Zuiderplein residential and business complex contribute to a lively neighbourhood. Set alone at the central open space, the volume with its intimate interior courtyard and 45 x 45-metre footprint rises five storeys high to the north and steps down to three in the south in adjustment to the lower neighbouring buildings.
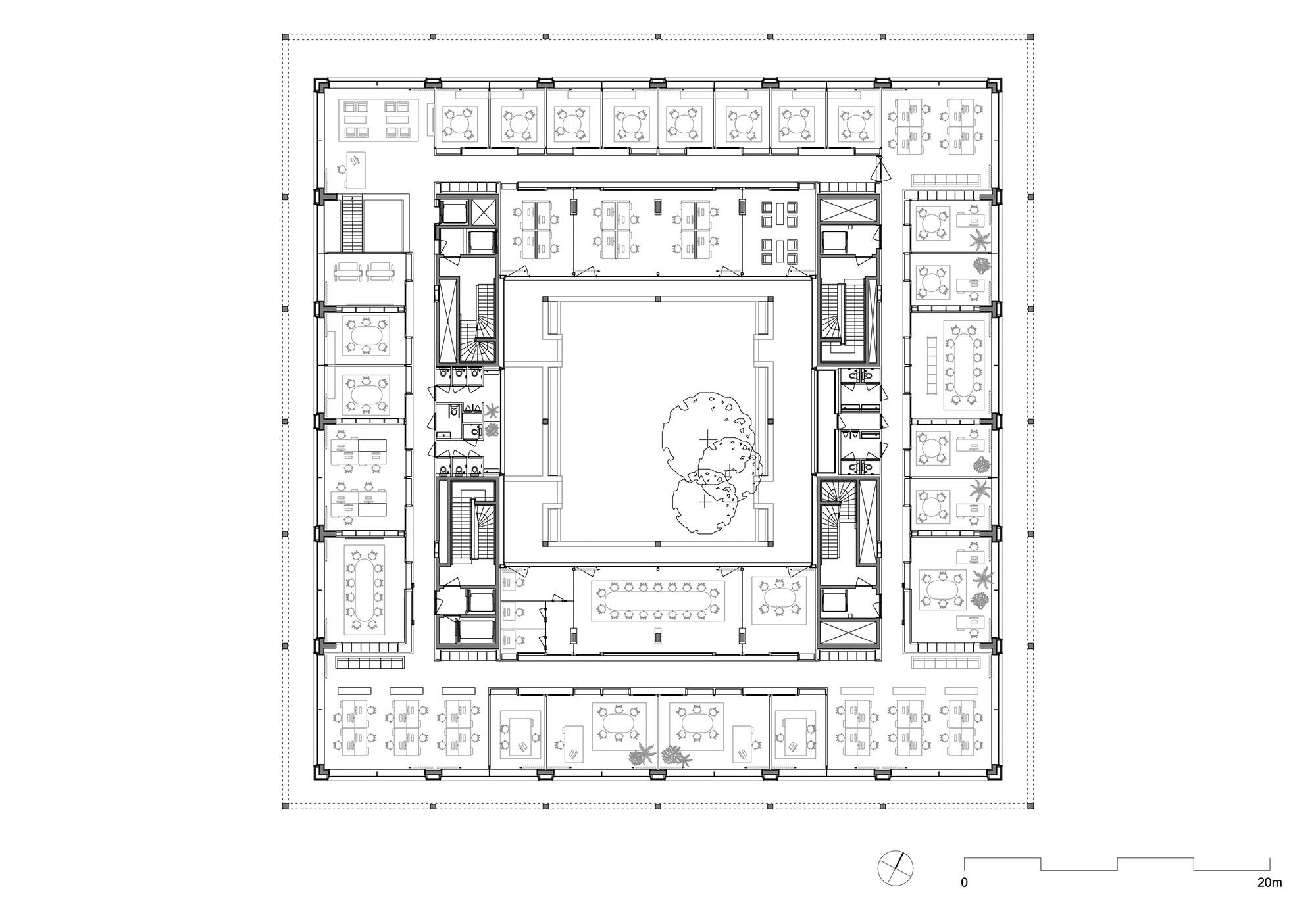
Due to the building’s various uses, as many individual entries and emergency escape routes as possible had to be taken into consideration in planning the circulation concept. The shops are reached directly from the square or street, and the office spaces on the first floor have their ground-level entrance on the east side of the building. To avoid any further piercing of the commercially used base level, stair cores located at the inner corners of the courtyard provide access to the apartments.
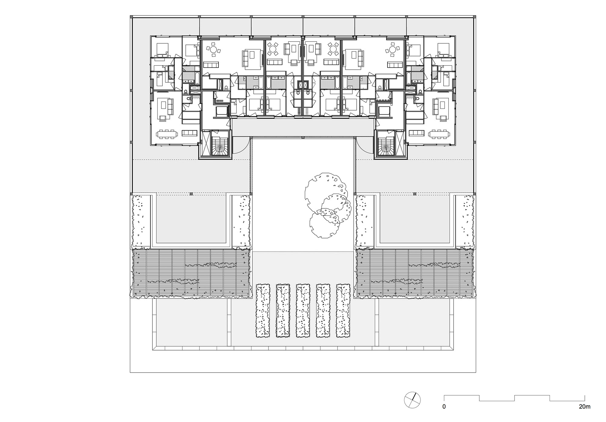
The building is surrounded on all sides by colonnades that contain balconies on the outer facades and outdoor corridors on the courtyard sides, thus providing the occupants of the 38 apartments a considerable amount of exterior space. All units have at least two façade walls, filling them with natural light from two or more sides, and come at the pleasant height of 2.70 metres. At the same time the full-height, three-part sliding-folding windows in the living area of the sunny and airy dwellings can be opened completely.
The exterior corridors of the stepped storeys lead to a shared roof terrace, while the balconies of the corner apartments segue into private terraces that are larger than the corresponding living spaces themselves. One can walk around the apartments on three sides and thus gain the impression of living in a bungalow. The occupants value the feeling of living apart from the bustle of the city and yet having restaurants and shops close at hand.
Zuiderplein is reticent in terms of its materiality, as exemplified by its exterior in grey exposed concrete, unassuming restrained limestone, also in grey, and anodised aluminium complemented by plain larch. The courtyard comes in an airy and friendly design featuring pale marble chips and a section with bear fur grass and a multi-stem Persian ironwood tree. Plain colours and surfaces also distinguish the interior. The understated grey makes the building a neutral setting for its individual uses, and also goes well with Antwerp’s reserved noblesse and the city’s frequently overcast skies.
Further information:
Planning parking garage: POLO.architects
Statics: VK architects & engineers



















