Wohnen wie im Bungalow: Stadthaus von Atelier Kempe Thill in Antwerpen
Foto: Ulrich Schwarz, Berlin
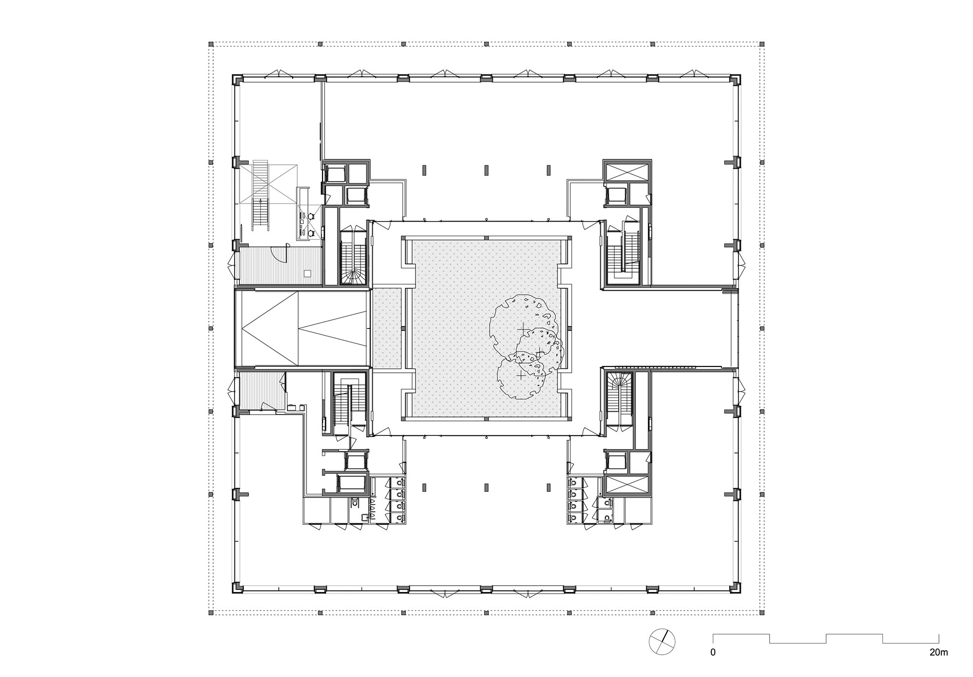
Zwischen Schelde und dem neuen Justizpalast von Richard Rogers entsteht im belgischen Antwerpen die Stadterweiterung Nieuw Zuid. Am neu geschaffenen Platz des Viertels, dem Panamarenkoplein, trägt das Wohn- und Geschäftshaus Zuiderplein mit seiner Mischnutzung zu einer lebendigen Nachbarschaft bei. Der Gebäudekubus mit Innenhof steht frei auf dem zentralen Platz. Nach Norden erhebt sich der Baukörper fünfgeschossig, in südlicher Richtung ist er auf drei Ebenen abgestaffelt und passt sich den flacheren Nachbargebäuden an.
Bei der Planung des Wegekonzepts mussten notwendige Fluchtwege der unterschiedlichen Nutzungen vereint werden. Die Läden sind direkt vom Platz oder der Straße aus erschlossen. Der Eingang zu den Büroflächen im ersten Obergeschoss liegt an der Ostseite. Die Wohnungen sind durch Treppenkerne an den Innenecken des Patios zu erreichen.
Eine umlaufende, Kolonnade mit Balkonen an den Außenseiten und Laubengänge an den innenliegenden Fassaden bieten den Bewohnern der 38 Apartments großzügige Freibereiche. Die raumhohen, dreiteiligen Hebeschiebefenster in den Wohnbereichen lassen sich komplett öffnen. Tageslicht strömt an zwei oder mehr Seiten in die sonnigen und luftigen Räume die mit 2,70 m angenehm hoch sind.
In den abgestaffelten Geschossen münden die Laubengänge in eine gemeinschaftliche Dachterrasse, die Balkone der Eckwohnungen gehen in private Terrassen über, die größer sind als die Wohnfläche selbst. Man kann an drei Seiten um die Wohnung herumlaufen, ähnlich wie bei einem Bungalow. Bewohner schätzen das Lebensgefühl, losgelöst vom städtischen Trubel zu leben und dennoch Restaurants und Läden vor der Haustüre zu haben.
Die Materialität von Zuiderplein ist zurückhaltend: Grauer Sichtbeton, dezenter, ebenfalls grauer Kalkstein und eloxiertes Aluminium in den Außenbereichen werden von schlichtem Lärchenholz ergänzt. Der Hof ist mit hellem Marmorkies, einer Bepflanzung mit Bärenfellgras und einem mehrstämmigen Persischen Eisenholzbaum licht und freundlich gestaltet und auch im Inneren bestimmen schlichte Farben und Oberflächen das Bild.
Weitere Informationen:
Planung Parkgarage: POLO.architects
Statik: VK architects & engineers



















