A house within a house
Herzzone Project by Studio Alexander Fehre
Central meeting point for employees from all departments: the new Herzzone of the pharmaceutical company Roche Diagnostics. © Philipp Kottlorz
Although administration and production are located under one roof at the Roche Diagnostics branch in Ludwigsburg, there have been few points of contact between the two departments. In order to strengthen the feeling of togetherness among the employees, the desire arose for a multifunctional common area. To this end, Studio Alexander Fehre developed the Herzzone project: an identity-forming meeting place that facilitates informal encounters.
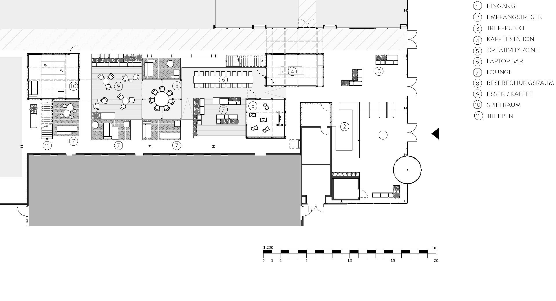
Orthogonal floor plan
Herzzone is designed as a house-within-a-house solution. On an orthogonal grid, four wooden cubes form the basis of an elongated series of rooms. Each has a specific function: the fully enclosed cubes serve as work or meeting rooms, while the open-plan cubes can be used for team events or company celebrations.


The largest of the four wooden cubes is very close to the production area. © Philipp Kottlorz
Design encourages encounters
Two of the cubes have an additional storey and are connected by a walkway that offers both views within the heart zone and an overview of the neighbouring production hall. Wooden platforms and carpets divide the ground floor into terrace-like zones. The main routes between production and administration run through the centre. This type of design encourages spontaneous encounters and shared coffee breaks.


As the name suggests, the laptop bar is not just for working. © Philipp Kottlorz
Inviting ambience
The choice of materials emphasises lightness and openness: glulam beams clad in three-layer panels of oiled silver fir provide a natural contrast to the steel structure of the production hall. The light colour palette, which is also reflected in the stronger colours of the carpets and furniture upholstery, reinforces the welcoming atmosphere. Translucent polycarbonate multi-skin panels indicate whether a cube is already occupied. There are also cross-braced pendant luminaires and white painted steel staircases. They emphasise the industrial character of the environment.
Read more in Detail 10.2024 and in our databank Detail Inspiration.
Interior design: Studio Alexander Fehre
Client: Roche Diagnostics Automation Solutions
Location: Albert-Ruprecht-Straße 2, 71636 Ludwigsburg (DE)
Structural engineering, building physics, acoustics, lighting design: Goldbeck
Acoustics: Heraklith
Greening: phyllis plants & people
Flooring: Object Carpet, Tarkett
Furniture: UnternehmenForm, COR, Moroso
Project architect: Alexander Fehre
Team: Stefanie Schwelme, Inna Strokous, Sebastian Zaune






















