Ein Haus im Haus
Projekt Herzzone von Studio Alexander Fehre
Zentraler Treffpunkt für die Mitarbeitenden aller Abteilungen: die neue Herzzone des Pharmaunternehmens Roche Diagnostics. © Philipp Kottlorz
Obwohl Verwaltung und Produktion in der Roche Diagnostics-Niederlassung in Ludwigsburg unter einem Dach arbeiten, gab es bisher nur wenige Berührungspunkte zwischen den beiden Abteilungen. Um das Zusammengehörigkeitsgefühl der Mitarbeitenden zu stärken, entstand der Wunsch nach einem multifunktionalen Gemeinschaftsbereich. Studio Alexander Fehre entwickelte dafür das Projekt Herzzone: ein identitätsstiftender Treffpunkt, der informelle Begegnungen ermöglicht
Orthogonales Grundraster
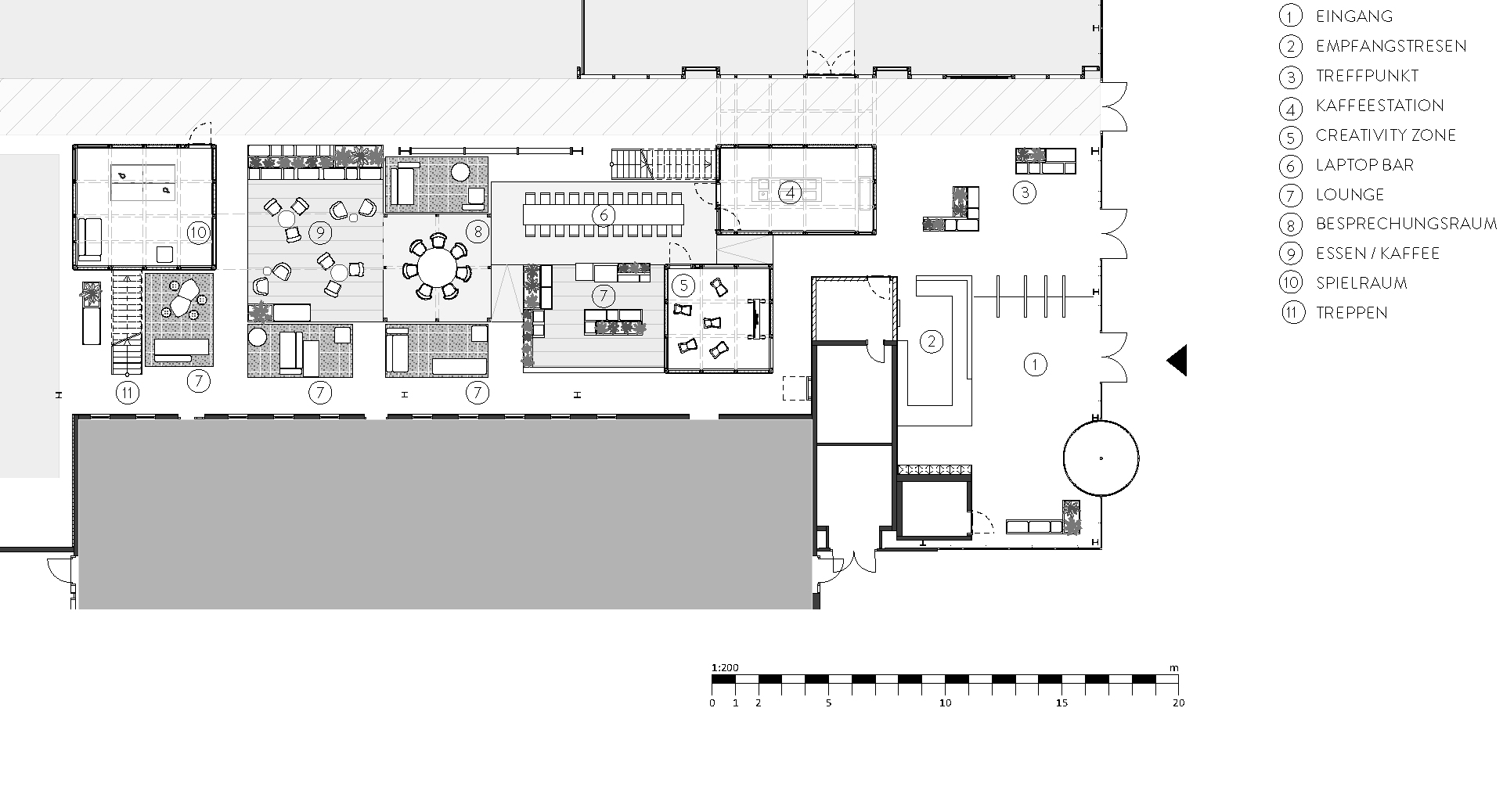
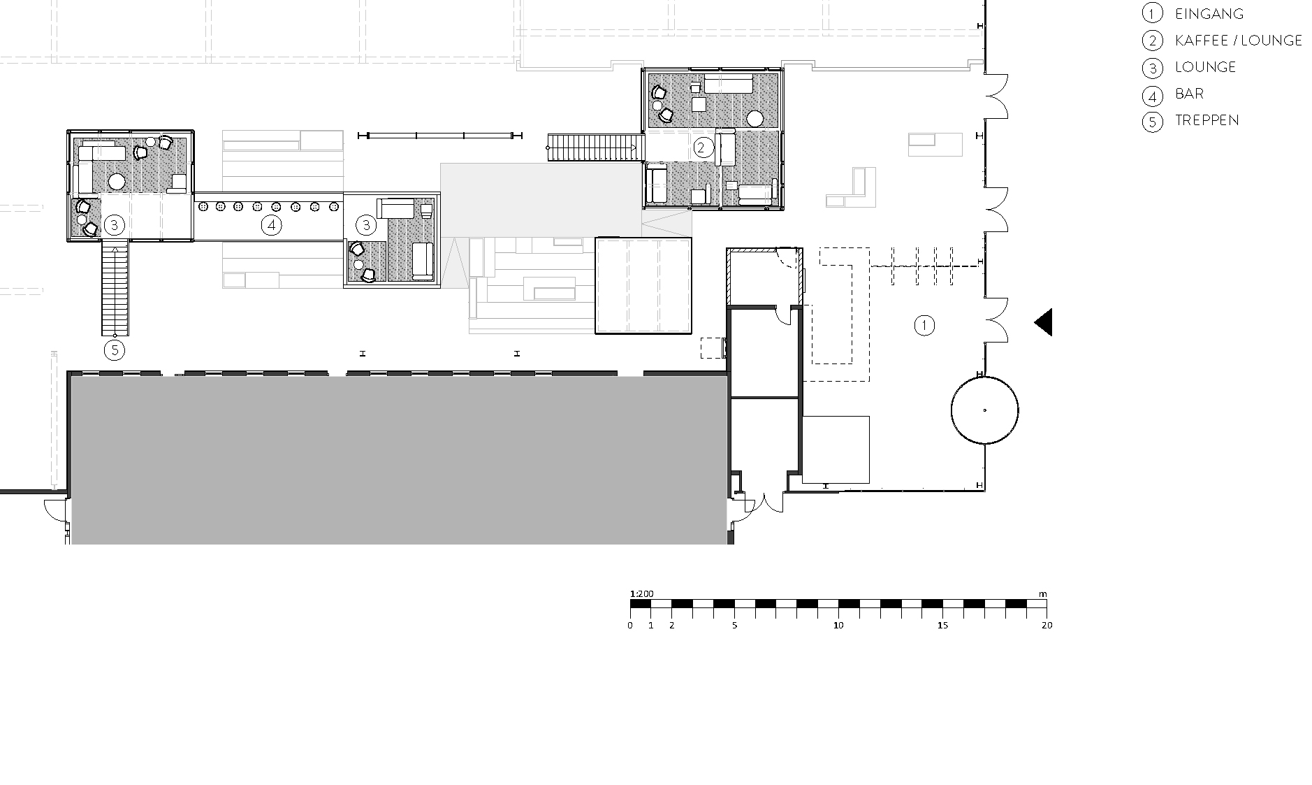
Die Herzzone ist als Haus-im-Haus-Lösung gestaltet. Auf einem orthogonalen Grundraster bilden vier Holzkuben die Basis einer langgestreckten Raumfolge. Jeder von ihnen hat eine spezifische Funktion: Die komplett geschlossenen Kuben dienen als Arbeits- oder Besprechungsräume; in den offen gestalteten Kuben können Teamveranstaltungen oder Betriebsfeiern stattfinden.


Der größte der vier Holzkuben kommt dem Produktionsbereich ganz nah. © Philipp Kottlorz
Gestaltung fördert Begegnung
Zwei der Kuben haben ein zusätzliches Geschoss und sind durch einen Steg miteinander verbunden, der sowohl Einblicke innerhalb der Herzzone als auch einen Überblick über die benachbarte Produktionshalle bietet. Holzpodeste und Teppiche unterteilen das Erdgeschoss in terrassenartige Zonen. Mitten hindurch führen die Hauptwege zwischen Produktion und Verwaltung. Diese Art der Gestaltung fördert spontane Begegnungen und gemeinsame Kaffeepausen.


Wie der Name bereits andeutet, ist die Laptop Bar nicht nur zum Arbeiten da. © Philipp Kottlorz
Einladendes Ambiente
Die Materialwahl hebt Leichtigkeit und Offenheit hervor: Tragende Stützen aus Brettschichtholz, verkleidet mit Dreischichtplatten aus geölter Weißtanne, bieten einen natürlichen Kontrast zur Stahlkonstruktion der Produktionshalle. Die helle Farbpalette, die sich auch in den kräftigeren Farben der Teppiche und Möbelbezüge widerspiegelt, verstärkt das einladende Ambiente. Transluzente Stegplatten aus Polycarbonat zeigen an, ob ein Kubus bereits belegt ist. Hinzu kommen quer verspannte Pendelleuchten und weiß lackierte Stahltreppen. Sie betonen den industriellen Charakter der Umgebung.
Mehr dazu in Detail 10.2024 und in unserer Datenbank Detail Inspiration.
Innenarchitektur: Studio Alexander Fehre
Bauherr: Roche Diagnostics Automation Solutions
Standort: Albert-Ruprecht-Straße 2, 71636 Ludwigsburg (DE)
Tragwerksplanung, Bauphysik, Lichtplanung, Akustik: Goldbeck
Akustik: Heraklith
Begrünung: phyllis plants & people
Bodenbeläge: Object Carpet, Tarkett
Mobiliar: UnternehmenForm, COR, Moroso
Projektleitung: Alexander Fehre
Mitarbeitende: Stefanie Schwelme, Inna Strokous, Sebastian Zaune






















