A small new building in a large landscape
The Qingxi Culture and History Museum in Ningbo by UAD
© Ding Junhao
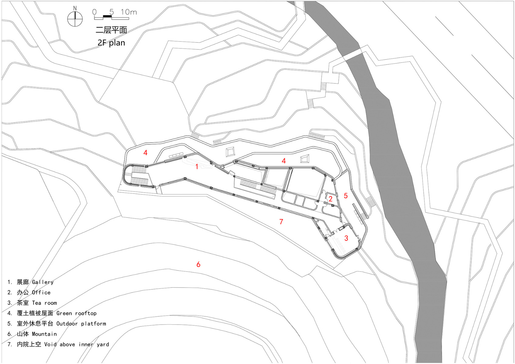
The Qingxi Culture and History Museum stands just outside the town of Sangzhouzhen, which is located amid terraced rapeseed fields around 400 km south of Shanghai. It encompasses a tourist information centre and spaces for exhibitions devoted to local history and culture.


The architects designed the building as a continuation of the local terrain. © Ding Junhao
A continuation of the terrain
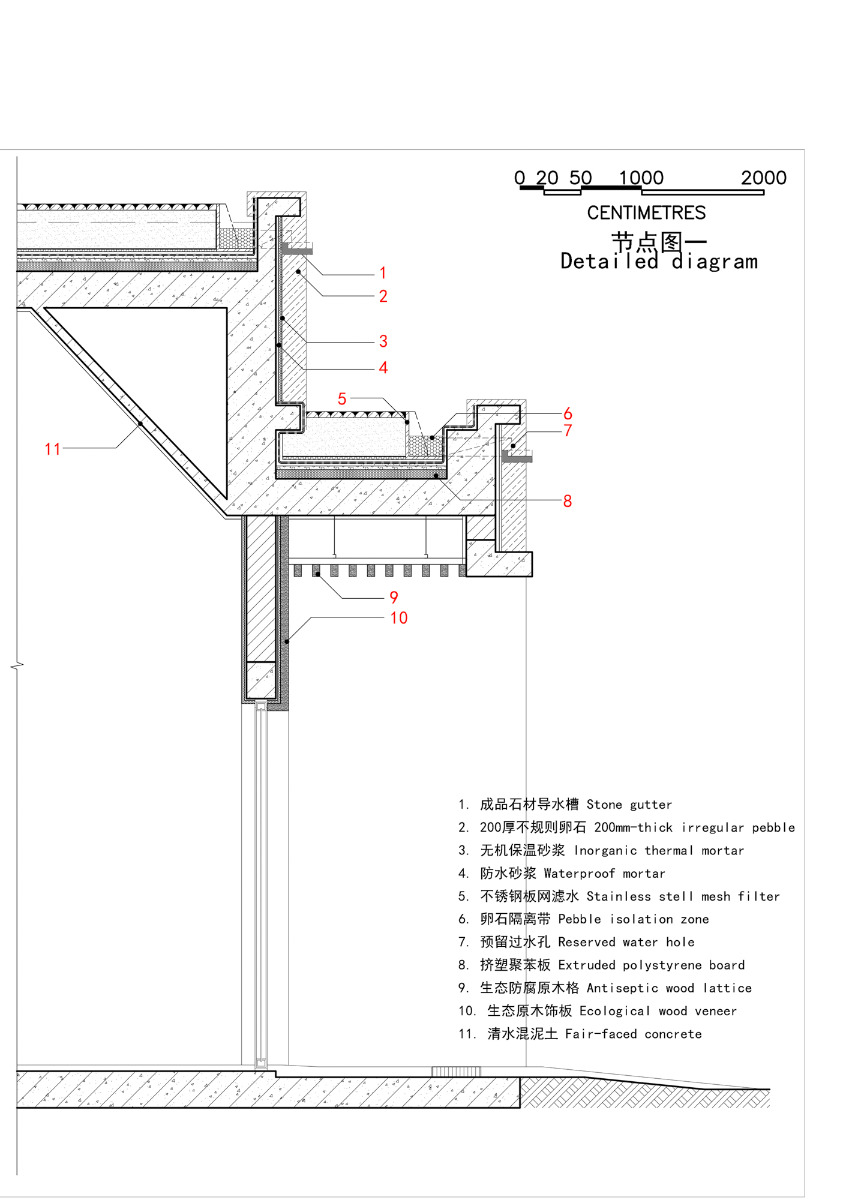
The team from the Architectural Design and Research Institute (UAD) at Zhejiang University in Hangzhou acted as general planners for this project. The architects designed the building – quite consistently – as a continuation of the local terrain. Their concept determined not only the overall form of the structure, but also the choice of materials and the planting for the roof areas, for the same agricultural plants will be cultivated there as in the surrounding fields.
The concrete exterior walls are extensively covered with coarse pebbles, and the window jambs consist of handworked natural stone. The architects chose exposed concrete only for the lintels and sills of the relatively small windows. All this allows the new building to blend even more into the landscape.


The concrete exterior walls are extensively covered with coarse pebbles. © ZYStudio
Interior
The relatively small museum, which measures 1700 m², has only two levels and a long floor plan featuring corridor-like, winding exhibition spaces that constantly open new perspectives. Vividly textured exposed-concrete ceilings and a few walls with pebbled surfaces prevent any feeling of smoothness or sterility.


Vividly textured exposed-concrete ceilings, © ZYStudio


Exposed concrete and natural stone characterize the interior. © ZYStudio
Daylight enters the exhibition spaces through roof openings and small windows positioned high up. In two places alone, the building opens up more to the outdoors: at the main entrance on the ground floor as well as in the tea room on the upper level, where glass doors lead to a wood-decked terrace.
Architecture, structural and building services engineering, interior design, landscape architecture: The Architectural Design & Research Institute of Zhejiang University
Client: Ninghai Cultural Tourism Group
Location: 422 Country Road, Sangzhouzhen, Ninghai, Ningbo, Zhejiang (CN)























