Layers of time
Restoration of a Farm by Studio Bua
Transformation of an Icelandic farm by Studio Bua, © Marino Thorlacius
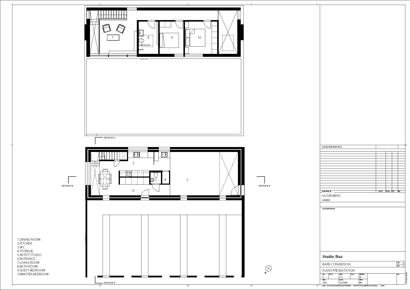
Hlöðuberg, which is on the west coast of Iceland, is a characteristic example of the abandoned farmsteads frequently found in the Nordic country: once occupied, only to be given up and overtaken by decrepitude. This property comprises a house, a barn and a stable, all in various stages of dilapidation. Commissioned by a private client, Studio Bua have developed a special strategy for the step-by-step restoration and repurposing of the structural remains.


Modernization by addition, © Marino Thorlacius
A house with an artist’s studio
The old barn has been transformed into a studio and house, most of whose stable concrete structure has been preserved. In contrast, the courtyard and its fragile surrounding walls proved too unstable for restoration work. Therefore, the architects limited their work to the main building, while the courtyard has deliberately been left in its state of ruin.
A wooden structure with Aluzinc siding
The planners had the old corrugated-steel roof removed. In its place, they have set a lightweight, two-storey wooden structure into the preserved space of the barn. The new wooden volume is clad with corrugated industrial Aluzinc, which is lightweight on the one hand, yet is one of the few materials that can withstand the rugged local environment and extreme weather conditions. An extension whose roof was missing now forms a sheltered courtyard. The crumbling, foundation-free outdoor walls surround a new garden.


Large windows allow daylight into the house. © Marino Thorlacius
A simple interior
The challenge consisted in creating a balanced space for work and family. On the ground floor, between the old walls, Studio Bua have placed the kitchen-dining area and the artist’s two-storey studio. The interior has consciously been kept neutral so as not to overpower the artworks on display. Concrete floors, stained birch plywood on the walls and a colour scheme inspired by the nearby slopes and meadows determine this space.


The colour palette inside the house was inspired by the surrounding nature. © Marino Thorlacius


A look into the studio, © Marino Thorlacius
The added upper level was built with a wood-frame construction; the small living room above the kitchen features a large window that offers an imposing view of the beach and the Breiðafjörður. Upstairs, white-stained softwood planks predominate on walls as well as floors. The two open areas on the narrow sides of the house take up the original structure of the barn, while the stairway and studio have replaced the old hay store.


The facade of the addition is clad with corrugated industrial Aluzinc. © Marino Thorlacius
Sustainable solutions
The efficient, sustainable solutions in this house include a geothermal heat pump, low-temperature subfloor heating and triple glazing. The doors to all the rooms come from Reykjavik’s recycling centre. The outdoor seating and table legs are made of recycled concrete from the rehabilitation of the old farm.
Read more in Detail 7/8.2024 and in our databank Detail Inspiration.
Architecture: Studio Bua
Client: Gudrun Kristjansdottir & Ævar Kristjánsson
Location: Hlöðuberg, Skarðsströnd (IS)
Contractor: Eiríkur Kristjánsson
Structural engineering: Gísli Gu'mundsson





















