Residential block on and above the water
Sluishuis in Amsterdam by Barcode Architects and BIG
© Ossip van Duivenbode
Lorem Ipsum: Zwischenüberschrift
Amsterdam’s waterside situation has inspired many sensational building designs. The latest example: the Sluishuis by Barcode Architects and BIG, which is located in the IJburg district and features 442 apartments and retail spaces that meet plus-energy standards.


© Ossip van Duivenbode
Lorem Ipsum: Zwischenüberschrift
In this case, however, the term “waterside” is not quite right, for the eleven-storey new building stands literally in the water of the river IJ, surrounded by jetties for 34 houseboats and about 50 leisure craft.
Lorem Ipsum: Zwischenüberschrift
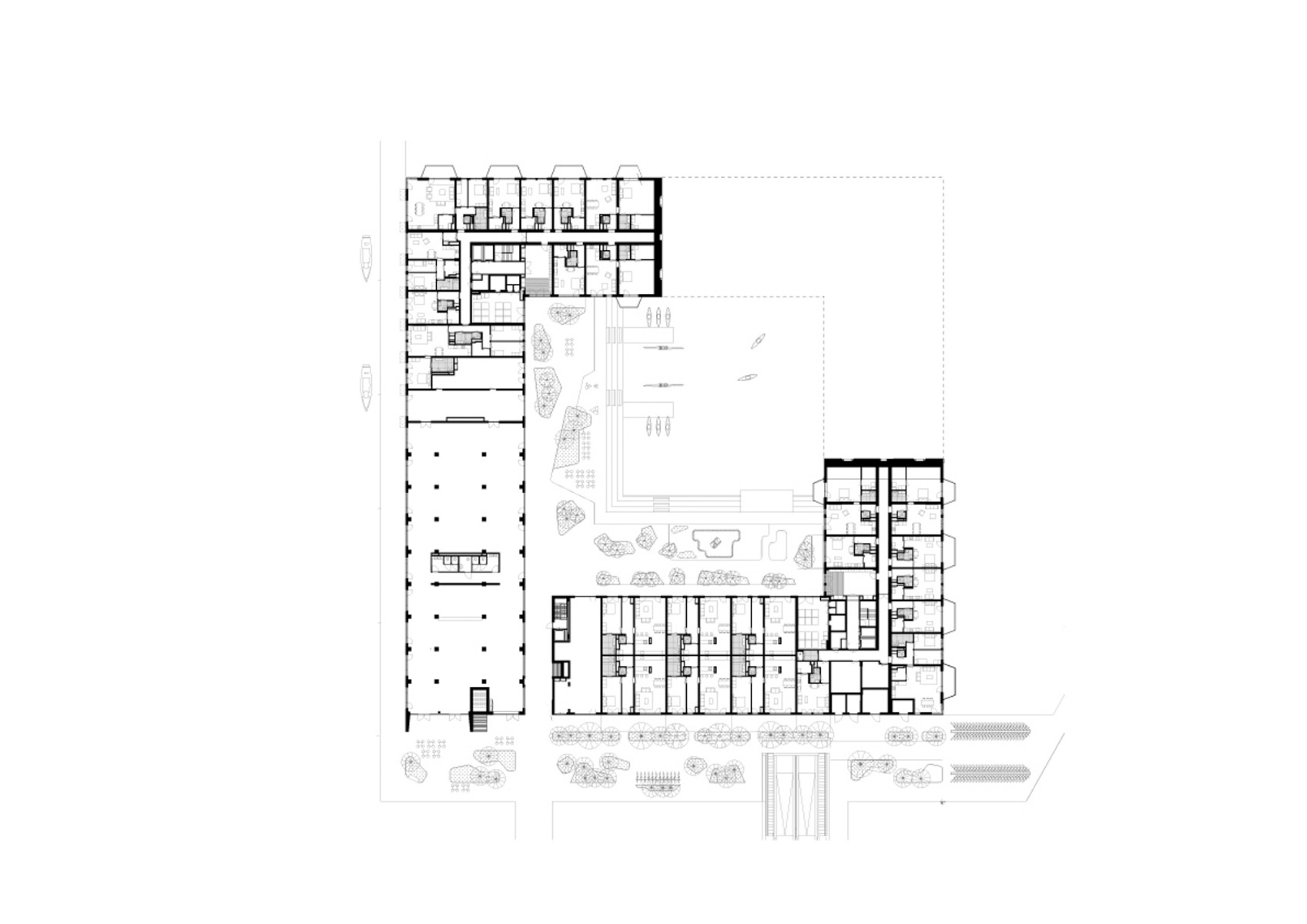
Like the prow of a ship, the Sluishuis extends towards the inner city, which lies far to the west. Its basic shape echoes that of a traditional square building block. The architects have opened it up with an enormous 90-degree gate in order to give as many flats as possible views of the river.


© Ossip van Duivenbode
Lorem Ipsum: Zwischenüberschrift
The spatial program encompasses 442 rental and privately-owned apartments as well as nearly 1100 m² of restaurants and other commercial space. The apartments range from single-room flats to maisonettes on the upper storeys to terraced flats in the areas that are tiered towards the land. The living units on the sloping, water-facing side opposite this are particularly unconventional: their windows open more downwards than outwards, meaning that residents can see the boats on the river directly beneath them.


© Ossip van Duivenbode


© Ossip van Duivenbode
Lorem Ipsum: Zwischenüberschrift
The base of the building has been planned to accommodate a sailing school, a watersports centre and a restaurant with an outdoor terrace. Visitors and residents alike enter the building via the inner courtyard. Along the two-tiered wings, long “stairways to heaven” flanked by apartment patios lead to the rooftop terrace. In this area the otherwise cool, smooth building shell of aluminum and steel gives way to a warmer covering of wood.


© Ossip van Duivenbode
Lorem Ipsum: Zwischenüberschrift
According to Dutch energy certification, the Sluishuis achieves an EPC value of 0. In other words, the complex generates more energy from renewable sources than it consumes for heating, cooling, warm water and ventilation. Heat and cool air are supplied via geothermal pumps; the new development is connected to district heating only to cover peak loads. Renewable electricity comes not only from the roof of the building, but also form a sort of floating island at the ends of the two jetties. Altogether, the project boasts 2200 m² of photovoltaic modules.
Architects: Barcode Architects, BIG - Bjarke Ingels Group
Clients/Project development: BESIX Real Estate Development, VORM
Location: Haringbuisdijk, 1086 VA Amsterdam (NL)
Structural engineering: Van Rossum
Landscape architecture: Bjarke Ingels Group
Building services engineering: DWA
Building physics: Buro Bouwfysica
Sustainability consulting: Klimaatgarant
Contractor: BESIX Nederland, VORM
Gross floor area: 49 000 m²



















